1992January
39,000 yen, 1K, 1st floor / 2-story, 23.12 sq m
Rentals » Tokai » Aichi Prefecture » Miyoshi City

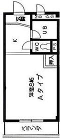
| Railroad-station 沿線・駅 | | Meitetsu bus / Xinwu, Aichi Prefecture, Miyoshi City, Miyoshi-cho, Xinwu 名鉄バス/新屋愛知県みよし市三好町新屋 | Walk 徒歩 | | 2 min 2分 | Rent 賃料 | | 39,000 yen 3.9万円 | Management expenses 管理費・共益費 | | 2000 yen 2000円 | Deposit 保証金 | | 78,000 yen 7.8万円 | Floor plan 間取り | | 1K 1K | Occupied area 専有面積 | | 23.12 sq m 23.12m2 | Type 種別 | | Mansion マンション | Year Built 築年 | | Built 23 years 築23年 | | Happiness 1 ハピネス1 |
| Bus toilet by, Air conditioning, Immediate Available, Electric stove バストイレ別、エアコン、即入居可、電気コンロ |
Property name 物件名 | | Aichi Prefecture, Miyoshi City, Miyoshi Xinwu Xinwu of rental housing [Rental apartment ・ Apartment] information Property Details 愛知県みよし市三好町新屋 新屋の賃貸住宅[賃貸マンション・アパート]情報 物件詳細 | Transportation facilities 交通機関 | | Meitetsu bus / Ayumi Xinwu 2 minutes 名鉄バス/新屋 歩2分 | Floor plan details 間取り詳細 | | Hiroshi 8 洋8 | Construction 構造 | | Steel frame 鉄骨 | Story 階建 | | 1st floor / 2-story 1階/2階建 | Built years 築年月 | | January 1992 1992年1月 | Nonlife insurance 損保 | | The main 要 | Parking lot 駐車場 | | On-site 3,000 yen 敷地内3000円 | Move-in 入居 | | Immediately 即 | Trade aspect 取引態様 | | Mediation 仲介 | Property code 取り扱い店舗物件コード | | 12096801 12096801 | Total units 総戸数 | | 7 units 7戸 | Guarantor agency 保証人代行 | | Guarantee company use 必 rent ・ Common service fee ・ Parking fee ・ Support services 50% 10,000 yen after the second year There are also other credit card plan 保証会社利用必 家賃・共益費・駐車料・サポートサービスの50% 2年目以降1万円 他クレジットカードプランもあり |

Location
|