1981March
90,000 yen, 3LDK, 6th floor / 11-storey, 74.99 sq m
Rentals » Tokai » Aichi Prefecture » Nagoya, Naka-ku
 
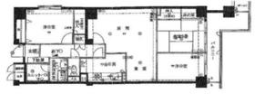
| Railroad-station 沿線・駅 | | Subway Higashiyama Line / Xin Rong-cho 地下鉄東山線/新栄町 | Address 住所 | | Aoi medium Nagoya, Aichi Prefecture Ward 1 愛知県名古屋市中区葵1 | Walk 徒歩 | | 3 minutes 3分 | Rent 賃料 | | 90,000 yen 9万円 | Key money 礼金 | | 90,000 yen 9万円 | Security deposit 敷金 | | 270,000 yen 27万円 | Floor plan 間取り | | 3LDK 3LDK | Occupied area 専有面積 | | 74.99 sq m 74.99m2 | Direction 向き | | South 南 | Type 種別 | | Mansion マンション | Year Built 築年 | | Built 34 years 築34年 | | Condominium rental apartments of Sakae center 栄中心部の分譲賃貸マンション |
| Weekday, Saturday There are janitor [Shinsakae Station] 4 minute walk location of ☆ 平日、土曜日は管理人がいます【新栄駅】徒歩4分の立地☆ |
| Bus toilet by, balcony, Indoor laundry location, Shoe box, Facing south, Elevator, Two tenants consultation, Upper closet, Within a 5-minute walk station バストイレ別、バルコニー、室内洗濯置、シューズボックス、南向き、エレベーター、二人入居相談、天袋、駅徒歩5分以内 |
Property name 物件名 | | Rental housing of Nagoya, Aichi Prefecture, Naka-ku, Aoi 1 Shinsakae-cho Station [Rental apartment ・ Apartment] information Property Details 愛知県名古屋市中区葵1 新栄町駅の賃貸住宅[賃貸マンション・アパート]情報 物件詳細 | Transportation facilities 交通機関 | | Subway Higashiyama Line / Xin Rong Town, walk 3 minutes 地下鉄東山線/新栄町 歩3分
| Floor plan details 間取り詳細 | | Sum 6 Hiroshi 5.1 Hiroshi 4.8 LDK16 和6 洋5.1 洋4.8 LDK16 | Construction 構造 | | Steel rebar 鉄骨鉄筋 | Story 階建 | | 6th floor / 11-storey 6階/11階建 | Built years 築年月 | | March 1981 1981年3月 | Nonlife insurance 損保 | | 25,000 yen two years 2.5万円2年 | Parking lot 駐車場 | | Site 25000 yen 敷地内25000円 | Move-in 入居 | | Consultation 相談 | Trade aspect 取引態様 | | Mediation 仲介 | Conditions 条件 | | Two people Available / Children Allowed / Office Unavailable / Room share not 二人入居可/子供可/事務所利用不可/ルームシェア不可 | Property code 取り扱い店舗物件コード | | 5256608 5256608 | Balcony area バルコニー面積 | | 8.54 sq m 8.54m2 | In addition ほか初期費用 | | Total 55,200 yen (Breakdown: sterilization deodorant, key, Extinguishing agent 39,000 yen peace support 16,200 yen) 合計5.52万円(内訳:除菌消臭、鍵、消火剤3.9万円安心サポート1.62万円) | Remarks 備考 | | This apartment walking distance to Sakae 栄にも徒歩圏のマンションです |
Building appearance建物外観 

 Appearance 2
外観2
Living and room居室・リビング  Living room 3
居室3
 Room 1
居室1
 Room 2
居室2
Kitchenキッチン  Kitchen
キッチン
Bathバス  Bath
バス
Toiletトイレ  Toilet
トイレ
Washroom洗面所  Washroom
洗面所
Other Equipmentその他設備  Receipt
収納
Entranceエントランス  Entrance
エントランス
Other common areasその他共有部分  Shared facilities 1
共用設備1
View眺望  View
眺望
Location
|