1979July
35,000 yen, 2LDK, Second floor / 2-story, 54.95 sq m
Rentals » Tohoku » Aomori Prefecture » Hirosaki
 
| Railroad-station 沿線・駅 | | Kōnan Railway Ōwani Line / Hirosakigakuindai before 弘南鉄道大鰐線/弘前学院大前 | Address 住所 | | Hirosaki, Aomori Prefecture Oaza Asahigaoka 1 青森県弘前市大字旭ケ丘1 | Walk 徒歩 | | 13 minutes 13分 | Rent 賃料 | | 35,000 yen 3.5万円 | Security deposit 敷金 | | 35,000 yen 3.5万円 | Floor plan 間取り | | 2LDK 2LDK | Occupied area 専有面積 | | 54.95 sq m 54.95m2 | Type 種別 | | Apartment アパート | Year Built 築年 | | Built 35 years 築35年 | | Asahigaoka is 1-chome of 2LDK apartment! Super 6-minute walk ・ Convenience store 7 minutes walk ・ Kikyono small walk 14 minutes ・ Fourth in the 13-minute walk! There is vanity ・ There is a window in the kitchen ・ Bath is a toilet! 旭ヶ丘1丁目の2LDKアパートです!スーパー徒歩6分・コンビニ徒歩7分・桔梗野小徒歩14分・第四中徒歩13分!洗面化粧台有り・キッチンに窓有り・風呂トイレ別です! |
| Bus toilet by, Yang per good, System kitchen, Bathroom vanity, Immediate Available, Key money unnecessary, A quiet residential area, top floor, Deposit 1 month, Good view, Ventilation good バストイレ別、陽当り良好、システムキッチン、洗面化粧台、即入居可、礼金不要、閑静な住宅地、最上階、敷金1ヶ月、眺望良好、通風良好 |
Property name 物件名 | | Rental housing of Hirosaki, Aomori Prefecture Oaza Asahigaoka 1 Hirosakigakuindaimae Station [Rental apartment ・ Apartment] information Property Details 青森県弘前市大字旭ケ丘1 弘前学院大前駅の賃貸住宅[賃貸マンション・アパート]情報 物件詳細 | Transportation facilities 交通機関 | | Kōnan Railway Ōwani Line / Hirosakigakuindai before walking 13 minutes 弘南鉄道大鰐線/弘前学院大前 歩13分
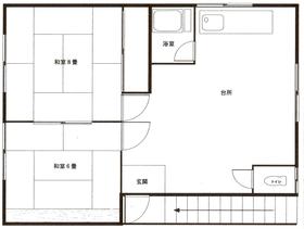
| Floor plan details 間取り詳細 | | Sum 8 sum 6 LDK11 和8 和6 LDK11 | Construction 構造 | | Wooden 木造 | Story 階建 | | Second floor / 2-story 2階/2階建 | Built years 築年月 | | July 1979 1979年7月 | Nonlife insurance 損保 | | The main 要 | Move-in 入居 | | Immediately 即 | Trade aspect 取引態様 | | Mediation 仲介 | Intermediate fee 仲介手数料 | | 1.05 months 1.05ヶ月 | Area information 周辺情報 | | Satochou Kikyono store (supermarket) up to 415m Circle K Hirosaki Kikyono store (convenience store) up to 530m Tsuruha drag Hirosaki trees store 1196mTSUTAYA until (drugstore) MEDIA INN trees store 1104m up (video rental) up to 994m Hirosaki Municipal fourth junior high school (junior high school) 980m Hirosaki Municipal Kikyono elementary school (elementary school) さとちょう桔梗野店(スーパー)まで415mサークルK弘前桔梗野店(コンビニ)まで530mツルハドラッグ弘前樹木店(ドラッグストア)まで1196mTSUTAYA MEDIA INN樹木店(レンタルビデオ)まで994m弘前市立第四中学校(中学校)まで980m弘前市立桔梗野小学校(小学校)まで1104m |
Building appearance建物外観 
Living and room居室・リビング 

Kitchenキッチン 
Receipt収納 
Other room spaceその他部屋・スペース 

Entrance玄関 
Otherその他 
 Super 6-minute walk
スーパー徒歩6分
 Drugstore a 15-minute walk
ドラッグストア徒歩15分
 Video rental store 13 minutes
ビデオレンタル店13分
Location
|