Rentals » Tohoku » Aomori Prefecture » Kamikita district
 
| Railroad-station 沿線・駅 | | Tohoku Shinkansen line / Shichinohe Towada 東北新幹線/七戸十和田 | Address 住所 | | Aomori Prefecture kamikita district shichinohe shaped Teraura 青森県上北郡七戸町字寺裏 | Walk 徒歩 | | Car 10 minutes 車10分 | Rent 賃料 | | 39,000 yen 3.9万円 | Security deposit 敷金 | | 39,000 yen 3.9万円 | Floor plan 間取り | | 2LDK 2LDK | Occupied area 専有面積 | | 63.18 sq m 63.18m2 | Direction 向き | | East 東 | Type 種別 | | Apartment アパート | Year Built 築年 | | Built 42 years 築42年 | | Chiba apartment 千葉アパート |
| Apartment of shichinohe center 七戸町中心部のアパートです |
| Shichinohe hospital, Bank, ^^'m Close, such as the post office 七戸病院、銀行、郵便局など近いですよ^^ |
| Bus toilet by, Flooring, Indoor laundry location, System kitchen, Bathroom vanity, closet, Immediate Available, Key money unnecessary, A quiet residential area, Two-sided lighting, Parking two Allowed, Deposit 1 month, Entrance hall, Window in the kitchen, The window in the bathroom, High temperature difference between hot water formula, 1 floor 1 dwelling unit, Kerosene boilers, Toilet 2 placesese-style room, Vanity with vertical lighting, Ventilation good バストイレ別、フローリング、室内洗濯置、システムキッチン、洗面化粧台、押入、即入居可、礼金不要、閑静な住宅地、2面採光、駐車2台可、敷金1ヶ月、玄関ホール、キッチンに窓、浴室に窓、高温差湯式、1フロア1住戸、灯油ボイラー、トイレ2ヶ所、和室、縦型照明付洗面化粧台、通風良好 |
Property name 物件名 | | Rental housing, Aomori Prefecture kamikita district shichinohe shaped Teraura Shichinohe Towada Station [Rental apartment ・ Apartment] information Property Details 青森県上北郡七戸町字寺裏 七戸十和田駅の賃貸住宅[賃貸マンション・アパート]情報 物件詳細 | Transportation facilities 交通機関 | | Tohoku Shinkansen line / A 10-minute drive from Shichinohe Towada Station (2.8km) 東北新幹線/七戸十和田 駅より車10分(2.8km)
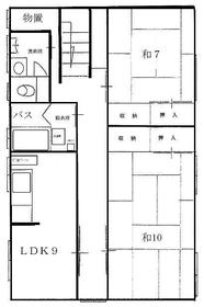
| Floor plan details 間取り詳細 | | Sum 10 sum 7 LDK9 和10 和7 LDK9 | Construction 構造 | | Wooden 木造 | Story 階建 | | Second floor / 2-story 2階/2階建 | Built years 築年月 | | March 1972 1972年3月 | Nonlife insurance 損保 | | 15,000 yen two years 1.5万円2年 | Parking lot 駐車場 | | Free with / Chu two Allowed 付無料/駐2台可 | Move-in 入居 | | Immediately 即 | Trade aspect 取引態様 | | Mediation 仲介 | Total units 総戸数 | | 2 units 2戸 | Intermediate fee 仲介手数料 | | 1 month 1ヶ月 | Remarks 備考 | | Public Shichinohe to the hospital 374m / Shichinohe 510m until the post office 公立七戸病院まで374m/七戸郵便局まで510m | Area information 周辺情報 | | Supakakemo Shichinohe store (super) 374m up to 652m ion Shichinohe Towada Station store (supermarket) to 3082m Circle K Shichinohe colander was store (convenience store) up to 742m KusuriOdo Aomori Shichinohe shop 603m public Shichinohe hospital until (drugstore) (hospital) Shichinohe スーパーカケモ七戸店(スーパー)まで652mイオン七戸十和田駅前店(スーパー)まで3082mサークルK七戸ざるた店(コンビニ)まで742m薬王堂青森七戸店(ドラッグストア)まで603m公立七戸病院(病院)まで374m七戸郵便局(郵便局)まで510m |
Building appearance建物外観 
Living and room居室・リビング 


Kitchenキッチン 
Bathバス 
Toiletトイレ 
Other room spaceその他部屋・スペース 


Washroom洗面所 
Entrance玄関 
Supermarketスーパー  Supakakemo Shichinohe store up to (super) 652m
スーパーカケモ七戸店(スーパー)まで652m
 3082m until the ion Shichinohe Towada Station store (Super)
イオン七戸十和田駅前店(スーパー)まで3082m
Convenience storeコンビニ  Circle K Shichinohe colander was store (convenience store) to 742m
サークルK七戸ざるた店(コンビニ)まで742m
Dorakkusutoaドラックストア  KusuriOdo Aomori Shichinohe shop 603m until (drugstore)
薬王堂青森七戸店(ドラッグストア)まで603m
Hospital病院  Public Shichinohe to the hospital (hospital) 374m
公立七戸病院(病院)まで374m
Post office郵便局  Shichinohe 510m until the post office (post office)
七戸郵便局(郵便局)まで510m
Otherその他 

Location
|