|
Railroad-station 沿線・駅 | | Blue forest railway / Misawa 青い森鉄道/三沢 |
Address 住所 | | Aomori Prefecture Misawa sunrise 1 青森県三沢市日の出1 |
Bus バス | | 27 minutes 27分 |
Walk 徒歩 | | 2 min 2分 |
Rent 賃料 | | 44,000 yen 4.4万円 |
Management expenses 管理費・共益費 | | 3000 yen 3000円 |
Key money 礼金 | | 44,000 yen 4.4万円 |
Floor plan 間取り | | 1K 1K |
Occupied area 専有面積 | | 23.61 sq m 23.61m2 |
Type 種別 | | Apartment アパート |
Year Built 築年 | | Built four years 築4年 |
|
Leo next sunrise
レオネクスト日の出
|
|
Unnecessary brokerage fees
仲介手数料不要
|
|
Basic cleaning fee (at the time of leaving) 1K25500 yen (furniture ・ Consumer electronics with room for additional 3000 yen) ※ Tax not included
基本清掃料(退室時)1K25500円(家具・家電付の部屋は3000円追加)※税別
|
|
Bus toilet by, Air conditioning, TV interphone, Indoor laundry location, Warm water washing toilet seat, Optical fiber, Electric stove, Unnecessary brokerage fees, With consumer electronics, Furnished, Within a 3-minute bus stop walk, Built within five years
バストイレ別、エアコン、TVインターホン、室内洗濯置、温水洗浄便座、光ファイバー、電気コンロ、仲介手数料不要、家電付、家具付、バス停徒歩3分以内、築5年以内
|
Property name 物件名 | | Rental housing, Aomori Prefecture Misawa sunrise 1 Misawa Station [Rental apartment ・ Apartment] information Property Details 青森県三沢市日の出1 三沢駅の賃貸住宅[賃貸マンション・アパート]情報 物件詳細 |
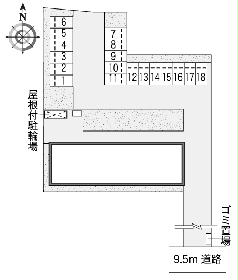
Transportation facilities 交通機関 | | Blue forest railway / Misawa bus 27 minutes (bus stop) Hinode-cho, chome walk 2 minutes 青い森鉄道/三沢 バス27分 (バス停)日の出町二丁目 歩2分
|
Construction 構造 | | Wooden 木造 |
Story 階建 | | 1st floor / 2-story 1階/2階建 |
Built years 築年月 | | October 2010 2010年10月 |
Nonlife insurance 損保 | | The main 要 |
Parking lot 駐車場 | | On-site 3,000 yen 敷地内3000円 |
Move-in 入居 | | '14 Mid-March '14年3月中旬 |
Trade aspect 取引態様 | | Lender 貸主 |
Property code 取り扱い店舗物件コード | | 47133-107 47133-107 |
Total units 総戸数 | | 18 units 18戸 |
Intermediate fee 仲介手数料 | | Unnecessary 不要 |
Guarantor agency 保証人代行 | | Guarantee company use 必 guarantee fee: 100 by 56,990 yen (contract ~ Fluctuations have at 120%) ※ The amounts in the case of 120% 保証会社利用必 保証料:56990円(契約内容により100 ~ 120%で変動有)※記載金額は120%の場合 |
In addition ほか初期費用 | | Total 25,800 yen (Breakdown: The key exchange costs 9496 yen, Antibacterial construction (Optional) ¥ 16400 (excluding tax)) 合計2.58万円(内訳:鍵交換費9496円、抗菌施工(任意)16400円(税別)) |
Other expenses ほか諸費用 | | Environmental maintenance costs 496 yen / Month, Renewal fees 15000 yen / 2 years (excluding tax) 環境維持費496円/月、更新手数料15000円/2年(税別) |
Remarks 備考 | | Interior customization 内装カスタマイズ |