Rentals » Tohoku » Aomori Prefecture » Towada
 
| Railroad-station 沿線・駅 | | Akanuma via Western schools ・ Transinformation (content) line / Minami Elementary School before Towada, Aomori Prefecture Nishijugoban cho 赤沼経由西校・法量線/南小学校前青森県十和田市西十五番町 | Walk 徒歩 | | 3 minutes 3分 | Rent 賃料 | | 46,000 yen 4.6万円 | Security deposit 敷金 | | 46,000 yen 4.6万円 | Floor plan 間取り | | 3K 3K | Occupied area 専有面積 | | 49.69 sq m 49.69m2 | Direction 向き | | South 南 | Type 種別 | | terrace ・ Townhouse テラス・タウンハウス | Year Built 築年 | | Built 23 years 築23年 | | Sasaki rental 佐々木貸家 |
| It is next to South Elementary School ground 南小学校のグラウンド隣りです |
| Bus toilet by, Flooring, Indoor laundry location, Yang per good, Shoe box, System kitchen, Facing south, Dressing room, closet, Immediate Available, Key money unnecessary, A quiet residential area, Two-sided lighting, Parking two Allowed, Deposit 1 month, Card key, Window in the kitchen, The window in the bathroom, High temperature difference between hot water formula, South 2 rooms, South living, Soundproof sash, Haisasshi, Bungalow, Exterior wall siding, Open outside the structure, Our managed properties, Next to Japanese-style livingese-style room, Following Japanese-style room, propane gas, Vanity with vertical lighting, All rooms with lighting, Ventilation good バストイレ別、フローリング、室内洗濯置、陽当り良好、シューズボックス、システムキッチン、南向き、脱衣所、押入、即入居可、礼金不要、閑静な住宅地、2面採光、駐車2台可、敷金1ヶ月、カードキー、キッチンに窓、浴室に窓、高温差湯式、南面2室、南面リビング、防音サッシ、ハイサッシ、平屋、外壁サイディング、オープン外構、当社管理物件、リビングの隣和室、和室、続き和室、プロパンガス、縦型照明付洗面化粧台、全室照明付、通風良好 |
Property name 物件名 | | Towada, Aomori Prefecture Nishijugoban-cho, Minami elementary school before rental housing [Rental apartment ・ Apartment] information Property Details 青森県十和田市西十五番町 南小学校前の賃貸住宅[賃貸マンション・アパート]情報 物件詳細 | Transportation facilities 交通機関 | | Akanuma via Western schools ・ Transinformation (content) line / Minami Elementary School before walking 3 minutes Tohoku Shinkansen / 26 minutes by car from Shichinohe Towada Station (15.0km) 赤沼経由西校・法量線/南小学校前 歩3分東北新幹線/七戸十和田 駅より車26分(15.0km)
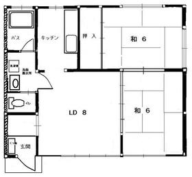
| Floor plan details 間取り詳細 | | Sum 8 sum 6 sum 6 K4 和8 和6 和6 K4 | Construction 構造 | | Wooden 木造 | Story 階建 | | Bungalow 平屋 | Built years 築年月 | | March 1991 1991年3月 | Nonlife insurance 損保 | | 15,000 yen two years 1.5万円2年 | Parking lot 駐車場 | | Free with 付無料 | Move-in 入居 | | Immediately 即 | Trade aspect 取引態様 | | Mediation 仲介 | Total units 総戸数 | | 13 houses 13戸 | Intermediate fee 仲介手数料 | | 1 month 1ヶ月 | Remarks 備考 | | 200m to Towada Minami Elementary School / 591m to Aomori Prefectural Sanbongi High School / Patrol management 十和田市立南小学校まで200m/青森県立三本木高校まで591m/巡回管理 | Area information 周辺情報 | | Powers U Towada store (supermarket) up to 971m Aomori Prefectural Sanbongi High School (High School ・ National College of Technology) up to 591m Towada Minami elementary school (elementary school) up to 200m Satsuki kindergarten (kindergarten ・ Nursery school) until 675m Michinoku Bank rows of grain branch (Bank) to 917m Towada police station (police station ・ Until alternating) 487m パワーズU十和田店(スーパー)まで971m青森県立三本木高校(高校・高専)まで591m十和田市立南小学校(小学校)まで200mさつき幼稚園(幼稚園・保育園)まで675mみちのく銀行穂並支店(銀行)まで917m十和田警察署(警察署・交番)まで487m |
Building appearance建物外観 
Living and room居室・リビング 



Kitchenキッチン 
Bathバス 
Toiletトイレ 
Receipt収納 
Other room spaceその他部屋・スペース 


Washroom洗面所 
Entrance玄関 
Supermarketスーパー  971m until Powers U Towada store (Super)
パワーズU十和田店(スーパー)まで971m
High school ・ College高校・高専  Aomori Prefectural Sanbongi High School (High School ・ NCT) to 591m
青森県立三本木高校(高校・高専)まで591m
Primary school小学校  200m to Towada Minami elementary school (elementary school)
十和田市立南小学校(小学校)まで200m
Kindergarten ・ Nursery幼稚園・保育園  Satsuki kindergarten (kindergarten ・ 675m to the nursery)
さつき幼稚園(幼稚園・保育園)まで675m
Bank銀行  Michinoku Bank rows of grain 917m to the branch (Bank)
みちのく銀行穂並支店(銀行)まで917m
Police station ・ Police box警察署・交番  Towada police station (police station ・ Until alternating) 487m
十和田警察署(警察署・交番)まで487m
Location
|