Rentals » Kanto » Chiba Prefecture » Funabashi
 
| Railroad-station 沿線・駅 | | Shinkeiseisen / Takanekodan 新京成線/高根公団 | Address 住所 | | Funabashi, Chiba Prefecture Takanedai 7 千葉県船橋市高根台7 | Walk 徒歩 | | 4 minutes 4分 | Rent 賃料 | | 69,000 yen 6.9万円 | Management expenses 管理費・共益費 | | 6000 yen 6000円 | Key money 礼金 | | 69,000 yen 6.9万円 | Security deposit 敷金 | | 69,000 yen 6.9万円 | Floor plan 間取り | | 1LDK 1LDK | Occupied area 専有面積 | | 39.68 sq m 39.68m2 | Direction 向き | | Southwest 南西 | Type 種別 | | Mansion マンション | Year Built 築年 | | Built in one year 築1年 | | Residence Takanedai レジデンス高根台 |
| It is built shallow property just completed last year 昨年完成したばかりの築浅物件です |
| Recommended to Japan university student's 13 minutes until the Funabashi-Nichidaimae Station ion, Also conveniently located 400m and nearby shopping to Libre Earthquake-resistant structure of peace of mind and enhance security All the room is the water of fresh peace of mind in the water purification system equipped 日本大学生さんへおすすめ 船橋日大前駅まで13分 イオン、リブレへ400mと近く買い物も便利な立地 安心の耐震構造と充実のセキュリティー 浄水システム完備で全部屋フレッシュな安心の水です |
| Bus toilet by, balcony, Air conditioning, closet, Flooring, Washbasin with shower, TV interphone, Bathroom Dryer, auto lock, Indoor laundry location, Shoe box, System kitchen, Add-fired function bathroom, Corner dwelling unit, Warm water washing toilet seat, Dressing room, Seperate, Bathroom vanity, Two-burner stove, Bicycle-parking space, Delivery Box, Optical fiber, Immediate Available, A quiet residential area, Two-sided lighting, Face-to-face kitchen, surveillance camera, IH cooking heater, Otobasu, Walk-in closet, Guarantor unnecessary, Southeast angle dwelling unit, Bike shelter, All living room flooring, Design, 2 wayside Available, Dimple key, Flat to the station, Window in the kitchen, Water filter, Double lock key, Within built 2 years, 24-hour ventilation system, Outer wall concrete, Flat terrain, Room share consultation, South 2 rooms, South living, Fireproof structure, Earthquake-resistant structure, All rooms facing southeast, 3 station more accessible, Within a 5-minute walk station, On-site trash Storage, Southwestward, City gas, Door to the washroom, South balcony, Entrance storage, BS バストイレ別、バルコニー、エアコン、クロゼット、フローリング、シャワー付洗面台、TVインターホン、浴室乾燥機、オートロック、室内洗濯置、シューズボックス、システムキッチン、追焚機能浴室、角住戸、温水洗浄便座、脱衣所、洗面所独立、洗面化粧台、2口コンロ、駐輪場、宅配ボックス、光ファイバー、即入居可、閑静な住宅地、2面採光、対面式キッチン、防犯カメラ、IHクッキングヒーター、オートバス、ウォークインクロゼット、保証人不要、東南角住戸、バイク置場、全居室フローリング、デザイナーズ、2沿線利用可、ディンプルキー、駅まで平坦、キッチンに窓、浄水器、ダブルロックキー、築2年以内、24時間換気システム、外壁コンクリート、平坦地、ルームシェア相談、南面2室、南面リビング、耐火構造、耐震構造、全室東南向き、3駅以上利用可、駅徒歩5分以内、敷地内ごみ置き場、南西向き、都市ガス、洗面所にドア、南面バルコニー、玄関収納、BS |
Property name 物件名 | | Rental housing of Funabashi, Chiba Prefecture Takanedai 7 Takanekodan Station [Rental apartment ・ Apartment] information Property Details 千葉県船橋市高根台7 高根公団駅の賃貸住宅[賃貸マンション・アパート]情報 物件詳細 | Transportation facilities 交通機関 | | Shinkeiseisen / Takanekodan walk 4 minutes Shinkeiseisen / Takanekido step 4 minutes AzumaYo high-speed rail / Kitanarashino step 14 minutes 新京成線/高根公団 歩4分 新京成線/高根木戸 歩4分 東葉高速鉄道/北習志野 歩14分
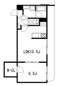
| Floor plan details 間取り詳細 | | Hiroshi 6.5 LDK10.5 洋6.5 LDK10.5 | Construction 構造 | | Rebar Con 鉄筋コン | Story 階建 | | 3rd floor / 4-story 3階/4階建 | Built years 築年月 | | January 2013 2013年1月 | Nonlife insurance 損保 | | 20,000 yen two years 2万円2年 | Move-in 入居 | | Immediately 即 | Trade aspect 取引態様 | | Mediation 仲介 | Conditions 条件 | | Single person Allowed / Two people Available / Children Allowed / Room share consultation 単身者可/二人入居可/子供可/ルームシェア相談 | Property code 取り扱い店舗物件コード | | 104721-303 104721-303 | Intermediate fee 仲介手数料 | | 1 month 1ヶ月 | Guarantor agency 保証人代行 | | There is the case of the guarantee company join Japan Rental guarantee use 必 our specification. The total rent 50% ・ Transfer fee of 210 yen × consumption tax 日本賃貸保証利用必 当社指定の保証会社加入の場合有り。総賃料50%・振込手数料210円×消費税 | Remarks 備考 | | Shinkeiseisen Takanekido Station 4-minute walk / Doi pharmacy Epoca until Takanedai shop 200m / Libre Keisei until Takanedai shop 420m 新京成線高根木戸駅徒歩4分/ドイ薬局 エポカ高根台店まで200m/リブレ京成 高根台店まで420m | Area information 周辺情報 | | Doi pharmacy Epoca Takanedai store (drugstore) to 200m Libre Keisei Takanedai store (supermarket) up to 420m Daily Yamazaki Takanekodan Station store (convenience store) up to 400m ion Takanekidoten (super) to 440m (Ltd.) Gourmet City Kanto Takanekido ドイ薬局 エポカ高根台店(ドラッグストア)まで200mリブレ京成 高根台店(スーパー)まで420mデイリーヤマザキ高根公団駅前店(コンビニ)まで400mイオン高根木戸店(スーパー)まで440m(株)グルメシティ関東 高根木戸店(スーパー)まで180m安楽亭(その他)まで60m |
Building appearance建物外観 
Living and room居室・リビング 
 Bright living room
明るいリビング
 Bright room standing white is the keynote
白が基調のたっ明るい室内
Kitchenキッチン  IH2-neck with system Kitchen
IH2口付きシステムキッチン
 Popular face-to-face kitchen
人気の対面式キッチン
 Kitchen with cleanliness that has been unified with white
白で統一された清潔感あるキッチン
Bathバス  Bathroom ventilation, Reheating, With thermostat
浴室換気、追い焚き、サーモスタッド付き
Toiletトイレ  It is a restroom with a clean feeling with Washlet.
ウォシュレット付で清潔感のあるお手洗いです。
Other room spaceその他部屋・スペース  Sunny bright Western-style 6.5 Pledge
日当たりの良い明るい洋室6.5帖
Washroom洗面所  Shampoo dresser
シャンプードレッサー
Balconyバルコニー 
Other Equipmentその他設備  It is a bathroom with bathroom dryer.
浴室乾燥機付きの浴室です。
Entrance玄関  Shoes is with BOX.
シューズBOX付です。
Supermarketスーパー  440m until ion Takanekidoten (super)
イオン高根木戸店(スーパー)まで440m
Otherその他  60m to Anrakutei (Other)
安楽亭(その他)まで60m
|