|
Railroad-station 沿線・駅 | | Shinkeiseisen / Narashino 新京成線/習志野 |
Address 住所 | | Funabashi, Chiba Prefecture Narashinodai 4 千葉県船橋市習志野台4 |
Walk 徒歩 | | 7 minutes 7分 |
Rent 賃料 | | 74,000 yen 7.4万円 |
Management expenses 管理費・共益費 | | 4000 yen 4000円 |
Security deposit 敷金 | | 74,000 yen 7.4万円 |
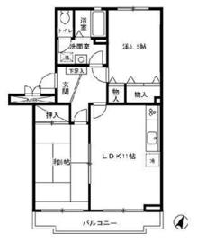
Floor plan 間取り | | 2LDK 2LDK |
Occupied area 専有面積 | | 55.11 sq m 55.11m2 |
Direction 向き | | Southeast 南東 |
Type 種別 | | Mansion マンション |
Year Built 築年 | | Built 17 years 築17年 |
|
Sanlu Premier
サンルミエール
|
|
Daiwa House "D-room" to borrow
借りるダイワハウス『D-room』
|
|
System kitchen (three-necked stove ・ Grill with) family-friendly RC concrete condominium local correspondence possible Please feel free to contact us
システムキッチン(三口コンロ・グリル付き)ファミリー向けRC造マンションです現地対応可お気軽にお問合せください
|
|
Bus toilet by, balcony, Air conditioning, Gas stove correspondence, Flooring, Indoor laundry location, Shoe box, System kitchen, Add-fired function bathroom, Corner dwelling unit, Dressing room, Seperate, Bicycle-parking space, closet, CATV, Immediate Available, Key money unnecessary, Two-sided lighting, top floor, 3-neck over stove, bay window, With grill, Deposit 1 month, Entrance hall, The window in the bathroom, South living, Within a 10-minute walk station, Southeast direction, Guarantee company Available
バストイレ別、バルコニー、エアコン、ガスコンロ対応、フローリング、室内洗濯置、シューズボックス、システムキッチン、追焚機能浴室、角住戸、脱衣所、洗面所独立、駐輪場、押入、CATV、即入居可、礼金不要、2面採光、最上階、3口以上コンロ、出窓、グリル付、敷金1ヶ月、玄関ホール、浴室に窓、南面リビング、駅徒歩10分以内、東南向き、保証会社利用可
|
Property name 物件名 | | Rental housing of Funabashi, Chiba Prefecture Narashinodai 4 Narashino Station [Rental apartment ・ Apartment] information Property Details 千葉県船橋市習志野台4 習志野駅の賃貸住宅[賃貸マンション・アパート]情報 物件詳細 |
Transportation facilities 交通機関 | | Shinkeiseisen / Narashino walk 7 minutes JR Sobu Line / Tsudanuma 15 minutes by bus (bus stop) Local museum before walking 5 minutes Shinkeiseisen / Kitanarashino step 14 minutes 新京成線/習志野 歩7分 JR総武線/津田沼 バス15分 (バス停)郷土資料館前 歩5分 新京成線/北習志野 歩14分
|
Floor plan details 間取り詳細 | | Sum 6 Hiroshi 5.5 LDK11.5 和6 洋5.5 LDK11.5 |
Construction 構造 | | Rebar Con 鉄筋コン |
Story 階建 | | 1st floor / Three-story 1階/3階建 |
Built years 築年月 | | April 1997 1997年4月 |
Parking lot 駐車場 | | On-site 7350 yen 敷地内7350円 |
Move-in 入居 | | Immediately 即 |
Trade aspect 取引態様 | | Mediation 仲介 |
Conditions 条件 | | Office Unavailable 事務所利用不可 |
Property code 取り扱い店舗物件コード | | 6134131 6134131 |
Intermediate fee 仲介手数料 | | 1.05 months 1.05ヶ月 |
Guarantor agency 保証人代行 | | Guarantee company Available D-Associate. First (1 year contract): 60% of the monthly rent. Renewal fee every year (10,000 yen) 保証会社利用可 D-Associate。初回(1年契約):月額賃料の60%。以降1年毎に更新料(10,000円) |
Remarks 備考 | | Kyoritsu Narashinodai to the hospital 571m / 598m to FamilyMart Terashima Narashinodai shop / Patrol management / Guideline Rent: 83,625 yen Renewal fee: one month of the new rent 共立習志野台病院まで571m/ファミリーマート寺島習志野台店まで598m/巡回管理/めやす賃料:83,625円 更新料:新賃料の1ヶ月分 |