Rentals » Kanto » Chiba Prefecture » Hanamigawa-ku, Chiba
 
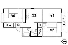
| Railroad-station 沿線・駅 | | JR Sobu Line / Shinkemigawa JR総武線/新検見川 | Address 住所 | | Chiba City, Chiba Prefecture Hanamigawa-ku, Chiba Hanazonocho 千葉県千葉市花見川区花園町 | Walk 徒歩 | | 11 minutes 11分 | Rent 賃料 | | 61,000 yen 6.1万円 | Management expenses 管理費・共益費 | | 2000 yen 2000円 | Key money 礼金 | | 61,000 yen 6.1万円 | Security deposit 敷金 | | 61,000 yen 6.1万円 | Floor plan 間取り | | 3DK 3DK | Occupied area 専有面積 | | 55.98 sq m 55.98m2 | Direction 向き | | South 南 | Type 種別 | | Apartment アパート | Year Built 築年 | | Built 22 years 築22年 | | 2 Kaikaku room. CATV multi-channel broadcasting Free. Private storeroom Yes. 2階角部屋。CATV多チャンネル放送無料。専用物置有。 |
| Bus toilet by, balcony, Gas stove correspondence, Indoor laundry location, Yang per good, Shoe box, System kitchen, Add-fired function bathroom, Corner dwelling unit, Bathroom vanity, Two-burner stove, Bicycle-parking space, closet, CATV, Immediate Available, top floor, BS ・ CS, With grill, Parking two Allowed, CATV Internet, Storeroom, Good view, The window in the bathroom, Upper closet, City gas, shutter, CATV use fee unnecessary, Guarantee company Available バストイレ別、バルコニー、ガスコンロ対応、室内洗濯置、陽当り良好、シューズボックス、システムキッチン、追焚機能浴室、角住戸、洗面化粧台、2口コンロ、駐輪場、押入、CATV、即入居可、最上階、BS・CS、グリル付、駐車2台可、CATVインターネット、物置、眺望良好、浴室に窓、天袋、都市ガス、シャッター、CATV使用料不要、保証会社利用可 |
Property name 物件名 | | Rental housing in Chiba City, Chiba Prefecture Hanamigawa-ku, Chiba Hanazonocho Shin-Kemigawa Station [Rental apartment ・ Apartment] information Property Details 千葉県千葉市花見川区花園町 新検見川駅の賃貸住宅[賃貸マンション・アパート]情報 物件詳細 | Transportation facilities 交通機関 | | JR Sobu Line / Shinkemigawa step 11 minutes JR総武線/新検見川 歩11分
| Floor plan details 間取り詳細 | | Sum 6 sum 6 Hiroshi 6 DK6 和6 和6 洋6 DK6 | Construction 構造 | | Wooden 木造 | Story 階建 | | Second floor / 2-story 2階/2階建 | Built years 築年月 | | April 1992 1992年4月 | Nonlife insurance 損保 | | The main 要 | Parking lot 駐車場 | | On-site 8000 yen 敷地内8000円 | Move-in 入居 | | Immediately 即 | Trade aspect 取引態様 | | Mediation 仲介 | Total units 総戸数 | | 8 units 8戸 | Intermediate fee 仲介手数料 | | 1.05 months 1.05ヶ月 | Guarantor agency 保証人代行 | | Recruit Forento in Sure Available guarantee fees: one month, such as rent (guaranteed minimum fee of 20,000 yen) continued guarantee fee of 10,000 yen / Year リクルートフォレントインシュア利用可 保証料:賃料等の1ヶ月分(最低保証料2万円)継続保証料1万円/年 |
Living and room居室・リビング 
Building appearance建物外観 

Living and room居室・リビング  Japanese-style room 6 Pledge (south side)
和室6帖(南側)
 Japanese-style room 6 Pledge (north)
和室6帖(北側)
 Japanese-style room 6 Pledge (north)
和室6帖(北側)
 Western-style 6 Pledge
洋室6帖
Kitchenキッチン  System kitchen. There is a window for the corner room.
システムキッチン。角部屋のため窓有り。

Bathバス 
Toiletトイレ 
Receipt収納  closet ・ Upper closet (Japanese-style room 6 quires south)
押入・天袋(和室6帖南側)
Washroom洗面所  Laundry Area ・ Wash basin
洗濯機置場・洗面台
Entrance玄関 
Location
|