Rentals » Kanto » Chiba Prefecture » Hanamigawa-ku, Chiba
 
| Railroad-station 沿線・駅 | | JR Sobu Line / Shinkemigawa JR総武線/新検見川 | Address 住所 | | Chiba City, Chiba Prefecture Hanamigawa-ku, Chiba Minamihanazono 2 千葉県千葉市花見川区南花園2 | Walk 徒歩 | | 3 minutes 3分 | Rent 賃料 | | 55,000 yen 5.5万円 | Management expenses 管理費・共益費 | | 1000 yen 1000円 | Floor plan 間取り | | 2K 2K | Occupied area 専有面積 | | 41.31 sq m 41.31m2 | Direction 向き | | Northeast 北東 | Type 種別 | | Apartment アパート | Year Built 築年 | | Built 26 years 築26年 | | Cable TV multi-channel broadcasting free (one tuner free lending) ケーブルTV多チャンネル放送無料(チュナー1台無料貸し出し) |
| Bus toilet by, balcony, Air conditioning, Gas stove correspondence, Indoor laundry location, Shoe box, Corner dwelling unit, Bathroom vanity, closet, CATV, Optical fiber, Immediate Available, top floor, CATV Internet, 2 wayside Available, 1 floor 2 dwelling unit, Upper closet, 2 Station Available, Within a 5-minute walk station, City gas, CATV use fee unnecessary, Deposit ・ Key money unnecessary バストイレ別、バルコニー、エアコン、ガスコンロ対応、室内洗濯置、シューズボックス、角住戸、洗面化粧台、押入、CATV、光ファイバー、即入居可、最上階、CATVインターネット、2沿線利用可、1フロア2住戸、天袋、2駅利用可、駅徒歩5分以内、都市ガス、CATV使用料不要、敷金・礼金不要 |
Property name 物件名 | | Rental housing in Chiba City, Chiba Prefecture Hanamigawa-ku, Chiba Minamihanazono 2 Shin-Kemigawa Station [Rental apartment ・ Apartment] information Property Details 千葉県千葉市花見川区南花園2 新検見川駅の賃貸住宅[賃貸マンション・アパート]情報 物件詳細 | Transportation facilities 交通機関 | | JR Sobu Line / Shinkemigawa step 3 minutes Keisei Chiba line / Kemigawa walk 4 minutes JR総武線/新検見川 歩3分 京成千葉線/検見川 歩4分
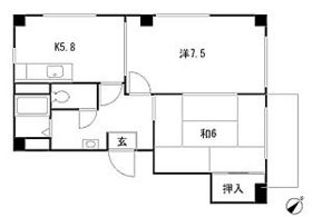
| Floor plan details 間取り詳細 | | Sum 6 Hiroshi 7.5 K5 和6 洋7.5 K5 | Construction 構造 | | Steel frame 鉄骨 | Story 階建 | | 3rd floor / Three-story 3階/3階建 | Built years 築年月 | | May 1988 1988年5月 | Nonlife insurance 損保 | | The main 要 | Parking lot 駐車場 | | Neighborhood 60m10000 yen 近隣60m10000円 | Move-in 入居 | | Immediately 即 | Trade aspect 取引態様 | | Mediation 仲介 | Total units 総戸数 | | 6 units 6戸 | Intermediate fee 仲介手数料 | | 1.05 months 1.05ヶ月 | Guarantor agency 保証人代行 | | Recruit Forento in Sure use 必 guarantee fees: one month, such as rent (guaranteed minimum fee of 20,000 yen) continued guarantee fee of 10,000 yen / Year リクルートフォレントインシュア利用必 保証料:賃料等の1ヶ月分(最低保証料2万円)継続保証料1万円/年 | Remarks 備考 | | Keisei Chiba line Kemigawa Station 4-minute walk / Corner room. CATV multi-channel broadcasting Free. 京成千葉線検見川駅徒歩4分/角部屋。CATV多チャンネル放送無料。 |
Living and room居室・リビング 
Building appearance建物外観 

Living and room居室・リビング  Japanese-style room 6 quires
和室6帖
 Western-style 7.5 Pledge
洋室7.5帖
 Japanese-style room 6 quires
和室6帖
Kitchenキッチン  Kitchen 5 Pledge
キッチン5帖

Bathバス 
Toiletトイレ 
Receipt収納  closet ・ Upper closet
押入・天袋
Washroom洗面所  Wash basin ・ Laundry Area
洗面台・洗濯機置場

Entrance玄関 
Location
|