1997October
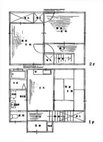
60,000 yen, 3DK, 1-2 floor / 2-story, 66 sq m
Rentals » Shikoku » Ehime Prefecture » Imabari
 
| Railroad-station 沿線・駅 | | JR Yosan Line / Imabari JR予讃線/今治 | Address 住所 | | Imabari, Ehime Prefecture Zoshiki cho 愛媛県今治市蔵敷町1 | Walk 徒歩 | | 12 minutes 12分 | Rent 賃料 | | 60,000 yen 6万円 | Key money 礼金 | | 90,000 yen 9万円 | Security deposit 敷金 | | 90,000 yen 9万円 | Floor plan 間取り | | 3DK 3DK | Occupied area 専有面積 | | 66 sq m 66m2 | Type 種別 | | Residential home 一戸建て | Year Built 築年 | | Built 17 years 築17年 | | City close to the single-family rented house 市内近くの一戸建て借家 |
Property name 物件名 | | Rental housing of Imabari, Ehime Prefecture Zoshiki cho Imabari Station [Rental apartment ・ Apartment] information Property Details 愛媛県今治市蔵敷町1 今治駅の賃貸住宅[賃貸マンション・アパート]情報 物件詳細 | Transportation facilities 交通機関 | | JR Yosan Line / Imabari walk 12 minutes JR予讃線/今治 歩12分
| Construction 構造 | | Wooden 木造 | Story 階建 | | 1-2 floor / 2-story 1-2階/2階建 | Built years 築年月 | | October 1997 1997年10月 | Nonlife insurance 損保 | | 16,000 yen two years 1.6万円2年 | Parking lot 駐車場 | | Free with 付無料 | Move-in 入居 | | Consultation 相談 | Trade aspect 取引態様 | | Mediation 仲介 | Intermediate fee 仲介手数料 | | 1 month 1ヶ月 | Area information 周辺情報 | | UNIQLO Imabari store up to (shopping center) 357m Redeiyakkyoku Imabari center shop 452m until (drugstore) to 596m Imabari Municipal Hiyoshi Elementary School (elementary school) ユニクロ今治店(ショッピングセンター)まで357mレデイ薬局今治中央店(ドラッグストア)まで596m今治市立日吉小学校(小学校)まで452m |
Building appearance建物外観 

Location
|