Rentals » Shikoku » Ehime Prefecture » Matsuyama
 
| Railroad-station 沿線・駅 | | Iyo railway Yokogawarasen / Matsuyama 伊予鉄道横河原線/松山市 | Address 住所 | | Matsuyama, Ehime Prefecture Morimatsu cho 愛媛県松山市森松町 | Bus バス | | 26 minutes 26分 | Walk 徒歩 | | 5 minutes 5分 | Rent 賃料 | | 80,000 yen 8万円 | Security deposit 敷金 | | 160,000 yen 16万円 | Floor plan 間取り | | 3LDK 3LDK | Occupied area 専有面積 | | 82 sq m 82m2 | Direction 向き | | South 南 | Type 種別 | | Residential home 一戸建て | Year Built 築年 | | Built 26 years 築26年 | | 4DK → It is with renovated wood deck to 3LDK 4DK→3LDKにリフォーム済みウッドデッキ付きです |
| Good day with shampoo dresser Washlet south-facing balcony シャンプードレッサーウォシュレット南向きバルコニーで日当たり良好 |
| Bus toilet by, balcony, Gas stove correspondence, Flooring, Washbasin with shower, Indoor laundry location, Yang per good, Shoe box, Facing south, Corner dwelling unit, Warm water washing toilet seat, Seperate, Immediate Available, Key money unnecessary, A quiet residential area, top floor, Parking one free, All room Western-style, All living room flooring, Private garden, Deposit 2 months, Underfloor Storage, propane gas バストイレ別、バルコニー、ガスコンロ対応、フローリング、シャワー付洗面台、室内洗濯置、陽当り良好、シューズボックス、南向き、角住戸、温水洗浄便座、洗面所独立、即入居可、礼金不要、閑静な住宅地、最上階、駐車場1台無料、全居室洋室、全居室フローリング、専用庭、敷金2ヶ月、床下収納、プロパンガス |
Property name 物件名 | | Rental housing of Matsuyama, Ehime Prefecture Morimatsu-cho, Matsuyama-shi Station [Rental apartment ・ Apartment] information Property Details 愛媛県松山市森松町 松山市駅の賃貸住宅[賃貸マンション・アパート]情報 物件詳細 | Transportation facilities 交通機関 | | Iyo railway Yokogawarasen / Matsuyama bus 26 minutes (bus stop) Land Transport Office before walking 5 minutes 伊予鉄道横河原線/松山市 バス26分 (バス停)陸運支局前 歩5分
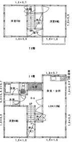
| Floor plan details 間取り詳細 | | Hiroshi 6 Hiroshi 6 Hiroshi 6 LDK12 洋6 洋6 洋6 LDK12 | Construction 構造 | | Wooden 木造 | Story 階建 | | Second floor / 2-story 2階/2階建 | Built years 築年月 | | February 1989 1989年2月 | Nonlife insurance 損保 | | The main 要 | Parking lot 駐車場 | | Free with 付無料 | Move-in 入居 | | Immediately 即 | Trade aspect 取引態様 | | Mediation 仲介 | Property code 取り扱い店舗物件コード | | 444729 444729 | Remarks 備考 | | Ukena to elementary school 743m / 351m to the south the second junior high school 浮穴小学校まで743m/南第二中学校まで351m |
Building appearance建物外観 
Living and room居室・リビング 
 2F Western-style 6 Pledge housed plenty of good day on the south-facing balcony
2F洋室6帖収納たっぷり南向きバルコニーで日当たり良好
 1F Western-style 6 tatami flooring
1F洋室6帖フローリング
Kitchenキッチン  LDK12 Pledge 4DK → 3LDK in renovated
LDK12帖4DK→3LDKにリフォーム済み
Bathバス  With § that boils hot water with a bus window
バス窓付き湯わいたぁ付き
Toiletトイレ  Washlet window with
ウォシュレット窓つき
Washroom洗面所  Shampoo Dresser Laundry Area indoor
シャンプードレッサー洗濯機置場室内
Otherその他  Wood deck facing south with sunny
ウッドデッキ南向きで日当たり良好
Location
|