Rentals » Kyushu » Fukuoka Prefecture » Chuo-ku


Peace 5-chome detached
Garden Home day good of a quiet residential area
Storage capacity is sufficient (* ^ _ ^ *) living also spacious ☆ Close to school ☆
Bus toilet by, balcony, Flooring, Indoor laundry location, System kitchen, Add-fired function bathroom, Seperate, Bicycle-parking space, Key money unnecessary, 3-neck over stove, bay window, With gas range, 2 wayside Available, Private garden, Net private line, Musical Instruments consultation, 2 Station Available, Within a 3-minute bus stop walk
Railroad-station
Nishitetsu / Peace 5-chome bus stop Fukuoka Chuo-ku, Fukuoka City peace 5
Walk
3 minutes
Rent
145,000 yen
Depreciation and amortization
435,000 yen
Security deposit
580,000 yen
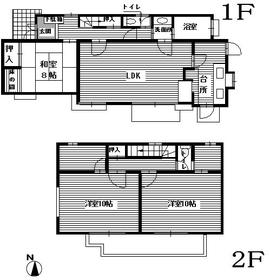
Floor plan
3LDK
Occupied area
78.77 sq m
Direction
South
Type
Residential home
Year Built
Built 19 years
Property name
Fukuoka Chuo-ku, Fukuoka peace 5 peace 5-chome bus stop of rental housing [Rental apartment ・ Apartment] information Property Details
Transportation facilities
Nishitetsu / Peace 5-chome bus stop walk 3 minutes Nishitetsu Tenjin Omuta Line / Nishitetsu Ayumi Hirao 20 minutes
Subway Nanakuma line / Ayumi Sakurazaka 29 minutes
Construction
Wooden
Story
2-story
Built years
March 1996
Nonlife insurance
The main
Parking lot
Free with
Move-in
Consultation
Trade aspect
Mediation
Conditions
Musical Instruments consultation
Property code
1841001


Building appearance

Building appearance

Living and room

Living and room
Living and room

Kitchen

Kitchen

Bath

Bath

Toilet

Toilet

Receipt

Receipt

Other room space

Other room space

Washroom

Washroom

Balcony

Balcony

Other

Other


Location