1975January
22,000 yen, 1DK, 1st floor / 2-story, 20 sq m
Rentals » Kyushu » Fukuoka Prefecture » Nishi-ku
 
| Railroad-station 沿線・駅 | | Metro Airport Line / Meinohama 地下鉄空港線/姪浜 | Address 住所 | | Fukuoka Prefecture, Nishi-ku, Fukuoka Meinohama 4 福岡県福岡市西区姪の浜4 | Walk 徒歩 | | 5 minutes 5分 | Rent 賃料 | | 22,000 yen 2.2万円 | Key money 礼金 | | 44,000 yen 4.4万円 | Floor plan 間取り | | 1DK 1DK | Occupied area 専有面積 | | 20 sq m 20m2 | Direction 向き | | South 南 | Type 種別 | | Apartment アパート | Year Built 築年 | | Built 40 years 築40年 | | Sato apartment 佐藤アパート |
| Nowadays rare all-Japanese-style \ ^^ / We must see more Japanese-style room of love ☆ 今どき珍しいオール和室\^^/和室が大好きな方必見☆ |
| Somewhere it drifts nostalgic smell from ( '▽ `) Bruno Meinohama good location a 5-minute walk to the Train Station ☆ If you like I have this room is also in the town of Meinohama is thoroughly addictive! It is such a room ☆ Inquiry to Torigai housing. どこからか懐かしいにおいが漂います(´▽`)ノ姪浜駅まで徒歩5分の好立地☆姪浜という街の中にもこんなお部屋があるんです好きな方はとことんハマる!そんなお部屋です☆お問合せは鳥飼ハウジングまで。 |
| Bus toilet by, Gas stove correspondence, Yang per good, Facing south, Add-fired function bathroom, Corner dwelling unit, Two-burner stove, Immediate Available, top floor, Two tenants consultation, Free Rent, Starting station, Within a 5-minute walk station, Within a 3-minute bus stop walk, Our managed propertiesese-style room, Initial cost 300,000 yen or less, Ventilation good バストイレ別、ガスコンロ対応、陽当り良好、南向き、追焚機能浴室、角住戸、2口コンロ、即入居可、最上階、二人入居相談、フリーレント、始発駅、駅徒歩5分以内、バス停徒歩3分以内、当社管理物件、和室、初期費用30万円以下、通風良好 |
Property name 物件名 | | Rental housing of Fukuoka Prefecture, Nishi-ku, Fukuoka Meinohama 4 Meinohama Station [Rental apartment ・ Apartment] information Property Details 福岡県福岡市西区姪の浜4 姪浜駅の賃貸住宅[賃貸マンション・アパート]情報 物件詳細 | Transportation facilities 交通機関 | | Metro Airport Line / Meinohama walk 5 minutes Metro Airport Line / Ayumi Muromi 18 minutes JR Chikuhi line / Ayumi Shimoyamato 27 minutes 地下鉄空港線/姪浜 歩5分 地下鉄空港線/室見 歩18分 JR筑肥線/下山門 歩27分
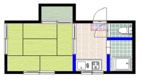
| Floor plan details 間取り詳細 | | Sum 6 DK3 和6 DK3 | Construction 構造 | | Wooden 木造 | Story 階建 | | 1st floor / 2-story 1階/2階建 | Built years 築年月 | | January 1975 1975年1月 | Nonlife insurance 損保 | | The main 要 | Move-in 入居 | | Immediately 即 | Trade aspect 取引態様 | | Mediation 仲介 | Area information 周辺情報 | | Meinohama Deitosu 660m until the (shopping center) 850m Meinohama Central Park until up to 250m super Nishitetsu Store (super) 430m convenience store Seven-Eleven (convenience store) 250m drugstore Cosmos (drugstore) to up to 270m West Court Meinohama (shopping center) (Park) 姪浜デイトス(ショッピングセンター)まで250mスーパー西鉄ストア(スーパー)まで430mコンビニセブンイレブン(コンビニ)まで250mドラッグストアコスモス(ドラッグストア)まで270mウエストコート姪浜(ショッピングセンター)まで850m姪浜中央公園(公園)まで660m |
Building appearance建物外観 
Living and room居室・リビング 



Kitchenキッチン 

Bathバス 
Receipt収納 
Other room spaceその他部屋・スペース 
Shopping centreショッピングセンター  Meinohama 250m until Deitosu (shopping center)
姪浜デイトス(ショッピングセンター)まで250m
Supermarketスーパー  430m to Super Nishitetsu Store (Super)
スーパー西鉄ストア(スーパー)まで430m
Location
|