Rentals » Kyushu » Fukuoka Prefecture » Sawara-ku


Seaside also has Aqua Court 10 Ichibankan
Bus toilet by, closet, Washbasin with shower, Bathroom Dryer, Indoor laundry location, System kitchen, Facing south, Elevator, closet, CATV, Immediate Available, Key money unnecessary, top floor, 3-neck over stove, Two-sided balcony, Two air conditioning, Zenshitsuminami direction, Deposit required, roof balcony, High temperature difference between hot water formulaese-style room, All room 6 tatami mats or more, Back door, South balcony
Railroad-station
Metro Airport Line / Fujisaki
Address
Fukuoka Prefecture, Sawara-ku, Fukuoka Momochihama 3
Walk
13 minutes
Rent
170,000 yen
Depreciation and amortization
510,000 yen
Security deposit
850,000 yen
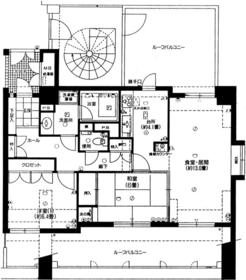
Floor plan
2LDK
Occupied area
78.6 sq m
Direction
South
Type
Mansion
Year Built
Built 21 years
Property name
Rental housing of Fukuoka Prefecture, Sawara-ku, Fukuoka Momochihama 3 Fujisaki Station [Rental apartment ・ Apartment] information Property Details
Transportation facilities
Metro Airport Line / Ayumi Fujisaki 13 minutes
Floor plan details
Sum 6 Hiroshi 6.4 LD13K4.1
Construction
Steel rebar
Story
14th floor / 14-storey
Built years
May 1993
Nonlife insurance
The main
Parking lot
Site 15000 yen
Move-in
Immediately
Trade aspect
Mediation
Conditions
Children not allowed
Property code
TN11171402
Balcony area
42.19 sq m


Building appearance

Building appearance

Living and room

Living and room
Living and room. Living
Living

Kitchen

Kitchen. Kitchen
Kitchen

Bath

Bath. bath
bath

Toilet

Toilet

Other room space

Other room space. bedroom
bedroom

Other room space. Japanese style room
Japanese style room

Washroom

Washroom

Balcony

Balcony. Veranda
Veranda

Entrance

Entrance. Entrance
Entrance



Location