2002February
48,000 yen, 2K, 11th floor / 13-story, 29.48 sq m
Rentals » Kyushu » Fukuoka Prefecture » Kitakyushu Tobata Ward
 
| Railroad-station 沿線・駅 | | JR Kagoshima Main Line / Tobata JR鹿児島本線/戸畑 | Address 住所 | | Kitakyushu, Fukuoka Prefecture Tobata-ku Saiwaicho 福岡県北九州市戸畑区幸町 | Walk 徒歩 | | 6 minutes 6分 | Rent 賃料 | | 48,000 yen 4.8万円 | Management expenses 管理費・共益費 | | 3500 yen 3500円 | Key money 礼金 | | 144,000 yen 14.4万円 | Floor plan 間取り | | 2K 2K | Occupied area 専有面積 | | 29.48 sq m 29.48m2 | Direction 向き | | East 東 | Type 種別 | | Mansion マンション | Year Built 築年 | | Built 13 years 築13年 | | Ferris tobata station east フェリス戸畑駅東 |
| JR Tobata Station ・ Tobata ion within walking distance! ! JR戸畑駅・戸畑イオン徒歩圏内!! |
| Bus toilet by, balcony, Air conditioning, Flooring, auto lock, Indoor laundry location, Elevator, Seperate, Immediate Available, Deposit required, Within a 10-minute walk station バストイレ別、バルコニー、エアコン、フローリング、オートロック、室内洗濯置、エレベーター、洗面所独立、即入居可、敷金不要、駅徒歩10分以内 |
Property name 物件名 | | Rental housing of Kitakyushu, Fukuoka Prefecture Tobata-ku Saiwaicho tobata station [Rental apartment ・ Apartment] information Property Details 福岡県北九州市戸畑区幸町 戸畑駅の賃貸住宅[賃貸マンション・アパート]情報 物件詳細 | Transportation facilities 交通機関 | | JR Kagoshima Main Line / Ayumi Tobata 6 minutes JR Kagoshima Main Line / Kyushu Institute of Technology before walking 20 minutes JR Kagoshima Main Line / Ayumi Edamitsu 37 minutes JR鹿児島本線/戸畑 歩6分 JR鹿児島本線/九州工大前 歩20分 JR鹿児島本線/枝光 歩37分
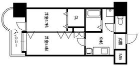
| Floor plan details 間取り詳細 | | Hiroshi 5.4 Hiroshi 4.7 K3 洋5.4 洋4.7 K3 | Construction 構造 | | Steel rebar 鉄骨鉄筋 | Story 階建 | | 11th floor / 13-story 11階/13階建 | Built years 築年月 | | February 2002 2002年2月 | Nonlife insurance 損保 | | The main 要 | Parking lot 駐車場 | | Site 10800 yen 敷地内10800円 | Move-in 入居 | | Immediately 即 | Trade aspect 取引態様 | | Mediation 仲介 | Property code 取り扱い店舗物件コード | | 1104405780 1104405780 | Guarantor agency 保証人代行 | | Zenhoren use 必 guarantor 1 adults + monthly 80% of the total rent 全保連利用必 連帯保証人1名+月額総賃料の80% |
Building appearance建物外観 



Living and room居室・リビング 

Kitchenキッチン 
Toiletトイレ 

Washroom洗面所 
Other Equipmentその他設備 
Entranceエントランス 

Otherその他 
Location
|