1997March
80,000 yen, 3LDK, Bungalow, 98.49 sq m
Rentals » Kyushu » Fukuoka Prefecture » Kitakyushu Wakamatsu-ku
 
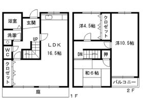
| Railroad-station 沿線・駅 | | JR Kagoshima Main Line / Orio JR鹿児島本線/折尾 | Address 住所 | | Kitakyushu, Fukuoka Prefecture Wakamatsu Takasunishi 2 福岡県北九州市若松区高須西2 | Walk 徒歩 | | 55 minutes 55分 | Rent 賃料 | | 80,000 yen 8万円 | Management expenses 管理費・共益費 | | 8000 yen 8000円 | Depreciation and amortization 敷引・償却金 | | 240,000 yen 24万円 | Security deposit 敷金 | | 240,000 yen 24万円 | Floor plan 間取り | | 3LDK 3LDK | Occupied area 専有面積 | | 98.49 sq m 98.49m2 | Direction 向き | | Southeast 南東 | Type 種別 | | Residential home 一戸建て | Year Built 築年 | | Built 18 years 築18年 | | Rare detached. 希少な戸建。 |
| Sanribu until right there サンリブまですぐそこ |
| Bus toilet by, balcony, Indoor laundry location, Seperate, Immediate Available, Private garden, Parking two free, Closet 2 places, Southeast direction バストイレ別、バルコニー、室内洗濯置、洗面所独立、即入居可、専用庭、駐車場2台無料、クロゼット2ヶ所、東南向き |
Property name 物件名 | | Rental housing of Kitakyushu, Fukuoka Prefecture Wakamatsu Takasunishi 2 Orio Station [Rental apartment ・ Apartment] information Property Details 福岡県北九州市若松区高須西2 折尾駅の賃貸住宅[賃貸マンション・アパート]情報 物件詳細 | Transportation facilities 交通機関 | | JR Kagoshima Main Line / Ayumi Orio 55 minutes City bus / Takasu alternating before walking 12 minutes JR鹿児島本線/折尾 歩55分 市営バス/高須交番前 歩12分 | Floor plan details 間取り詳細 | | Sum 6 Hiroshi 10.5 Hiroshi 4.5 LDK16.5 和6 洋10.5 洋4.5 LDK16.5 | Construction 構造 | | Wooden 木造 | Story 階建 | | Bungalow 平屋 | Built years 築年月 | | March 1997 1997年3月 | Nonlife insurance 損保 | | The main 要 | Parking lot 駐車場 | | Free with / Chu with Two 付無料/駐2台付 | Move-in 入居 | | Immediately 即 | Trade aspect 取引態様 | | Mediation 仲介 | Remarks 備考 | | Until Sanribu Takasu 821m / 953m to Seven-Eleven Wakamatsu Takasuhigashi 4-chome サンリブ高須まで821m/セブンイレブン若松高須東4丁目まで953m | Area information 周辺情報 | | Sanribu Takasu until the (super) up to 821m Seven-Eleven Wakamatsu Takasuhigashi 4-chome store (convenience store) up to 953m drag Segami Takasu shop (drugstore) to 824m McDonald's Takasu Sanribu store (restaurant) to 659m gust Wakamatsu Takasuhigashi store (restaurant) 806m サンリブ高須(スーパー)まで821mセブンイレブン若松高須東4丁目店(コンビニ)まで953mドラッグセガミ高須店(ドラッグストア)まで824mマクドナルド高須サンリブ店(飲食店)まで659mガスト若松高須東店(飲食店)まで806m福岡銀行高須支店(銀行)まで788m |
Building appearance建物外観 

Location
|