1982January
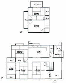
65,000 yen, 5DK, 2-story, 120 sq m
Rentals » Kyushu » Fukuoka Prefecture » Nogata
 
| Railroad-station 沿線・駅 | | bus / Stone Sanya Fukuoka Prefecture Nogata Oaza Ueki バス/石山谷福岡県直方市大字植木 | Walk 徒歩 | | 3 minutes 3分 | Rent 賃料 | | 65,000 yen 6.5万円 | Key money 礼金 | | 195,000 yen 19.5万円 | Floor plan 間取り | | 5DK 5DK | Occupied area 専有面積 | | 120 sq m 120m2 | Direction 向き | | Southeast 南東 | Type 種別 | | Residential home 一戸建て | Year Built 築年 | | Built 33 years 築33年 | | Ueki Yongchuan Detached 植木永川一戸建 |
| Parking with one. Garden one detached 駐車場1台付き。庭付き一戸建 |
| Bus toilet by, balcony, Gas stove correspondence, Indoor laundry location, Yang per good, Seperate, Bathroom vanity, closet, A quiet residential area, Parking one free, garden, Within a 3-minute bus stop walk, All room 6 tatami mats or more, Ventilation good バストイレ別、バルコニー、ガスコンロ対応、室内洗濯置、陽当り良好、洗面所独立、洗面化粧台、押入、閑静な住宅地、駐車場1台無料、庭、バス停徒歩3分以内、全居室6畳以上、通風良好 |
Property name 物件名 | | Fukuoka Prefecture Nogata Oaza Ueki Ishiyama valley of rental housing [Rental apartment ・ Apartment] information Property Details 福岡県直方市大字植木 石山谷の賃貸住宅[賃貸マンション・アパート]情報 物件詳細 | Transportation facilities 交通機関 | | bus / Ishiyamatani walk 3 minutes JR Chikuhō Main Line / Chikuzen'ueki step 20 minutes JR Chikuhō Main Line / New walk 25 minutes バス/石山谷 歩3分JR筑豊本線/筑前植木 歩20分 JR筑豊本線/新入 歩25分
| Floor plan details 間取り詳細 | | Sum 8 sum 6 sum 6 sum 6 Hiroshi 6 DK7 和8 和6 和6 和6 洋6 DK7 | Construction 構造 | | Wooden 木造 | Story 階建 | | 2-story 2階建 | Built years 築年月 | | January 1982 1982年1月 | Nonlife insurance 損保 | | The main 要 | Parking lot 駐車場 | | Free with 付無料 | Move-in 入居 | | Immediately 即 | Trade aspect 取引態様 | | Mediation 仲介 | Guarantor agency 保証人代行 | | Guarantee company use 必 Friends real-estate and building guarantee ※ Guarantee fee: ¥ 34125 (when the contract is only, No update) 保証会社利用必 ふれんず宅建保証 ※保証料:34125円(契約時のみ、更新なし) | Area information 周辺情報 | | Maxvalu rectangular 1879m Nogata City until the new store (supermarket) to 1993m Seven-Eleven rectangular Ueki store (convenience store) up to 1141m drag Koei rectangular Shimoshin'nyu store (drugstore) to up to 2006m Nogata stand Ueki junior high school (junior high school) 949m Nogata stand Ueki elementary school (elementary school) ・ 2239m to the nursery) マックスバリュ直方新入店(スーパー)まで1993mセブンイレブン直方植木店(コンビニ)まで1141mドラッグコーエイ直方下新入店(ドラッグストア)まで2006m直方市立植木中学校(中学校)まで949m直方市立植木小学校(小学校)まで1879m直方市立植木保育園(幼稚園・保育園)まで2239m |
Building appearance建物外観 

Location
|