1991November
30,000 yen, One-room, 9 floor / 10-storey, 40.8 sq m
Rentals » Kyushu » Fukuoka Prefecture » Onga District Ashiya-machi
 
| Railroad-station 沿線・駅 | | Nishitetsu / Hamayu park Fukuoka Onga District Ashiya-machi Yamaga 西鉄バス/はまゆう団地福岡県遠賀郡芦屋町山鹿 | Walk 徒歩 | | 12 minutes 12分 | Rent 賃料 | | 30,000 yen 3万円 | Management expenses 管理費・共益費 | | 6000 yen 6000円 | Floor plan 間取り | | One-room ワンルーム | Occupied area 専有面積 | | 40.8 sq m 40.8m2 | Direction 向き | | North 北 | Type 種別 | | Mansion マンション | Year Built 築年 | | Built 23 years 築23年 | | Natsuikehama Resort Sky Mansion 夏井ヶ浜リゾートスカイマンション |
| Property with a view of the nearby horizon of the sea! ! Fireworks looks of Ashiya-machi ☆ 海の近くの水平線の見える物件!!芦屋町の花火が見えます☆ |
| It is a property with a view of the horizon of the nearby sea! Fireworks looks of Ashiya-machi. Doo Doo market is located in the front of the eye. Along the beach 2, There is a 3km promenade. Bedrock bath is nearby. You can also surf. 海近くの水平線の見える物件です!芦屋町の花火が見えます。とと市場が目の前にあります。浜辺にそって2、3kmの遊歩道があります。岩盤風呂が近くにあります。サーフィンも出来ます。 |
| balcony, Air conditioning, Flooring, Indoor laundry location, Yang per good, Deposit 2 months, Good view, Ocean View バルコニー、エアコン、フローリング、室内洗濯置、陽当り良好、敷金2ヶ月、眺望良好、オーシャンビュー |
Property name 物件名 | | Fukuoka Prefecture Onga District Ashiya-cho, Yamaga Hamayu complex of rental housing [Rental apartment ・ Apartment] information Property Details 福岡県遠賀郡芦屋町山鹿 はまゆう団地の賃貸住宅[賃貸マンション・アパート]情報 物件詳細 | Transportation facilities 交通機関 | | Nishitetsu / Hamayu park walk 12 minutes JR Kagoshima Main Line / Ayumi Orio 81 minutes JR Kagoshima Main Line / Ayumi Mizumaki 83 minutes 西鉄バス/はまゆう団地 歩12分JR鹿児島本線/折尾 歩81分 JR鹿児島本線/水巻 歩83分
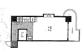
| Floor plan details 間取り詳細 | | Hiroshi 14.5 洋14.5 | Construction 構造 | | Steel rebar 鉄骨鉄筋 | Story 階建 | | 9 floor / 10-storey 9階/10階建 | Built years 築年月 | | November 1991 1991年11月 | Nonlife insurance 損保 | | The main 要 | Parking lot 駐車場 | | Free with 付無料 | Move-in 入居 | | Immediately 即 | Trade aspect 取引態様 | | Mediation 仲介 | Intermediate fee 仲介手数料 | | 1 month 1ヶ月 | Remarks 備考 | | Drugstore Mori 2651m to Wakamatsu Aobadai store ドラッグストアモリ若松青葉台店まで2651m | Area information 周辺情報 | | Drugstore Mori Wakamatsu Aobadai shop 730m until (drugstore) to 2651m Mommy's Shinei shop (super) up to 923m Hot more Ashiya-machi shop (restaurant) to 1178m Ashiya Yamaga post office (post office) to 542m Ashiya town office (government office) ドラッグストアモリ若松青葉台店(ドラッグストア)まで2651mマミーズしんえい店(スーパー)まで923mほっともっと芦屋町店(飲食店)まで1178m芦屋山鹿郵便局(郵便局)まで542m芦屋町役場(役所)まで730m城山公園(公園)まで518m |
Building appearance建物外観 
View眺望 

Otherその他 



Location
|