|
Railroad-station 沿線・駅 | | JR Tokaido Line / Arao JR東海道本線/荒尾 |
Address 住所 | | Ogaki City, Gifu Prefecture Kumano-cho 5 岐阜県大垣市熊野町5 |
Walk 徒歩 | | 14 minutes 14分 |
Rent 賃料 | | 40,500 yen 4.05万円 |
Management expenses 管理費・共益費 | | 5500 yen 5500円 |
Key money 礼金 | | 40,500 yen 4.05万円 |
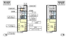
Floor plan 間取り | | 1K 1K |
Occupied area 専有面積 | | 23.61 sq m 23.61m2 |
Direction 向き | | South 南 |
Type 種別 | | Apartment アパート |
Year Built 築年 | | Built seven years 築7年 |
|
Pao Kumano A
パオ熊野A
|
|
It is ideal for the first time living alone in a furnished home appliances
家具家電付きで初めての一人暮らしに最適です
|
|
tv set refrigerator Furniture consumer electronics is equipped with one way necessary to the washing machine living alone. Furthermore unlimited use on the Internet monthly 1645 yen. Welcome those who want to try to live alone to try. It is also ideal for a business trip or relocation
テレビ 冷蔵庫 洗濯機一人暮らしに必要な家具家電は一通り揃ってます。さらにインターネット月々1645円で使い放題。お試しに一人暮らししてみたい方大歓迎。出張や転勤にも最適ですよ
|
|
Bus toilet by, Air conditioning, closet, Flooring, Bathroom Dryer, Indoor laundry location, Shoe box, Facing south, Bicycle-parking space, Immediate Available, Guarantor unnecessary, refrigerator, Unnecessary brokerage fees, Card key, CS, Washing machine, microwave, bed, With consumer electronics, Furnished, With curtain, On-site trash Storage, High speed Internet correspondence, All rooms with lighting
バストイレ別、エアコン、クロゼット、フローリング、浴室乾燥機、室内洗濯置、シューズボックス、南向き、駐輪場、即入居可、保証人不要、冷蔵庫、仲介手数料不要、カードキー、CS、洗濯機、電子レンジ、ベッド、家電付、家具付、カーテン付、敷地内ごみ置き場、高速ネット対応、全室照明付
|
Property name 物件名 | | Rental housing of Ogaki City, Gifu Prefecture Kumano-cho 5 Arao Station [Rental apartment ・ Apartment] information Property Details 岐阜県大垣市熊野町5 荒尾駅の賃貸住宅[賃貸マンション・アパート]情報 物件詳細 |
Transportation facilities 交通機関 | | JR Tokaido Line / Ayumi Arao 14 minutes Yōrō Railway Yōrō Line / Kitaogaki step 24 minutes JR Tokaido Line / Ogaki bus 13 minutes (bus stop) Kumano-cho, walk 7 minutes JR東海道本線/荒尾 歩14分 養老鉄道養老線/北大垣 歩24分 JR東海道本線/大垣 バス13分 (バス停)熊野町 歩7分
|
Floor plan details 間取り詳細 | | Hiroshi 8 洋8 |
Construction 構造 | | Wooden 木造 |
Story 階建 | | 1st floor / 2-story 1階/2階建 |
Built years 築年月 | | August 2007 2007年8月 |
Nonlife insurance 損保 | | 12,600 yen two years 1.26万円2年 |
Parking lot 駐車場 | | On-site 4320 yen 敷地内4320円 |
Move-in 入居 | | Immediately 即 |
Trade aspect 取引態様 | | Mediation 仲介 |
Conditions 条件 | | Two people Available / Office Unavailable 二人入居可/事務所利用不可 |
Property code 取り扱い店舗物件コード | | 1 1 |
Total units 総戸数 | | 18 units 18戸 |
Intermediate fee 仲介手数料 | | Unnecessary 不要 |
Guarantor agency 保証人代行 | | Guarantee company use 必 Plaza rental management guarantee (Ltd.) rent a month worth 保証会社利用必 プラザ賃貸管理保証(株) 賃料一ヵ月分 |
In addition ほか初期費用 | | Total 10,300 yen (Breakdown: The key replacement costs Yen 10260) 合計1.03万円(内訳:鍵交換費用 10260円) |
Other expenses ほか諸費用 | | Leave at the time basic cleaning fee 30,780 yen Environmental maintenance costs per month 540 yen 退去時基本清掃料 30780円 環境維持費月々 540円 |
Remarks 備考 | | Patrol management / Guarantor you may need, such as minors and students. 巡回管理/未成年者や学生など保証人が必要な場合もあります。 |