Rentals » Kanto » Gunma Prefecture » Maebashi
 
| Railroad-station 沿線・駅 | | JR Joetsu Line / Shinmaebashi JR上越線/新前橋 | Address 住所 | | Maebashi, Gunma Prefecture Maehakoda cho 群馬県前橋市前箱田町 | Walk 徒歩 | | 28 minutes 28分 | Rent 賃料 | | 300,000 yen 30万円 | Management expenses 管理費・共益費 | | 6000 yen 6000円 | Key money 礼金 | | 600,000 yen 60万円 | Security deposit 敷金 | | 600,000 yen 60万円 | Floor plan 間取り | | 2LDK 2LDK | Occupied area 専有面積 | | 90.77 sq m 90.77m2 | Direction 向き | | South 南 | Type 種別 | | Mansion マンション | Year Built 築年 | | Built seven years 築7年 | | The top floor of the eight-story! View Yoshi! Please contact us. Other empty facilities Yes 8階建ての最上階!眺望よし!是非お問い合わせ下さい。他空室有 |
| Spacious 22 Pledge counter kitchen to LDK of! All-electric! IH cooking heater! With bathroom TV, Fully equipped The top floor, This room only! I'd love to, Please contact us. 130,000 yen ~ There is vacancy of other 2LDK. 広々22帖のLDKにカウンターキッチン!オール電化!IHクッキングヒーター!浴室TV付き、設備充実 最上階は、この部屋のみ!是非、お問い合わせください。13万円 ~ 他の2LDKの空室あります。 |
| Bus toilet by, balcony, Air conditioning, closet, Flooring, Washbasin with shower, TV interphone, Bathroom Dryer, auto lock, Indoor laundry location, Yang per good, System kitchen, Facing south, Add-fired function bathroom, Corner dwelling unit, Warm water washing toilet seat, Elevator, Seperate, Bicycle-parking space, Delivery Box, CATV, Optical fiber, Outer wall tiling, Immediate Available, top floor, 3-neck over stove, Face-to-face kitchen, IH cooking heater, Parking two Allowed, All-electric, All living room flooring, Two-sided balcony, Design, 3 face lighting, Dimple key, Flat to the station, Deposit 2 months, Good view, Barrier-free, 24-hour ventilation system, 1 floor 1 dwelling unit, LDK20 tatami mats or more, TV with bathroom, Double-glazing, Air conditioning three, Closet 2 places, South living, Earthquake-resistant structure, Readjustment land within, Tower condominium, The area occupied 25 square meters or more, Bedroom 10 tatami mats or more, All room 6 tatami mats or more, Door to the washroom, Three-sided mirror with vanity, Cute, Shoes WIC, BS, Key money two months, Ventilation good バストイレ別、バルコニー、エアコン、クロゼット、フローリング、シャワー付洗面台、TVインターホン、浴室乾燥機、オートロック、室内洗濯置、陽当り良好、システムキッチン、南向き、追焚機能浴室、角住戸、温水洗浄便座、エレベーター、洗面所独立、駐輪場、宅配ボックス、CATV、光ファイバー、外壁タイル張り、即入居可、最上階、3口以上コンロ、対面式キッチン、IHクッキングヒーター、駐車2台可、オール電化、全居室フローリング、2面バルコニー、デザイナーズ、3面採光、ディンプルキー、駅まで平坦、敷金2ヶ月、眺望良好、バリアフリー、24時間換気システム、1フロア1住戸、LDK20畳以上、TV付浴室、複層ガラス、エアコン3台、クロゼット2ヶ所、南面リビング、耐震構造、区画整理地内、タワー型マンション、専有面積25坪以上、寝室10畳以上、全居室6畳以上、洗面所にドア、三面鏡付洗面化粧台、エコキュート、シューズWIC、BS、礼金2ヶ月、通風良好 |
Property name 物件名 | | Rental housing of Maebashi, Gunma Prefecture Maehakoda cho Shinmaebashi Station [Rental apartment ・ Apartment] information Property Details 群馬県前橋市前箱田町 新前橋駅の賃貸住宅[賃貸マンション・アパート]情報 物件詳細 | Transportation facilities 交通機関 | | JR Joetsu Line / Shinmaebashi walk 28 minutes JR Joetsu Line / Ayumi Ino 39 minutes JR Ryomo / Maebashi walk 53 minutes JR上越線/新前橋 歩28分 JR上越線/井野 歩39分 JR両毛線/前橋 歩53分
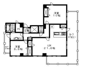
| Floor plan details 間取り詳細 | | Hiroshi 7.6 Hiroshi 6.4 LDK22.6 洋7.6 洋6.4 LDK22.6 | Construction 構造 | | Rebar Con 鉄筋コン | Story 階建 | | 8th floor / 8-story 8階/8階建 | Built years 築年月 | | February 2008 2008年2月 | Nonlife insurance 損保 | | The main 要 | Parking lot 駐車場 | | On-site 5000 yen 敷地内5000円 | Move-in 入居 | | Immediately 即 | Trade aspect 取引態様 | | Mediation 仲介 | Conditions 条件 | | Children Allowed 子供可 | Intermediate fee 仲介手数料 | | 1.05 months 1.05ヶ月 | Remarks 備考 | | All-electric Bathroom with TV オール電化 浴室TV付 | Area information 周辺情報 | | Yanai store Hakoda store up to (super) up to 809m Seven-Eleven Maebashi Maehakoda the town store (convenience store) up to 350m Save On Maebashi River music store (convenience store) up to 965m Shibata chemicals Otone store (drugstore) to 1556m Sekichu Maebashi Otone store (hardware store) ヤナイストアー箱田店(スーパー)まで809mセブンイレブン前橋前箱田町店(コンビニ)まで350mセーブオン前橋川曲店(コンビニ)まで965mシバタ薬品大利根店(ドラッグストア)まで1556mセキチュー前橋大利根店(ホームセンター)まで2227m前橋市立東小学校(小学校)まで887m |
Building appearance建物外観 


Living and room居室・リビング  Living with 20 tatami mats or more!
20畳以上あるリビング!
 It would be a large living ・ ・ ・ ・ !
広いリビングでしょう・・・・!
Kitchenキッチン 
Bathバス  With TV Leisurely bath time ・ ・ ・ !
TV付き のんびりとバスタイムを・・・!
Toiletトイレ  Warm water washing toilet seat
温水洗浄便座
Receipt収納 
Washroom洗面所  You can morning Shan.
朝シャンできます。
Entrance玄関  Shoes closet! Do what pairs of shoes can be stored?
シューズクローゼット!何足の靴が収納できるかな?
 Of course, auto with lock
もちろんオートロック付き
View眺望  Topcoat Miyama! Takasaki Good views and Maebashi.
上毛三山!高崎 前橋と眺望良好です。
Otherその他  IH stove! Face-to-face kitchen!
IHコンロ!対面キッチン!
Location
|