Rentals » Kanto » Gunma Prefecture » Maebashi
 
| Railroad-station 沿線・駅 | | JR Ryomo / Maebashi JR両毛線/前橋 | Address 住所 | | Maebashi, Gunma Prefecture Bunkyo-cho 3 群馬県前橋市文京町3 | Walk 徒歩 | | 19 minutes 19分 | Rent 賃料 | | ¥ 100,000 10万円 | Key money 礼金 | | ¥ 100,000 10万円 | Security deposit 敷金 | | ¥ 100,000 10万円 | Floor plan 間取り | | 3LDK 3LDK | Occupied area 専有面積 | | 66.3 sq m 66.3m2 | Direction 向き | | South 南 | Type 種別 | | Residential home 一戸建て | Year Built 築年 | | Built six years 築6年 | | ☆ Zelkova walk the immediate vicinity of the single-family ☆ ☆けやきウォークすぐ近くの一戸建て☆ |
| Just until the zelkova Walk Maebashi largest shopping mall 5 minutes! It is detached of 20 minutes and a good location walk to the Maebashi Station ☆ Built shallow that for appearance ・ It is very beautiful to both interior (^^) / 前橋市最大のショッピングモールのけやきウォークまでわずか5分!前橋駅まで徒歩20分と好立地の一戸建てです☆築浅なため外観・内装ともにとてもキレイです(^^)/ |
| Bus toilet by, Air conditioning, closet, Flooring, TV interphone, Indoor laundry location, Yang per good, System kitchen, Facing south, Add-fired function bathroom, Warm water washing toilet seat, Seperate, Immediate Available, loft, Parking two Allowed, Deposit 1 month, All living room flooring, Two air conditioning, Window in the kitchen, Parking two free, Second floor living room, LDK12 tatami mats or more, Key money one month, Ventilation good バストイレ別、エアコン、クロゼット、フローリング、TVインターホン、室内洗濯置、陽当り良好、システムキッチン、南向き、追焚機能浴室、温水洗浄便座、洗面所独立、即入居可、ロフト、駐車2台可、敷金1ヶ月、全居室フローリング、エアコン2台、キッチンに窓、駐車場2台無料、2階リビング、LDK12畳以上、礼金1ヶ月、通風良好 |
Property name 物件名 | | Rental housing of Maebashi, Gunma Prefecture Bunkyo-cho 3 Maebashi Station [Rental apartment ・ Apartment] information Property Details 群馬県前橋市文京町3 前橋駅の賃貸住宅[賃貸マンション・アパート]情報 物件詳細 | Transportation facilities 交通機関 | | JR Ryomo / Maebashi walk 19 minutes Jomo Electric Railway / Joto walk 19 minutes Jomo Electric Railway / Central Maebashi walk 23 minutes JR両毛線/前橋 歩19分 上毛電鉄/城東 歩19分 上毛電鉄/中央前橋 歩23分
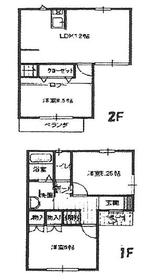
| Floor plan details 間取り詳細 | | Hiroshi 8.5 Hiroshi 6.25 Hiroshi 6 LDK12 洋8.5 洋6.25 洋6 LDK12 | Construction 構造 | | Wooden 木造 | Story 階建 | | 1st floor / 2-story 1階/2階建 | Built years 築年月 | | March 2008 2008年3月 | Nonlife insurance 損保 | | The main 要 | Parking lot 駐車場 | | Free with 付無料 | Move-in 入居 | | Immediately 即 | Trade aspect 取引態様 | | Mediation 仲介 | Total units 総戸数 | | 1 units 1戸 | Intermediate fee 仲介手数料 | | 1.05 months 1.05ヶ月 | Other expenses ほか諸費用 | | Key exchange costs (optional) 36750 yen 鍵交換費(任意)36750円 | Area information 周辺情報 | | Muji zelkova Walk Maebashi store (shopping center) until 1244m Lawson Maebashi Asahi store (convenience store) up to 677m Gunma Prefectural Maebashi Seiryo High School (High School ・ National College of Technology) up to 287m Maebashi east nursery 701m to Maebashi Municipal fifth junior high school (junior high school) up to 323m Maebashi Municipal Tenkawa elementary school (elementary school) (kindergarten ・ 573m to the nursery) 無印良品けやきウォーク前橋店(ショッピングセンター)まで1244mローソン前橋朝日町店(コンビニ)まで677m群馬県立前橋清陵高校(高校・高専)まで701m前橋市立第五中学校(中学校)まで323m前橋市立天川小学校(小学校)まで287m前橋東保育園(幼稚園・保育園)まで573m |
Living and room居室・リビング 
Building appearance建物外観 
 South-facing building, which was the white tones ☆
白を基調とした南向き建物☆
Living and room居室・リビング  Happy with loft ☆
うれしいロフト付き☆
Kitchenキッチン  3-neck type of gas stove
3口タイプのガスコンロ
Bathバス  Green base of the bath ☆ With window
グリーンベースのお風呂☆窓付き
Toiletトイレ  With Washlet
ウォシュレット付き
Other room spaceその他部屋・スペース  Lighting with bright Western-style ☆
照明付きの明るい洋室☆
 South Western-style
南側洋室
Washroom洗面所  Washbasin with shower
シャワー付き洗面台
Other Equipmentその他設備  TV interphone
TVインターホン
 Reheating function
追い焚き機能
Parking lot駐車場  Two Friendly parking spaces ☆
2台可の駐車スペース☆
Otherその他  Private post ☆
専用ポスト☆
Location
|