|
Railroad-station 沿線・駅 | | JR Joetsu Line / Gunmasoja JR上越線/群馬総社 |
Address 住所 | | Maebashi, Gunma Prefecture Kamikoide cho 3 群馬県前橋市上小出町3 |
Walk 徒歩 | | 57 minutes 57分 |
Rent 賃料 | | 40,000 yen 4万円 |
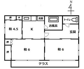
Floor plan 間取り | | 3K 3K |
Occupied area 専有面積 | | 47.2 sq m 47.2m2 |
Direction 向き | | South 南 |
Type 種別 | | Residential home 一戸建て |
Year Built 築年 | | Built 33 years 築33年 |
|
It is the House for a quiet residential area of the one-story.
閑静な住宅地の平屋の戸建てです。
|
|
There is a park in front of the eye, Shops There is also shopping is also convenient to the peripheral. Parking space There are also 2 car.
目の前に公園があり、周辺にお店もあり買い物も便利です。駐車スペースも2台分あります。
|
|
Bus toilet by, Air conditioning, Gas stove correspondence, Facing south, Warm water washing toilet seat, Bathroom vanity, closet, Immediate Available, A quiet residential area, With lighting, Parking two Allowed, terrace, Parking two free, Upper closet, garden, Bungalow, No upper floorese-style room, propane gas, Deposit ・ Key money unnecessary, Guarantee company Available
バストイレ別、エアコン、ガスコンロ対応、南向き、温水洗浄便座、洗面化粧台、押入、即入居可、閑静な住宅地、照明付、駐車2台可、テラス、駐車場2台無料、天袋、庭、平屋、上階無し、和室、プロパンガス、敷金・礼金不要、保証会社利用可
|
Property name 物件名 | | Rental housing of Maebashi, Gunma Prefecture Kamikoide cho 3 Gunmasoja Station [Rental apartment ・ Apartment] information Property Details 群馬県前橋市上小出町3 群馬総社駅の賃貸住宅[賃貸マンション・アパート]情報 物件詳細 |
Transportation facilities 交通機関 | | JR Joetsu Line / Gunmasoja step 57 minutes Jomo Electric Railway / Central Maebashi walk 50 minutes Jomo Electric Railway / Joto walk 56 minutes JR上越線/群馬総社 歩57分 上毛電鉄/中央前橋 歩50分 上毛電鉄/城東 歩56分
|
Floor plan details 間取り詳細 | | Sum 6 sum 6 sum 4.5 K3 和6 和6 和4.5 K3 |
Construction 構造 | | Wooden 木造 |
Story 階建 | | Bungalow 平屋 |
Built years 築年月 | | November 1981 1981年11月 |
Nonlife insurance 損保 | | 15,000 yen two years 1.5万円2年 |
Parking lot 駐車場 | | Free with 付無料 |
Move-in 入居 | | Immediately 即 |
Trade aspect 取引態様 | | Mediation 仲介 |
Guarantor agency 保証人代行 | | Japan Rental guarantee Available 30,000 yen / 2 years 日本賃貸保証利用可 30,000円/2年 |
Remarks 備考 | | Pets are not allowed. ペットは不可です。 |
Area information 周辺情報 | | Furessei Aramaki store (supermarket) up to 856m Seven-Eleven Maebashi Aramaki-machi store (convenience store) up to 615m drag cedar Aramaki store (drugstore) to 901m Maebashi Municipal Nankitsu nursery school (kindergarten ・ Nursery school) until 1036m Gunma University Hospital (890m to the hospital) to 1487m Kamikoide national polity park (park) フレッセイ荒牧店(スーパー)まで856mセブンイレブン前橋荒牧町店(コンビニ)まで615mドラッグスギ荒牧店(ドラッグストア)まで901m前橋市立南橘保育所(幼稚園・保育園)まで1036m群馬大学医学部附属病院(病院)まで1487m上小出国体公園(公園)まで890m |