|
Railroad-station 沿線・駅 | | Jomo Electric Railway / Mitsumata 上毛電鉄/三俣 |
Address 住所 | | Maebashi, Gunma Prefecture Nishikatakai cho 群馬県前橋市西片貝町1 |
Walk 徒歩 | | 7 minutes 7分 |
Rent 賃料 | | 40,000 yen 4万円 |
Security deposit 敷金 | | 40,000 yen 4万円 |
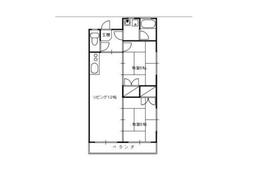
Floor plan 間取り | | 2LDK 2LDK |
Occupied area 専有面積 | | 52.06 sq m 52.06m2 |
Direction 向き | | South 南 |
Type 種別 | | Apartment アパート |
Year Built 築年 | | Built 29 years 築29年 |
|
Spacious LDK and your rent deals.
広々としたLDKとお家賃がお得です。
|
|
Parking second unit necessary one will be looking for in the neighboring. (3,000 yen ~ 4,000 yen)
駐車場2台目必要な方は近隣でお探し致します。(3,000円 ~ 4,000円)
|
|
Bus toilet by, balcony, Gas stove correspondence, Yang per good, Facing south, Corner dwelling unit, Warm water washing toilet seat, Seperate, closet, Immediate Available, Key money unnecessary, With lighting, Upper closet, Some flooring, LDK12 tatami mats or more, propane gas, Door to the washroom
バストイレ別、バルコニー、ガスコンロ対応、陽当り良好、南向き、角住戸、温水洗浄便座、洗面所独立、押入、即入居可、礼金不要、照明付、天袋、一部フローリング、LDK12畳以上、プロパンガス、洗面所にドア
|
Property name 物件名 | | Rental housing of Maebashi, Gunma Prefecture Nishikatakai cho Mitsumata Station [Rental apartment ・ Apartment] information Property Details 群馬県前橋市西片貝町1 三俣駅の賃貸住宅[賃貸マンション・アパート]情報 物件詳細 |
Transportation facilities 交通機関 | | Jomo Electric Railway / Mitsumata walk 7 minutes Jomo Electric Railway / Katakai walk 9 minutes Jomo Electric Railway / Joto walk 18 minutes 上毛電鉄/三俣 歩7分 上毛電鉄/片貝 歩9分 上毛電鉄/城東 歩18分
|
Floor plan details 間取り詳細 | | Sum 6 sum 6 LDK12 和6 和6 LDK12 |
Construction 構造 | | Steel frame 鉄骨 |
Story 階建 | | 1st floor / 2-story 1階/2階建 |
Built years 築年月 | | March 1985 1985年3月 |
Nonlife insurance 損保 | | 15,000 yen two years 1.5万円2年 |
Parking lot 駐車場 | | On-site 5000 yen 敷地内5000円 |
Move-in 入居 | | Immediately 即 |
Trade aspect 取引態様 | | Mediation 仲介 |
Guarantor agency 保証人代行 | | Japan Rental guarantee Available 30,000 yen / 2 years 日本賃貸保証利用可 30,000円/2年 |
Area information 周辺情報 | | Furessei Katakai store (supermarket) up to 581m Beisia Maebashi Mall store (supermarket) up to 1027m Seven-Eleven Maebashi Shitaoki the town store (convenience store) 803m Marue drag Katakai store (drugstore) to 623mTSUTAYA Katakai store (video rental) to 408m Hot more Maebashi Mitsumata フレッセイ片貝店(スーパー)まで581mベイシア前橋モール店(スーパー)まで1027mセブンイレブン前橋下沖町店(コンビニ)まで803mマルエドラッグ片貝店(ドラッグストア)まで623mTSUTAYA片貝店(レンタルビデオ)まで408mほっともっと前橋三俣店(飲食店)まで288m |