|
Railroad-station 沿線・駅 | | JR Joetsu Line / Takasaki wholesaler-cho JR上越線/高崎問屋町 |
Address 住所 | | Takasaki, Gunma Prefecture Iizuka-cho 群馬県高崎市飯塚町 |
Walk 徒歩 | | 19 minutes 19分 |
Rent 賃料 | | 24,000 yen 2.4万円 |
Management expenses 管理費・共益費 | | 500 yen 500円 |
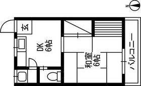
Floor plan 間取り | | 1DK 1DK |
Occupied area 専有面積 | | 26.4 sq m 26.4m2 |
Direction 向き | | South 南 |
Type 種別 | | Apartment アパート |
Year Built 築年 | | Built 34 years 築34年 |
|
Koror Plata N
コロールプラタN
|
|
It went down rents! ! Zenshitsuminami facing sunny!
賃料下がりました!!全室南向き日当たり良好!
|
|
convenience store, Station near life convenient 20 minutes by bicycle to through large Please contact us for more information there through college student customers limited circle obtained conditions
コンビニ、駅近く生活便利 経大まで自転車で20分 経大生さま限定マル得条件あり詳細はお問い合わせ下さい
|
|
Bus toilet by, balcony, Air conditioning, Gas stove correspondence, Yang per good, Facing south, Corner dwelling unit, closet, Immediate Available, A quiet residential area, Unnecessary brokerage fees, Vinyl flooring, Initial cost 100,000 yen or less, The window in the bathroom, Upper closet, Our managed properties, Deposit ・ Key money unnecessary
バストイレ別、バルコニー、エアコン、ガスコンロ対応、陽当り良好、南向き、角住戸、押入、即入居可、閑静な住宅地、仲介手数料不要、クッションフロア、初期費用10万円以下、浴室に窓、天袋、当社管理物件、敷金・礼金不要
|
Property name 物件名 | | Rental housing of Takasaki, Gunma Prefecture Iizuka-cho Takasakitonyamachi [Rental apartment ・ Apartment] information Property Details 群馬県高崎市飯塚町 高崎問屋町駅の賃貸住宅[賃貸マンション・アパート]情報 物件詳細 |
Transportation facilities 交通機関 | | JR Joetsu Line / Takasaki wholesaler Town, walking 19 minutes JR Shinetsu / Kitatakasaki step 24 minutes JR Joetsu Line / Ayumi Ino 30 minutes JR上越線/高崎問屋町 歩19分 JR信越本線/北高崎 歩24分 JR上越線/井野 歩30分
|
Floor plan details 間取り詳細 | | Sum 6 DK6 和6 DK6 |
Construction 構造 | | Wooden 木造 |
Story 階建 | | Second floor / 2-story 2階/2階建 |
Built years 築年月 | | August 1980 1980年8月 |
Nonlife insurance 損保 | | The main 要 |
Parking lot 駐車場 | | On-site 2000 yen 敷地内2000円 |
Move-in 入居 | | Immediately 即 |
Trade aspect 取引態様 | | Mediation 仲介 |
Remarks 備考 | | Guarantee company subscription (required) 保証会社加入(必須) |
Area information 周辺情報 | | Yaoko Co., Ltd. Takasaki Iizuka shop 508m create es to (super) up to 1128m FamilyMart Takasaki Iizuka-cho store (convenience store) ・ Dee Takasaki Iizuka shop 808m until (drugstore) to 650m Kojima NEW Takasaki store (hardware store) up to 1517m medical corporations rush hospital (hospital) to 996m Towa Bank Takasaki North Branch (Bank) ヤオコー高崎飯塚店(スーパー)まで1128mファミリーマート高崎飯塚町店(コンビニ)まで508mクリエイトエス・ディー高崎飯塚店(ドラッグストア)まで650mコジマNEW高崎店(ホームセンター)まで1517m医療法人井草病院(病院)まで996m東和銀行高崎北支店(銀行)まで808m |