|
Railroad-station 沿線・駅 | | JR Joetsu Line / Takasaki wholesaler-cho JR上越線/高崎問屋町 |
Address 住所 | | Takasaki, Gunma Kaizawa cho 群馬県高崎市貝沢町 |
Walk 徒歩 | | 13 minutes 13分 |
Rent 賃料 | | 67,000 yen 6.7万円 |
Security deposit 敷金 | | 67,000 yen 6.7万円 |
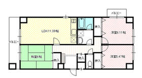
Floor plan 間取り | | 3LDK 3LDK |
Occupied area 専有面積 | | 71.68 sq m 71.68m2 |
Direction 向き | | West 西 |
Type 種別 | | Mansion マンション |
Year Built 築年 | | Built 26 years 築26年 |
|
Casa ・ Piccola Takasaki
カーサ・ピッコラ高崎
|
|
primary school ・ Junior high school is near.
小学校・中学校近くです。
|
|
In this breadth, The rent in Reinforced Concrete! Soundproof performance is high. Supermarket, Convenience store near, Convenient life.
この広さで、鉄筋コンクリート造でこの家賃!防音性能は高いです。スーパー、コンビニも近く、生活便利。
|
|
Bus toilet by, balcony, Air conditioning, Flooring, Indoor laundry location, Shoe box, Corner dwelling unit, Seperate, Bicycle-parking space, CATV, Immediate Available, Key money unnecessary, A quiet residential area, top floor, Single person consultation, Parking two Allowed, Deposit 1 month, Two tenants consultation, Two-sided balcony
バストイレ別、バルコニー、エアコン、フローリング、室内洗濯置、シューズボックス、角住戸、洗面所独立、駐輪場、CATV、即入居可、礼金不要、閑静な住宅地、最上階、単身者相談、駐車2台可、敷金1ヶ月、二人入居相談、2面バルコニー
|
Property name 物件名 | | Rental housing of Takasaki, Gunma Prefecture Kaizawa cho Takasakitonyamachi [Rental apartment ・ Apartment] information Property Details 群馬県高崎市貝沢町 高崎問屋町駅の賃貸住宅[賃貸マンション・アパート]情報 物件詳細 |
Transportation facilities 交通機関 | | JR Joetsu Line / Takasaki wholesaler Town, walking 13 minutes JR Shinetsu / Kitatakasaki step 33 minutes JR Joetsu Line / Ayumi Ino 29 minutes JR上越線/高崎問屋町 歩13分 JR信越本線/北高崎 歩33分 JR上越線/井野 歩29分
|
Floor plan details 間取り詳細 | | Sum 6 Hiroshi 6.2 Hiroshi 5.5 LDK11.4 和6 洋6.2 洋5.5 LDK11.4 |
Construction 構造 | | Rebar Con 鉄筋コン |
Story 階建 | | 3rd floor / Three-story 3階/3階建 |
Built years 築年月 | | January 1989 1989年1月 |
Nonlife insurance 損保 | | The main 要 |
Parking lot 駐車場 | | Neighborhood 250m4000 yen 近隣250m4000円 |
Move-in 入居 | | Immediately 即 |
Trade aspect 取引態様 | | Agency 代理 |
Conditions 条件 | | Single person Allowed / Two people Available / Children Allowed 単身者可/二人入居可/子供可 |
Property code 取り扱い店舗物件コード | | 6403107 6403107 |
Intermediate fee 仲介手数料 | | 1.05 months 1.05ヶ月 |