1990January
38,000 yen, 1DK, 1st floor / Three-story, 27.36 sq m
Rentals » Kanto » Gunma Prefecture » Takasaki
 
| Railroad-station 沿線・駅 | | JR Joetsu Line / Takasaki wholesaler-cho JR上越線/高崎問屋町 | Address 住所 | | Takasaki, Gunma Midoricho 2 群馬県高崎市緑町2 | Walk 徒歩 | | Half an hour 30分 | Rent 賃料 | | 38,000 yen 3.8万円 | Management expenses 管理費・共益費 | | 2000 yen 2000円 | Security deposit 敷金 | | 38,000 yen 3.8万円 | Floor plan 間取り | | 1DK 1DK | Occupied area 専有面積 | | 27.36 sq m 27.36m2 | Direction 向き | | South 南 | Type 種別 | | Apartment アパート | Year Built 築年 | | Built 25 years 築25年 | | Loop line ・ No. 17 ・ Access to high bitter line is Midoricho good 環状線・17号・高渋線へのアクセスが良好の緑町です |
| Thank you for reading. In addition Maybe spacious feel more than that I think the 1DK with loft there is a service of attention Students ☆ 閲覧ありがとうございます。ロフト付きの1DKだと思っている以上に広々感じるかもしれませんねさらに学生の方注目のサービスがあります☆ |
| Bus toilet by, Air conditioning, closet, TV interphone, Facing south, Bicycle-parking space, Immediate Available, Key money unnecessary, loft バストイレ別、エアコン、クロゼット、TVインターホン、南向き、駐輪場、即入居可、礼金不要、ロフト |
Property name 物件名 | | Rental housing of Takasaki, Gunma Prefecture Midoricho 2 Takasakitonyamachi [Rental apartment ・ Apartment] information Property Details 群馬県高崎市緑町2 高崎問屋町駅の賃貸住宅[賃貸マンション・アパート]情報 物件詳細 | Transportation facilities 交通機関 | | JR Joetsu Line / Takasaki wholesaler Town, walking 30 minutes JR Shinetsu / Kitatakasaki step 27 minutes JR Joetsu Line / Ayumi Ino 31 minutes JR上越線/高崎問屋町 歩30分 JR信越本線/北高崎 歩27分 JR上越線/井野 歩31分
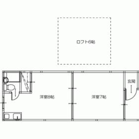
| Floor plan details 間取り詳細 | | Hiroshi 7 DK8 loft 6 洋7 DK8 ロフト 6 | Construction 構造 | | Steel frame 鉄骨 | Story 階建 | | 1st floor / Three-story 1階/3階建 | Built years 築年月 | | January 1990 1990年1月 | Nonlife insurance 損保 | | 15,000 yen two years 1.5万円2年 | Parking lot 駐車場 | | On-site 3,000 yen 敷地内3000円 | Move-in 入居 | | Immediately 即 | Trade aspect 取引態様 | | Mediation 仲介 | Intermediate fee 仲介手数料 | | 1.05 months 1.05ヶ月 | Area information 周辺情報 | | Berg Takasaki Oyagi store up to (super) up to 1109m Seven-Eleven Takasaki Midoricho 2-chome (convenience store) up to 284m kawachii chemicals Oyagi shop (drugstore) to 1224m Kojima NEW Takasaki store (hardware store) to the 488m steak Don Takasaki Kitamise (restaurant) ベルク高崎大八木店(スーパー)まで1109mセブンイレブン高崎緑町2丁目店(コンビニ)まで284mカワチ薬品大八木店(ドラッグストア)まで1224mコジマNEW高崎店(ホームセンター)まで488mステーキのどん高崎北店(飲食店)まで337m高崎問屋町郵便局(郵便局)まで959m |
Building appearance建物外観 
Living and room居室・リビング 
 8 Pledge of dining kitchen and 7 Pledge of Western-style
8帖のダイニングキッチンと7帖の洋室
 7 Pledge Western-style with a loft
ロフト付きの7帖洋室
Kitchenキッチン  Deodorant in the kitchen with a window
窓のあるキッチンで防臭
Bathバス  I'm glad another bus toilet
バストイレ別がうれしい
Toiletトイレ  With Washlet
ウォシュレット付き
Other Equipmentその他設備  Air-conditioned
エアコン付き
Location
|