|
Railroad-station 沿線・駅 | | UeShin Electric Railway / Minamitakasaki 上信電鉄/南高崎 |
Address 住所 | | Takasaki, Gunma Terao-cho 群馬県高崎市寺尾町 |
Walk 徒歩 | | 17 minutes 17分 |
Rent 賃料 | | 67,000 yen 6.7万円 |
Management expenses 管理費・共益費 | | 2000 yen 2000円 |
Key money 礼金 | | 67,000 yen 6.7万円 |
Security deposit 敷金 | | 134,000 yen 13.4万円 |
Floor plan 間取り | | 1LDK 1LDK |
Occupied area 専有面積 | | 47.43 sq m 47.43m2 |
Direction 向き | | Southeast 南東 |
Type 種別 | | Mansion マンション |
Year Built 築年 | | New construction 新築 |
|
BJ Mansion
BJマンション
|
|
Apartment to live with pets
ペットと暮らすマンション
|
|
It is a mansion to live with pets. Dogs and cats one animal Madeka ・ Body weight 12 kg Madeka
ペットと暮らすマンションです。犬猫1匹迄可・体重12キロ迄可
|
|
Bus toilet by, balcony, Air conditioning, auto lock, Indoor laundry location, Add-fired function bathroom, Warm water washing toilet seat, Seperate, Two-burner stove, Face-to-face kitchen, Pets Negotiable, Parking one free, Parking two Allowed, With gas range, LDK15 tatami mats or more, Within built 2 years, Pet private facilities, Formaldehyde measures, Exterior wall siding, Southeast direction, propane gas
バストイレ別、バルコニー、エアコン、オートロック、室内洗濯置、追焚機能浴室、温水洗浄便座、洗面所独立、2口コンロ、対面式キッチン、ペット相談、駐車場1台無料、駐車2台可、ガスレンジ付、LDK15畳以上、築2年以内、ペット専用設備、ホルムアルデヒド対策、外壁サイディング、東南向き、プロパンガス
|
Property name 物件名 | | Rental housing of Takasaki, Gunma Prefecture Terao cho Minamitakasaki Station [Rental apartment ・ Apartment] information Property Details 群馬県高崎市寺尾町 南高崎駅の賃貸住宅[賃貸マンション・アパート]情報 物件詳細 |
Transportation facilities 交通機関 | | UeShin Electric Railway / Minamitakasaki step 17 minutes JR Takasaki Line / Ayumi Takasaki 33 minutes 上信電鉄/南高崎 歩17分 JR高崎線/高崎 歩33分
|
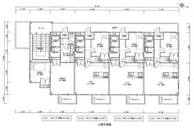
Floor plan details 間取り詳細 | | Hiroshi 5.6 14.7 洋5.6 14.7 |
Construction 構造 | | Steel frame 鉄骨 |
Story 階建 | | Second floor / 2-story 2階/2階建 |
Built years 築年月 | | New construction in January 2014 新築 2014年1月 |
Nonlife insurance 損保 | | 15,000 yen two years 1.5万円2年 |
Move-in 入居 | | Immediately 即 |
Trade aspect 取引態様 | | Mediation 仲介 |
Conditions 条件 | | Pets Negotiable ペット相談 |
Balcony area バルコニー面積 | | 3.64 sq m 3.64m2 |
Deposit buildup 敷金積み増し | | In the case of pet breeding deposit 3 months (total) ペット飼育の場合敷金3ヶ月(総額) |
Other expenses ほか諸費用 | | Guarantee Association 保証協会 |
Remarks 備考 | | Pet's Mansion. Dogs and cats one animal Madeka ・ Body weight 12 kg Madeka ペットマンションです。犬猫1匹迄可・体重12キロ迄可 |