1993April
75,000 yen, 3LDK, 3rd floor / Three-story, 66 sq m
Rentals » Chugoku » Hiroshima » Higashi-ku
 
| Railroad-station 沿線・駅 | | bus / Mankyu Teramae Hiroshima, Hiroshima Prefecture, Higashi-ku, Zhongshan Dong 1 バス/万休寺前広島県広島市東区中山東1 | Walk 徒歩 | | 4 minutes 4分 | Rent 賃料 | | 75,000 yen 7.5万円 | Security deposit 敷金 | | 225,000 yen 22.5万円 | Floor plan 間取り | | 3LDK 3LDK | Occupied area 専有面積 | | 66 sq m 66m2 | Direction 向き | | South 南 | Type 種別 | | Mansion マンション | Year Built 築年 | | Built 22 years 築22年 | | Indoor small dog breeding Allowed! Rent +5000 yen 室内小型犬飼育可!賃料+5000円 |
| Bus toilet by, Gas stove correspondence, Flooring, Facing south, Corner dwelling unit, Seperate, Two-burner stove, Bicycle-parking space, Pets Negotiable, With gas range バストイレ別、ガスコンロ対応、フローリング、南向き、角住戸、洗面所独立、2口コンロ、駐輪場、ペット相談、ガスレンジ付 |
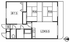
Property name 物件名 | | Hiroshima, Hiroshima Prefecture, Higashi-ku, Zhongshan Dong 1 Mankyu Teramae of rental housing [Rental apartment ・ Apartment] information Property Details 広島県広島市東区中山東1 万休寺前の賃貸住宅[賃貸マンション・アパート]情報 物件詳細 | Transportation facilities 交通機関 | | bus / Mankyu Ayumi Teramae 4 minutes バス/万休寺前 歩4分 | Floor plan details 間取り詳細 | | Sum 6 sum 6 Hiroshi 7.5 LDK9.5 和6 和6 洋7.5 LDK9.5 | Construction 構造 | | Rebar Con 鉄筋コン | Story 階建 | | 3rd floor / Three-story 3階/3階建 | Built years 築年月 | | April 1993 1993年4月 | Nonlife insurance 損保 | | 20,000 yen two years 2万円2年 | Parking lot 駐車場 | | Free with 付無料 | Move-in 入居 | | Immediately 即 | Trade aspect 取引態様 | | Mediation 仲介 | Conditions 条件 | | Pets Negotiable ペット相談 | Remarks 備考 | | 400m up to 24 hours super / In the case of pet breeding Rent +5 thousand yen 24時間スーパーまで400m/ペット飼育の場合 家賃+5千円 | Area information 周辺情報 | | Foreo Hiroshima Higashi (shopping center) to 300m Zhongshan nursery school up to 748m to spark Zhongshan shop (super) 669m Lawson Hiroshima Zhongshan Dong 3-chome (convenience store) up to 398m Hiroshima Tatsunaka Mountain Elementary School (elementary school) (kindergarten ・ 748m to nursery school) up to 387m Foreo Hiroshima Higashi (shopping center) フォレオ広島東(ショッピングセンター)まで748mスパーク中山店(スーパー)まで669mローソン広島中山東3丁目店(コンビニ)まで398m広島市立中山小学校(小学校)まで300m中山保育園(幼稚園・保育園)まで387mフォレオ広島東(ショッピングセンター)まで748m |
Building appearance建物外観 
Living and room居室・リビング 



Kitchenキッチン 
Bathバス 
Toiletトイレ 
Washroom洗面所 
Balconyバルコニー 
Entrance玄関 
Location
|