1997April
25,000 yen, 1DK, 1st floor / 2-story, 28.89 sq m
Rentals » Hokkaido » Sapporo Toyohira-ku
 
| Railroad-station 沿線・駅 | | Subway Namboku / South Hiragishi 地下鉄南北線/南平岸 | Address 住所 | | Sapporo, Hokkaido Toyohira-ku Hiragishigojo 13 北海道札幌市豊平区平岸五条13 | Walk 徒歩 | | 9 minutes 9分 | Rent 賃料 | | 25,000 yen 2.5万円 | Security deposit 敷金 | | 25,000 yen 2.5万円 | Floor plan 間取り | | 1DK 1DK | Occupied area 専有面積 | | 28.89 sq m 28.89m2 | Type 種別 | | Apartment アパート | Year Built 築年 | | Built 17 years 築17年 | | You can move in the contract money 15000 yen! Pets Allowed Single for! 契約金15000円で入居可能です!ペット可単身向け! |
| bus ・ Restroom! Kerosene FF ・ Hikari correspondence! Clean rooms in the pre-interior renovation バス・トイレ別!灯油FF・フレッツ光対応!内装リフォーム済みでキレイなお部屋 |
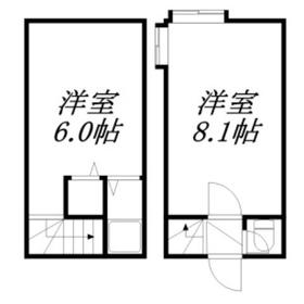
| Bus toilet by, Gas stove correspondence, closet, Indoor laundry location, Shoe box, closet, Optical fiber, With lighting, bay window, loft, Kerosene heater, Maisonette, High speed Internet correspondence バストイレ別、ガスコンロ対応、クロゼット、室内洗濯置、シューズボックス、押入、光ファイバー、照明付、出窓、ロフト、灯油暖房、メゾネット、高速ネット対応 |
Property name 物件名 | | Sapporo, Hokkaido Toyohira-ku Hiragishigojo 13 south Hiragishi Station of rental housing [Rental apartment ・ Apartment] information Property Details 北海道札幌市豊平区平岸五条13 南平岸駅の賃貸住宅[賃貸マンション・アパート]情報 物件詳細 | Transportation facilities 交通機関 | | Subway Namboku / South Hiragishi walk 9 minutes 地下鉄南北線/南平岸 歩9分
| Floor plan details 間取り詳細 | | Hiroshi 6 DK8.1 洋6 DK8.1 | Construction 構造 | | Wooden 木造 | Story 階建 | | 1st floor / 2-story 1階/2階建 | Built years 築年月 | | April 1997 1997年4月 | Nonlife insurance 損保 | | The main 要 | Move-in 入居 | | Immediately 即 | Trade aspect 取引態様 | | Mediation 仲介 | Property code 取り扱い店舗物件コード | | 18310273 18310273 | Remarks 備考 | | There nearby parking 近隣駐車場有り |
Building appearance建物外観 



Living and room居室・リビング 


Kitchenキッチン 
Bathバス 
Toiletトイレ 
Other room spaceその他部屋・スペース 
|