|
Railroad-station 沿線・駅 | | Hankyu Takarazuka Line / Kawanishinoseguchi 阪急宝塚線/川西能勢口 |
Address 住所 | | Hyogo Prefecture Kawanishi Kasumigaoka 1 兵庫県川西市霞ケ丘1 |
Walk 徒歩 | | 20 min 20分 |
Rent 賃料 | | 90,000 yen 9万円 |
Key money 礼金 | | 180,000 yen 18万円 |
Security deposit 敷金 | | ¥ 100,000 10万円 |
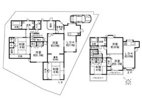
Floor plan 間取り | | 7LDK 7LDK |
Occupied area 専有面積 | | 206.97 sq m 206.97m2 |
Direction 向き | | South 南 |
Type 種別 | | Residential home 一戸建て |
Year Built 築年 | | Built 23 years 築23年 |
|
Kasumigaoka Detached
霞ケ丘戸建
|
|
Spacious floor plan for a 2 family house!
2世帯住宅用の広々とした間取り!
|
|
Day on the south-facing there in the corner lot, Ventilation good. Rich and quiet environment natural. Guests can also enjoy fireworks of Inagawa in the summer. Water around renovation completed.
角地に有り南向きで日当り、風通し良好。自然豊かで静かな環境。夏には猪名川の花火大会も楽しめます。水廻りリフォーム済。
|
|
Bus toilet by, Air conditioning, Gas stove correspondence, closet, Washbasin with shower, TV interphone, Indoor laundry location, Yang per good, System kitchen, Facing south, Add-fired function bathroom, Warm water washing toilet seat, Seperate, closet, Immediate Available, A quiet residential area, 3-neck over stove, Pets Negotiable, IH cooking heater, Parking one free, Otobasu, Dish washing dryer, Underfloor Storage, Study, 3 station more accessible, 3 along the line more accessible, The area occupied 30 square meters or more, LDK2 placesese-style room 8 tatami mats or more, All room 6 tatami mats or more, City gas, Guarantee company Available
バストイレ別、エアコン、ガスコンロ対応、クロゼット、シャワー付洗面台、TVインターホン、室内洗濯置、陽当り良好、システムキッチン、南向き、追焚機能浴室、温水洗浄便座、洗面所独立、押入、即入居可、閑静な住宅地、3口以上コンロ、ペット相談、IHクッキングヒーター、駐車場1台無料、オートバス、食器洗乾燥機、床下収納、書斎、3駅以上利用可、3沿線以上利用可、専有面積30坪以上、LDK2ヶ所、和室8畳以上、全居室6畳以上、都市ガス、保証会社利用可
|
Property name 物件名 | | Rental housing of Hyogo Prefecture, Kawanishi Kasumigaoka 1 Kawanishi-Noseguchi Station [Rental apartment ・ Apartment] information Property Details 兵庫県川西市霞ケ丘1 川西能勢口駅の賃貸住宅[賃貸マンション・アパート]情報 物件詳細 |
Transportation facilities 交通機関 | | Hankyu Takarazuka Line / Kawanishinoseguchi step 20 minutes Nose Electric Railway Myokensen / Ayumi Takiyama 18 minutes JR Fukuchiyama Line / Kawanishi Ayumi Ikeda 25 minutes 阪急宝塚線/川西能勢口 歩20分 能勢電鉄妙見線/滝山 歩18分 JR福知山線/川西池田 歩25分
|
Floor plan details 間取り詳細 | | Sum 8 sum 8 sum 6 Hiroshi 10 Hiroshi 8.5 Hiroshi 8 Hiroshi 6.5 LDK11LDK10 study 4 和8 和8 和6 洋10 洋8.5 洋8 洋6.5 LDK11LDK10 書斎 4 |
Construction 構造 | | Wooden 木造 |
Story 階建 | | 2-story 2階建 |
Built years 築年月 | | June 1991 1991年6月 |
Nonlife insurance 損保 | | 20,000 yen two years 2万円2年 |
Parking lot 駐車場 | | Free with 付無料 |
Move-in 入居 | | Immediately 即 |
Trade aspect 取引態様 | | Mediation 仲介 |
Conditions 条件 | | Pets Negotiable / Office Unavailable ペット相談/事務所利用不可 |
Property code 取り扱い店舗物件コード | | 2013120047 2013120047 |
Fixed-term lease 定期借家 | | Fixed term lease three years 定期借家 3年 |
Guarantor agency 保証人代行 | | Guarantee company accessible by the resident application content, Warranty company must join. First guarantee commission 50% of the rent, etc., 10,000 yen / Year 保証会社利用可 入居者申込内容により、保証会社の加入必要。初回保証委託料 賃料等の50%、10,000円/年 |
Other expenses ほか諸費用 | | Autonomy dues 自治会費 |
Remarks 備考 | | Nose Electric Railway Myokensen Takiyama Station 18 mins / 793m to business Super Nose opening Kitamise / 1141m to the Kansai Super Kawanishi shop / Fixed-term lease contract three years (transferred empty home) 能勢電鉄妙見線滝山駅徒歩18分/業務スーパー能勢口北店まで793m/関西スーパー川西店まで1141m/定期借家契約3年(転勤留守宅) |
Area information 周辺情報 | | Business Super Nose opening Kitamise (shopping center) to 793m Kansai Super Kawanishi store (shopping center) until 1141m Kopumini Hagiharadai (shopping center) to 956m Lawson (convenience store) up to 630m drugstore server (drugstore) to 1075m Kawanishi Tachikawa West Junior High School 業務スーパー能勢口北店(ショッピングセンター)まで793m関西スーパー川西店(ショッピングセンター)まで1141mコープミニ萩原台(ショッピングセンター)まで956mローソン(コンビニ)まで630mドラッグストアサーバ(ドラッグストア)まで1075m川西市立川西中学校(中学校)まで179m |