1992January
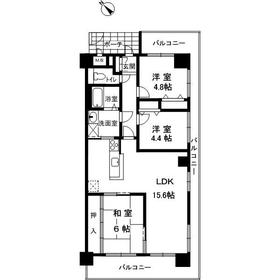
98,000 yen, 3LDK, 6th floor / 8-story, 70.2 sq m
Rentals » Kansai » Hyogo Prefecture » Kobe, Hyogo-ku
 
| Railroad-station 沿線・駅 | | JR Sanyo Line / Hyogo JR山陽本線/兵庫 | Address 住所 | | Hyogo Prefecture, Kobe, Hyogo-ku, Bahnhofstrasse 5 兵庫県神戸市兵庫区駅前通5 | Walk 徒歩 | | 10 minutes 10分 | Rent 賃料 | | 98,000 yen 9.8万円 | Key money 礼金 | | 300,000 yen 30万円 | Security deposit 敷金 | | ¥ 100,000 10万円 | Floor plan 間取り | | 3LDK 3LDK | Occupied area 専有面積 | | 70.2 sq m 70.2m2 | Type 種別 | | Mansion マンション | Year Built 築年 | | Built 23 years 築23年 | | Asahi Plaza Hyogo Bahnhofstrasse 朝日プラザ兵庫駅前通 |
| Front renovated The room is very clean 前面改装 室内大変綺麗です |
| Bright room in the corner room. Heisei has 25 October in front renovated. bathroom, System kitchen, I have had made all basin. Please have a look once. 角部屋で明るい室内。平成25年10月前面改装しております。浴室、システムキッチン、洗面全て新調しております。是非一度ご覧下さい。 |
| Bus toilet by, balcony, Gas stove correspondence, auto lock, Indoor laundry location, System kitchen, Elevator, Sale rent バストイレ別、バルコニー、ガスコンロ対応、オートロック、室内洗濯置、システムキッチン、エレベーター、分譲賃貸 |
Property name 物件名 | | Rental housing of Kobe, Hyogo Prefecture, Hyogo-ku, Bahnhofstrasse 5 Hyogo Station [Rental apartment ・ Apartment] information Property Details 兵庫県神戸市兵庫区駅前通5 兵庫駅の賃貸住宅[賃貸マンション・アパート]情報 物件詳細 | Transportation facilities 交通機関 | | JR Sanyo Line / Hyogo walk 10 minutes Subway Seishin ・ Yamanote Line / Nagata (Nagata Jinja ago) walk 8 minutes JR山陽本線/兵庫 歩10分 地下鉄西神・山手線/長田(長田神社前) 歩8分
| Construction 構造 | | Rebar Con 鉄筋コン | Story 階建 | | 6th floor / 8-story 6階/8階建 | Built years 築年月 | | January 1992 1992年1月 | Nonlife insurance 損保 | | The main 要 | Move-in 入居 | | Immediately 即 | Trade aspect 取引態様 | | Mediation 仲介 | Property code 取り扱い店舗物件コード | | 28105A001787 28105A001787 | Total units 総戸数 | | 61 units 61戸 | Remarks 備考 | | Patrol management / Refurbished (bathroom ・ System kitchen ・ Wash basin ・ Water heater had made) Indoor beautiful 巡回管理/改装済(浴室・システムキッチン・洗面台・給湯器新調)室内美麗 |
Building appearance建物外観 
Living and room居室・リビング 
 Wash
洗面
 Mansion Park
マンションの公園
Kitchenキッチン  Japanese style room
和室
Bathバス  Bathroom
浴室
Toiletトイレ  Toilet
トイレ
Other room spaceその他部屋・スペース  Living
リビング
 Living
リビング
 Kitchen
キッチン
Washroom洗面所  Corridor
廊下
Entranceエントランス  Entrance
エントランス
Other common areasその他共有部分  Western style room
洋室
Location
|