Rentals » Kansai » Hyogo Prefecture » Kobe Kita-ku
 
| Railroad-station 沿線・駅 | | Shintetsu Arima Line / Hanayama 神戸電鉄有馬線/花山 | Address 住所 | | Kobe City, Hyogo Prefecture, Kita-ku, Hanayamahigashi cho 兵庫県神戸市北区花山東町 | Walk 徒歩 | | 10 minutes 10分 | Rent 賃料 | | 67,600 yen 6.76万円 | Management expenses 管理費・共益費 | | 3610 yen 3610円 | Security deposit 敷金 | | 135,200 yen 13.52万円 | Floor plan 間取り | | 4LDK 4LDK | Occupied area 専有面積 | | 86 sq m 86m2 | Direction 向き | | South 南 | Type 種別 | | Mansion マンション | Year Built 築年 | | Built 29 years 築29年 | | Hanayamahigashi Complex 花山東団地 |
| Brokerage fees ・ Initial cost can deposit division will also be reduced substantially 仲介手数料無料・敷金分割が可能で初期費用もかなり抑えられます |
| Effortlessly examination guarantor also because the guests move unnecessary. 1st floor ・ It is the second floor of the maisonette. Kobe Kita-ku, ・ Sanda of rent areas the amount of information NO. [Pitattohausu Kitashinten] Please leave. 保証人も不要でご入居頂けますので審査も楽々。1階・2階のメゾネットタイプです。神戸市北区・三田市の賃貸は地域情報量NO.1の【ピタットハウス北神店】にお任せ下さい。 |
| Bus toilet by, balcony, Gas stove correspondence, closet, Flooring, Indoor laundry location, Yang per good, Facing south, Add-fired function bathroom, Elevator, Bicycle-parking space, CATV, Immediate Available, Key money unnecessary, A quiet residential area, With lighting, Guarantor unnecessary, Unnecessary brokerage fees, CATV Internet, Bike shelter, 24-hour emergency call system, Maisonette, Net private line, Deposit 2 months, Deposit required, Initial cost 150,000 yen or less, Room share consultation, South 2 rooms, Within a 10-minute walk station, Plane parking, South balcony, BS, Ventilation good バストイレ別、バルコニー、ガスコンロ対応、クロゼット、フローリング、室内洗濯置、陽当り良好、南向き、追焚機能浴室、エレベーター、駐輪場、CATV、即入居可、礼金不要、閑静な住宅地、照明付、保証人不要、仲介手数料不要、CATVインターネット、バイク置場、24時間緊急通報システム、メゾネット、ネット専用回線、敷金2ヶ月、保証金不要、初期費用15万円以下、ルームシェア相談、南面2室、駅徒歩10分以内、平面駐車場、南面バルコニー、BS、通風良好 |
Property name 物件名 | | Rental housing of Kobe, Hyogo Prefecture, Kita-ku, Hanayamahigashi cho Hanayama Station [Rental apartment ・ Apartment] information Property Details 兵庫県神戸市北区花山東町 花山駅の賃貸住宅[賃貸マンション・アパート]情報 物件詳細 | Transportation facilities 交通機関 | | Shintetsu Arima Line / Hanayama walk 10 minutes Hokushin kyūkō electric railway / Yagami walk 25 minutes Kobe Electric Railway Mita / Okaba 18-minute drive from the Railway Station (9.0km) 神戸電鉄有馬線/花山 歩10分 北神急行電鉄/谷上 歩25分 神戸電鉄三田線/岡場 駅より車18分(9.0km)
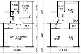
| Floor plan details 間取り詳細 | | Sum 6 sum 4.5 sum 3 Hiroshi 6 LDK12.0 和6 和4.5 和3 洋6 LDK12.0 | Construction 構造 | | Rebar Con 鉄筋コン | Story 階建 | | 3rd floor / 8-story 3階/8階建 | Built years 築年月 | | August 1985 1985年8月 | Nonlife insurance 損保 | | The main 要 | Parking lot 駐車場 | | On-site 7035 yen / Flat 置駐 敷地内7035円/平置駐 | Move-in 入居 | | Immediately 即 | Trade aspect 取引態様 | | Mediation 仲介 | Conditions 条件 | | Two people Available / Children Allowed / Room share consultation 二人入居可/子供可/ルームシェア相談 | Intermediate fee 仲介手数料 | | Unnecessary 不要 | Area information 周辺情報 | | Hanayama 1908m Yamabiko kindergarten to elementary school 584m City Oike Junior High School until the (elementary school) (junior high school) (kindergarten ・ Nursery school) until 125m medical corporation Association Mahoshi Board Mahoshi hospital (hospital) to 575m Kobe Hanayamahigashi stations (1714m up to the post office) to 230mJA Hyogo Rokko Yagami (Bank) 花山小学校(小学校)まで584m市立大池中学校(中学校)まで1908mやまびこ幼稚園(幼稚園・保育園)まで125m医療法人社団まほし会真星病院(病院)まで575m神戸花山東局(郵便局)まで230mJA兵庫六甲谷上(銀行)まで1714m |
Building appearance建物外観 
Junior high school中学校 
 Municipal Oike until junior high school (junior high school) 1908m
市立大池中学校(中学校)まで1908m
Primary school小学校  Hanayama up to elementary school (elementary school) 584m
花山小学校(小学校)まで584m
Kindergarten ・ Nursery幼稚園・保育園  Yamabiko kindergarten (kindergarten ・ 125m to the nursery)
やまびこ幼稚園(幼稚園・保育園)まで125m
Hospital病院  575m until the medical corporation Association Mahoshi Board Mahoshi Hospital (Hospital)
医療法人社団まほし会真星病院(病院)まで575m
Post office郵便局  230m to Kobe Hanayamahigashi stations (post office)
神戸花山東局(郵便局)まで230m
Bank銀行  JA 1714m until Hyogo Rokko Yagami (Bank)
JA兵庫六甲谷上(銀行)まで1714m
|