1972April
¥ 100,000, 3DK, 2-story, 74.36 sq m
Rentals » Kansai » Hyogo Prefecture » Nishinomiya
 
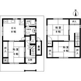
| Railroad-station 沿線・駅 | | JR Tokaido Line / Koshienguchi JR東海道本線/甲子園口 | Address 住所 | | Nishinomiya, Hyogo Prefecture Kumano-cho 兵庫県西宮市熊野町 | Walk 徒歩 | | 12 minutes 12分 | Rent 賃料 | | ¥ 100,000 10万円 | Key money 礼金 | | 300,000 yen 30万円 | Security deposit 敷金 | | 200,000 yen 20万円 | Floor plan 間取り | | 3DK 3DK | Occupied area 専有面積 | | 74.36 sq m 74.36m2 | Type 種別 | | Residential home 一戸建て | Year Built 築年 | | Built 43 years 築43年 | | Bus toilet by バストイレ別 |
Property name 物件名 | | Rental housing of Nishinomiya, Hyogo Prefecture Kumano-cho Koshienguchi [Rental apartment ・ Apartment] information Property Details 兵庫県西宮市熊野町 甲子園口駅の賃貸住宅[賃貸マンション・アパート]情報 物件詳細 | Transportation facilities 交通機関 | | JR Tokaido Line / Koshienguchi walk 12 minutes JR東海道本線/甲子園口 歩12分
| Construction 構造 | | Wooden 木造 | Story 階建 | | 2-story 2階建 | Built years 築年月 | | April 1972 1972年4月 | Nonlife insurance 損保 | | The main 要 | Move-in 入居 | | Immediately 即 | Trade aspect 取引態様 | | Mediation 仲介 | Property code 取り扱い店舗物件コード | | 28204A013081 28204A013081 | Remarks 備考 | | Outside Dogs accepted (the room is improper. ) 外犬可(室内は不可です。) | Area information 周辺情報 | | Hankyu Nishinomiya Gardens (shopping center) until 1225m Bandai Nishinomiya Kumano store (supermarket) up to 177m Nishinomiya Tatsukawara tree elementary school (elementary school) up to 626m medical corporation Yoshie Board Miyoshi hospital (hospital) to 857m Koshien Junior College Library (Library) up to 280m Takagi park 阪急西宮ガーデンズ(ショッピングセンター)まで1225m万代西宮熊野店(スーパー)まで177m西宮市立瓦木小学校(小学校)まで626m医療法人芳恵会三好病院(病院)まで857m甲子園短期大学図書館(図書館)まで280m高木公園(公園)まで1363m |
Building appearance建物外観 

 appearance
外観
 appearance
外観
Living and room居室・リビング  Stairs
階段
Kitchenキッチン  kitchen ・ Back door
キッチン・勝手口
Bathバス  Bathroom
浴室
Toiletトイレ  Toilet
トイレ
Receipt収納  Warehouse
倉庫
 closet
押入
Otherその他  Kitchen
キッチン
 Living
リビング
 Receipt
収納
Location
|