Rentals » Kansai » Hyogo Prefecture » Nishinomiya
 
| Railroad-station 沿線・駅 | | Hanshin Mukogawa Line / Mukogawadanchimae 阪神武庫川線/武庫川団地前 | Address 住所 | | Nishinomiya, Hyogo Prefecture Takasu-cho, 2 兵庫県西宮市高須町2 | Walk 徒歩 | | 9 minutes 9分 | Rent 賃料 | | 77,400 yen 7.74万円 | Management expenses 管理費・共益費 | | 4520 yen 4520円 | Depreciation and amortization 敷引・償却金 | | Actual cost 実費 | Security deposit 敷金 | | 154,800 yen 15.48万円 | Floor plan 間取り | | 3LDK 3LDK | Occupied area 専有面積 | | 90.43 sq m 90.43m2 | Direction 向き | | West 西 | Type 種別 | | Mansion マンション | Year Built 築年 | | Built 29 years 築29年 | | Mukogawa 31 Building 武庫川 31号棟 |
| UR rental housing key money ・ Renewal fee ・ Brokerage fees 0 yen! Guarantor unnecessary. UR賃貸住宅は礼金・更新料・仲介手数料0円!保証人不要。 |
| Than Hanshin Mukogawa Line "Mukogawadanchimae" station to "Umeda Station" 18 minutes, 26 minutes to "Sannomiya" station and convenient for transportation. Shopping facilities, Educational institutions, Medical facilities, Large park, The civic center and the like in the housing complex. Of the elderly life support counseling services are also those estates unique. 阪神武庫川線「武庫川団地前」駅より「梅田駅」へ18分、「三宮」駅へ26分と交通至便。買物施設、教育施設、医療施設、大型公園、市民センター等が団地内に。高齢者の方の生活支援相談サービスも当団地ならでは。 |
| Bus toilet by, balcony, Yang per good, Add-fired function bathroom, Elevator, Seperate, Bathroom vanity, Bicycle-parking space, closet, CATV, Key money unnecessary, Guarantor unnecessary, Unnecessary brokerage fees, CATV Internet, Maisonette, Flat to the station, Deposit required, Flat terrain, Storeroom, Double-sided balcony, Elevator 2 groups, Fireproof structure, Earthquake-resistant structure, Starting station, 2 Station Available, In a large town, 24 hours garbage disposal Allowed, On-site trash Storage, Plane parking, Self-propelled parking, Day shift management, LDK12 tatami mats or more, BS, Wallpaper Zhang Kawasumi バストイレ別、バルコニー、陽当り良好、追焚機能浴室、エレベーター、洗面所独立、洗面化粧台、駐輪場、押入、CATV、礼金不要、保証人不要、仲介手数料不要、CATVインターネット、メゾネット、駅まで平坦、保証金不要、平坦地、納戸、両面バルコニー、エレベーター2基、耐火構造、耐震構造、始発駅、2駅利用可、大型タウン内、24時間ゴミ出し可、敷地内ごみ置き場、平面駐車場、自走式駐車場、日勤管理、LDK12畳以上、BS、壁紙張替済 |
Property name 物件名 | | Rental housing of Nishinomiya, Hyogo Prefecture Takasu-cho, 2 Mukogawadanchimae Station [Rental apartment ・ Apartment] information Property Details 兵庫県西宮市高須町2 武庫川団地前駅の賃貸住宅[賃貸マンション・アパート]情報 物件詳細 | Transportation facilities 交通機関 | | Hanshin Mukogawa Line / Mukogawadanchimae step 9 minutes Hanshin / Koshien bus 12 minutes (bus stop) Mukogawa estate center walk 4 minutes 阪神武庫川線/武庫川団地前 歩9分 阪神本線/甲子園 バス12分 (バス停)武庫川団地中央 歩4分
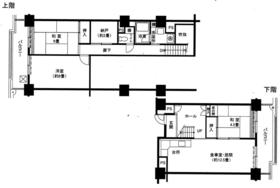
| Floor plan details 間取り詳細 | | Sum 6 sum 4.5 Hiroshi 8 LDK12.5 storeroom 2 和6 和4.5 洋8 LDK12.5 納戸 2 | Construction 構造 | | Steel rebar 鉄骨鉄筋 | Story 階建 | | 8th floor / 15-storey 8階/15階建 | Built years 築年月 | | December 1985 1985年12月 | Parking lot 駐車場 | | Site 12096 yen 敷地内12096円 | Move-in 入居 | | Consultation 相談 | Trade aspect 取引態様 | | Lender 貸主 | Conditions 条件 | | Office Unavailable 事務所利用不可 | Total units 総戸数 | | 448 units 448戸 | Balcony area バルコニー面積 | | 17.49 sq m 17.49m2 | Intermediate fee 仲介手数料 | | Unnecessary 不要 | Remarks 備考 | | Naruo Branch Takasu 400m to Branch / 480m until Takasuhigashi park / Commuting management / Photo is using another one dwelling unit of the same type. 鳴尾支所高須分室まで400m/高須東公園まで480m/通勤管理/写真は同型式の別住戸のものを使用しています。 | Area information 周辺情報 | | Mukogawadanchimae Station (other) up to 700m Mercado Mukogawa (shopping center) to 620m City Takasu junior high school up to 450m Maxvalu Nishinomiya Ueda store (supermarket) up to 700m Naruo Branch Takasu Branch (office) to 400m Municipal Takasu Nishi Elementary School (elementary school) 武庫川団地前駅(その他)まで700mメルカードむこがわ(ショッピングセンター)まで450mマックスバリュ西宮上田店(スーパー)まで700m鳴尾支所高須分室(役所)まで400m市立高須西小学校(小学校)まで620m市立高須中学校(中学校)まで40m |
Building appearance建物外観 
Living and room居室・リビング 
 Spacious LDK tones and white (lower floor)
ホワイトを基調とした広々LDK(下階)
 Of calm atmosphere 4.5 mat Japanese-style room (downstairs)
落ち着いた雰囲気の4.5畳和室(下階)
 Spacious 8 tatami Western-style (upstairs)
広々とした8畳洋室(上階)
 Bright 6-mat Japanese-style room (upstairs)
明るい6畳和室(上階)
Kitchenキッチン  Easy-to-use wide kitchen
使い易いワイドなキッチン
Bathバス  Warm bath (upstairs)
温かみのある浴室(上階)
Toiletトイレ  Toilet space provided with a counter (upstairs)
カウンターを設けたトイレスペース(上階)
Receipt収納  2-mat-sized closet to help in the housing (upper floor)
収納に役立つ2畳大の納戸(上階)
Washroom洗面所  Stylish wide vanity and Laundry Area (upstairs)
お洒落なワイド洗面化粧台と洗濯機置場(上階)
Balconyバルコニー  Easy-to-use balcony (downstairs)
使い易いバルコニー(下階)
Shopping centreショッピングセンター  450m until Mercado Mukogawa (shopping center)
メルカードむこがわ(ショッピングセンター)まで450m
Supermarketスーパー  700m until Maxvalu Nishinomiya Ueda store (Super)
マックスバリュ西宮上田店(スーパー)まで700m
Junior high school中学校  Municipal Takasu until junior high school (junior high school) 40m
市立高須中学校(中学校)まで40m
Primary school小学校  Municipal Takasu Nishi Elementary School until the (elementary school) 620m
市立高須西小学校(小学校)まで620m
Government office役所  Naruo Branch Takasu 400m to compartment (government office)
鳴尾支所高須分室(役所)まで400m
Otherその他  Living image plenty of Staircase (See the lower floor from the upper floor)
住イメージたっぷりの階段室(上階から下階を見る)
 700m until Mukogawadanchimae Station (Other)
武庫川団地前駅(その他)まで700m
Location
|