Rentals » Kansai » Hyogo Prefecture » Toyooka


Kenzuhaitsu
Deposit ・ Key money zero zero! bus ・ Restroom ☆ Storage lot
Deposit key money zero! ! Housed plenty
Bus toilet by, Gas stove correspondence, Corner dwelling unit, closet, Key money unnecessary, Deposit required, With lighting, Initial cost 200,000 yen or less, Our managed propertiesese-style room, Following Japanese-style room, propane gas, shower room
Railroad-station
JR San-in Main Line / Toyooka
Address
Toyooka, Hyogo Prefecture Shozakai
Walk
35 minutes
Rent
41,000 yen
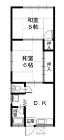
Floor plan
2DK
Occupied area
43 sq m
Direction
West
Type
Apartment
Year Built
Built 25 years
Property name
Rental housing of Toyooka, Hyogo Prefecture Shozakai Toyooka Station [Rental apartment ・ Apartment] information Property Details
Transportation facilities
JR San-in Main Line / Ayumi Toyooka 35 minutes
Floor plan details
Sum 6 sum 6 DK5.0
Construction
Wooden
Story
Second floor / 2-story
Built years
December 1989
Nonlife insurance
18,000 yen two years
Parking lot
On-site 2000 yen
Move-in
Consultation
Trade aspect
Mediation
Conditions
Office Unavailable
Property code
69-C
Total units
4 units
Intermediate fee
43,050 yen
Guarantor agency
Guarantee company use 必 monthly requires 1% of the fees of the monthly total. Update guarantee fees: monthly total of 25 (every two years)
In addition
Total 42,000 yen (Breakdown: First guarantee charge 21,950 yen input ku fee 05,000 yen Key exchange fee 15,000)
Remarks
Until Brutus 1194m / 1328m to Bake House
Area information
Toyooka Municipal Sanjiang 1245m public Toyooka high school to elementary school (elementary school) up to 929m Toyooka south junior high school (junior high) (high school ・ NCT) until 1731m Mie nursery school (kindergarten ・ Nursery school) until 1102m to public Toyooka hospital (hospital) 4952m Mitsue Toyooka post office until the (post office) 119m


Building appearance

Building appearance

Living and room

Living and room
Living and room
Living and room
Living and room

Kitchen

Kitchen
Kitchen

Bath

Bath

Toilet

Toilet

Receipt

Receipt
Receipt
Receipt

Washroom

Washroom
Washroom

High school ・ College

high school ・ College. Public Toyooka High School (High School ・ NCT) to 1731m
Public Toyooka High School (High School ・ NCT) to 1731m

Junior high school

Junior high school. Toyooka 1245m south to junior high school (junior high school)
Toyooka 1245m south to junior high school (junior high school)

Kindergarten ・ Nursery

kindergarten ・ Nursery. Mie nursery school (kindergarten ・ 1102m to the nursery)
Mie nursery school (kindergarten ・ 1102m to the nursery)

Hospital

Hospital. Public Toyooka to the hospital (hospital) 4952m
Public Toyooka to the hospital (hospital) 4952m

Post office

post office. Mitsue Toyooka 119m to the post office (post office)
Mitsue Toyooka 119m to the post office (post office)



Location