1999March
40,000 yen, 1K, 1st floor / 2-story, 24.15 sq m
Rentals » Kansai » Ibaraki Prefecture » Hitachi City
 
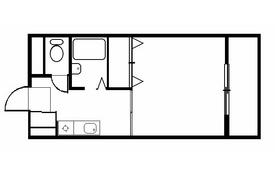
| Railroad-station 沿線・駅 | | JR Joban Line / Hitachi JR常磐線/日立 | Address 住所 | | Hitachi City, Ibaraki Prefecture Nishinarusawa cho 茨城県日立市西成沢町1 | Walk 徒歩 | | 36 minutes 36分 | Rent 賃料 | | 40,000 yen 4万円 | Key money 礼金 | | 40,000 yen 4万円 | Security deposit 敷金 | | 40,000 yen 4万円 | Floor plan 間取り | | 1K 1K | Occupied area 専有面積 | | 24.15 sq m 24.15m2 | Direction 向き | | South 南 | Type 種別 | | Apartment アパート | Year Built 築年 | | Built 15 years 築15年 | | Kopokinmasu B コーポキンマスB |
| Sunny! Shopping convenient good location 日当たり良好!買い物便利な好立地 |
| Air conditioning ・ refrigerator ・ Microwave, Bus is a toilet another property. エアコン・冷蔵庫・電子レンジ付、バストイレ別の物件です。 |
| Bus toilet by, balcony, Air conditioning, closet, Flooring, Indoor laundry location, Yang per good, Shoe box, System kitchen, Facing south, Optical fiber, With lighting, refrigerator, microwave, propane gas, BS バストイレ別、バルコニー、エアコン、クロゼット、フローリング、室内洗濯置、陽当り良好、シューズボックス、システムキッチン、南向き、光ファイバー、照明付、冷蔵庫、電子レンジ、プロパンガス、BS |
Property name 物件名 | | Rental housing of Hitachi City, Ibaraki Prefecture Nishinarusawa cho Hitachi Station [Rental apartment ・ Apartment] information Property Details 茨城県日立市西成沢町1 日立駅の賃貸住宅[賃貸マンション・アパート]情報 物件詳細 | Transportation facilities 交通機関 | | JR Joban Line / Hitachi walk 36 minutes JR Joban Line / Hitachi Taga step 49 minutes JR Joban Line / Ogitsu car 11 minutes from the train station (7.6km) JR常磐線/日立 歩36分 JR常磐線/常陸多賀 歩49分 JR常磐線/小木津 駅より車11分(7.6km)
| Floor plan details 間取り詳細 | | Hiroshi 8 洋8 | Construction 構造 | | Steel frame 鉄骨 | Story 階建 | | 1st floor / 2-story 1階/2階建 | Built years 築年月 | | March 1999 1999年3月 | Nonlife insurance 損保 | | The main 要 | Parking lot 駐車場 | | On-site 2000 yen 敷地内2000円 | Move-in 入居 | | '14 Years late March '14年3月下旬 | Trade aspect 取引態様 | | Mediation 仲介 | Intermediate fee 仲介手数料 | | 1.05 months 1.05ヶ月 | Remarks 備考 | | National University Corporation Ibaraki until the Faculty of Engineering 1837m 国立大学法人茨城大学工学部まで1837m | Area information 周辺情報 | | York-Benimaru Hitachi Ose store (supermarket) up to 524m Seven-Eleven Hitachi citizen Undokoenmae store (convenience store) 1162m San drag Hitachi Ose store (drugstore) to 460m National University Corporation Ibaraki University Faculty of Engineering (University of ・ Junior college) until 1837m Hitachi Usagitaira post office (337m up to the post office) to 288m Joyo Bank rabbit flat Branch (Bank) ヨークベニマル日立会瀬店(スーパー)まで524mセブンイレブン日立市民運動公園前店(コンビニ)まで1162mサンドラッグ日立会瀬店(ドラッグストア)まで460m国立大学法人茨城大学工学部(大学・短大)まで1837m日立兎平郵便局(郵便局)まで288m常陽銀行兎平支店(銀行)まで337m |
Building appearance建物外観 
Living and room居室・リビング 

Kitchenキッチン 
Bathバス 
Toiletトイレ 
Receipt収納 
Location
|