Rentals » Kansai » Ibaraki Prefecture » Hitachi City
 
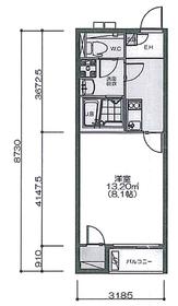
| Railroad-station 沿線・駅 | | JR Joban Line / Ogitsu JR常磐線/小木津 | Address 住所 | | Hitachi City, Ibaraki Prefecture Ogitsu cho 2 茨城県日立市小木津町2 | Walk 徒歩 | | 14 minutes 14分 | Rent 賃料 | | 42,000 yen 4.2万円 | Management expenses 管理費・共益費 | | 2000 yen 2000円 | Floor plan 間取り | | 1K 1K | Occupied area 専有面積 | | 25.89 sq m 25.89m2 | Direction 向き | | East 東 | Type 種別 | | Apartment アパート | Year Built 築年 | | New construction 新築 | | Comfort Annex With consumer electronics コンフォートアネックス 家電付き |
| New construction appeared to Ogitsu cho. Start a nice new life in with consumer electronics 小木津町に新築登場。家電付で素敵な新生活をスタート |
| Bus toilet by, balcony, Air conditioning, Flooring, Bathroom Dryer, Indoor laundry location, Shoe box, Warm water washing toilet seat, Seperate, Bathroom vanity, Two-burner stove, Bicycle-parking space, Optical fiber, top floor, Deposit required, IH cooking heater, With lighting, Electric stove, Walk-in closet, Two tenants consultation, All living room flooring, Net use fee unnecessary, With consumer electronics, Furnished, On-site trash Storage, High speed Internet correspondence バストイレ別、バルコニー、エアコン、フローリング、浴室乾燥機、室内洗濯置、シューズボックス、温水洗浄便座、洗面所独立、洗面化粧台、2口コンロ、駐輪場、光ファイバー、最上階、敷金不要、IHクッキングヒーター、照明付、電気コンロ、ウォークインクロゼット、二人入居相談、全居室フローリング、ネット使用料不要、家電付、家具付、敷地内ごみ置き場、高速ネット対応 |
Property name 物件名 | | Rental housing of Hitachi City, Ibaraki Prefecture Ogitsu cho 2 Ogitsu Station [Rental apartment ・ Apartment] information Property Details 茨城県日立市小木津町2 小木津駅の賃貸住宅[賃貸マンション・アパート]情報 物件詳細 | Transportation facilities 交通機関 | | JR Joban Line / Ogitsu walk 14 minutes JR Joban Line / Ayumi Juo 52 minutes JR Joban Line / Hitachi walk 86 minutes JR常磐線/小木津 歩14分 JR常磐線/十王 歩52分 JR常磐線/日立 歩86分
| Floor plan details 間取り詳細 | | Hiroshi 8.1 洋8.1 | Construction 構造 | | Wooden 木造 | Story 階建 | | Second floor / 2-story 2階/2階建 | Built years 築年月 | | New construction March 2014 新築 2014年3月 | Nonlife insurance 損保 | | 16,700 yen two years 1.67万円2年 | Parking lot 駐車場 | | On-site 3,000 yen 敷地内3000円 | Move-in 入居 | | '14 Years late March '14年3月下旬 | Trade aspect 取引態様 | | Mediation 仲介 | Intermediate fee 仲介手数料 | | 1.05 months 1.05ヶ月 | Remarks 備考 | | Patrol management / Photos in the web is ancillary facilities by the same specifications as the type is present state priority 巡回管理/掲載中の写真は同仕様タイプにより付帯設備は現況優先になります | Area information 周辺情報 | | Tajiri shopping center (shopping center) until 2633m save Ogitsu store (supermarket) to 1146m Seven-Eleven Hitachi Hidaka store (convenience store) up to 891m drag Terashima Hitachi Tajiri store (drugstore) to 2779m Medical Corporation Hisashi 慈会 Nagai Hitachi Forest Hospital ( 田尻ショッピングセンター(ショッピングセンター)まで2633mセイブ小木津店(スーパー)まで1146mセブンイレブン日立日高店(コンビニ)まで891mドラッグてらしま日立田尻店(ドラッグストア)まで2779m医療法人永慈会永井ひたちの森病院(病院)まで828m日立市折笠スポーツ広場(公園)まで2367m |
Living and room居室・リビング 
Building appearance建物外観 
 Was exterior wall siding completed.
外壁サイディング完成しました。
Living and room居室・リビング  ) Sweep shutter windows that comes with.
)掃出し窓にシャッターが付いております。
Kitchenキッチン  Just the right size to living alone
一人暮らしにちょうどいい大きさ
 Front IH, Back electromagnetic cooker A total of 2-neck
手前IH、奥電磁調理器 計2口
Bathバス  With bathroom dryer
浴室乾燥機付き
Toiletトイレ  Warm water washing toilet seat
温水洗浄便座
Receipt収納  Kurezetto is spread.
クレーゼット広めです。
Washroom洗面所  Shampoo dresser with separate wash basin
シャンプードレッサー付き独立洗面台
Securityセキュリティ  Monitor with a color intercom
モニター付きカラーインターフォン
Other Equipmentその他設備  Doorpost, Indoor umbrella stand
ドアポスト、室内傘立て
 Indoor clothes possible
室内物干し可能
Entrance玄関  A spacious entrance Sensor with lighting
広々とした玄関 センサー付き照明
Location
|