Rentals » Koshinetsu » Ishikawa Prefecture » Nonoichi
 
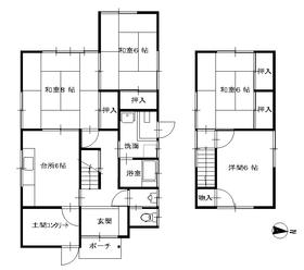
| Railroad-station 沿線・駅 | | Hokuriku Railroad / Sugawara Ishikawa Prefecture nonoichi Sugawara-cho 北陸鉄道/菅原石川県野々市市菅原町 | Walk 徒歩 | | 5 minutes 5分 | Rent 賃料 | | 76,000 yen 7.6万円 | Key money 礼金 | | 76,000 yen 7.6万円 | Security deposit 敷金 | | 152,000 yen 15.2万円 | Floor plan 間取り | | 4DK 4DK | Occupied area 専有面積 | | 85 sq m 85m2 | Direction 向き | | South 南 | Type 種別 | | Residential home 一戸建て | Year Built 築年 | | Built 31 years 築31年 | | Sugawara-cho N houses for rent 菅原町N貸家 |
| Super walk about 5 minutes location of! スーパー徒歩約5分の立地! |
| Bus toilet by, Gas stove correspondence, Indoor laundry location, Yang per good, Facing south, Corner dwelling unit, Warm water washing toilet seat, Dressing room, closet, Immediate Available, A quiet residential area, Parking two Allowed, Deposit 2 months, The window in the bathroom, No upper floorese-style room, Following Japanese-style room, Back door, Key money one month, Ventilation good バストイレ別、ガスコンロ対応、室内洗濯置、陽当り良好、南向き、角住戸、温水洗浄便座、脱衣所、押入、即入居可、閑静な住宅地、駐車2台可、敷金2ヶ月、浴室に窓、上階無し、和室、続き和室、勝手口、礼金1ヶ月、通風良好 |
Property name 物件名 | | Ishikawa Prefecture nonoichi Sugawara-cho, Sugawara of rental housing [Rental apartment ・ Apartment] information Property Details 石川県野々市市菅原町 菅原の賃貸住宅[賃貸マンション・アパート]情報 物件詳細 | Transportation facilities 交通機関 | | Hokuriku Railroad / Ayumi Sugawara 5 minutes Hokuriku Railroad Ishikawa Line / Nonoichikodaimae step 13 minutes 北陸鉄道/菅原 歩5分北陸鉄道石川線/野々市工大前 歩13分
| Floor plan details 間取り詳細 | | Sum 8 sum 6 sum 6 Hiroshi 6 DK6 和8 和6 和6 洋6 DK6 | Construction 構造 | | Wooden 木造 | Story 階建 | | 2-story 2階建 | Built years 築年月 | | October 1983 1983年10月 | Nonlife insurance 損保 | | 15,000 yen two years 1.5万円2年 | Parking lot 駐車場 | | Free with / Chu two Allowed 付無料/駐2台可 | Move-in 入居 | | Immediately 即 | Trade aspect 取引態様 | | Mediation 仲介 | Conditions 条件 | | Two people Available / Children Allowed 二人入居可/子供可 | Property code 取り扱い店舗物件コード | | HD120 HD120 | Intermediate fee 仲介手数料 | | 1.05 months 1.05ヶ月 | Guarantor agency 保証人代行 | | Recruit Forento in Sure Available guarantee fees: one month, such as rent (guaranteed minimum fee of 20,000 yen) continued guarantee fee of 10,000 yen / Year リクルートフォレントインシュア利用可 保証料:賃料等の1ヶ月分(最低保証料2万円)継続保証料1万円/年 | Remarks 備考 | | 257m to A Coop Sumiyoshi shop Aコープ住吉店まで257m | Area information 周辺情報 | | A Coop Sumiyoshi store (supermarket) to 257malbis Nonoichi center store (supermarket) up to 458m Circle K Nonoichi Sugawara store (convenience store) up to 272m nonoichi stand Nonoichi junior high school (junior high school) until 1041m Nonoichi City Sugawara Elementary School (elementary school) up to 365m Nonoichi City Hall (government office) Aコープ住吉店(スーパー)まで257malbis野々市中央店(スーパー)まで458mサークルK野々市菅原店(コンビニ)まで272m野々市市立野々市中学校(中学校)まで1041m野々市市立菅原小学校(小学校)まで365m野々市市役所(役所)まで1324m |
Building appearance建物外観 
Living and room居室・リビング 


Kitchenキッチン 
Bathバス 
Toiletトイレ 
Receipt収納 
Other room spaceその他部屋・スペース  2 Kaiyoshitsu
2階洋室
 Second floor Japanese-style room
2階和室
 Sunroom
サンルーム
 Dirt floor
土間
Washroom洗面所 
Entrance玄関 
Supermarketスーパー  257m to A Coop Sumiyoshi store (Super)
Aコープ住吉店(スーパー)まで257m
 albis Nonoichi center store up to (super) 458m
albis野々市中央店(スーパー)まで458m
Convenience storeコンビニ  272m to Circle K Nonoichi Sugawara store (convenience store)
サークルK野々市菅原店(コンビニ)まで272m
Junior high school中学校  Nonoichi stand Nonoichi junior high school (junior high school) up to 1041m
野々市市立野々市中学校(中学校)まで1041m
Primary school小学校  Nonoichi to Municipal Sugawara Elementary School (Elementary School) 365m
野々市市立菅原小学校(小学校)まで365m
Government office役所  Nonoichi 1324m up to City Hall (government office)
野々市市役所(役所)まで1324m
Location
|