1993March
29,000 yen, 1DK, 1st floor / 2-story, 29.81 sq m
Rentals » Shikoku » Kagawa Prefecture » Takamatsu
 
| Railroad-station 沿線・駅 | | Takamatsu Kotohira Electric Railway Nagaosen / Nishimaeda 高松琴平電鉄長尾線/西前田 | Address 住所 | | Takamatsu, Kagawa Prefecture Maedanishi cho 香川県高松市前田西町 | Walk 徒歩 | | 17 minutes 17分 | Rent 賃料 | | 29,000 yen 2.9万円 | Management expenses 管理費・共益費 | | 2000 yen 2000円 | Floor plan 間取り | | 1DK 1DK | Occupied area 専有面積 | | 29.81 sq m 29.81m2 | Type 種別 | | Apartment アパート | Year Built 築年 | | Built 22 years 築22年 | | A pet-friendly properties of 1DK. 1DKのペット可物件です。 |
| Come the room to be able to live a happy pet! ! 嬉しいペットと暮らせるお部屋を是非!! |
| Bus toilet by, Air conditioning, Warm water washing toilet seat, Bicycle-parking space, Immediate Available, With lighting, Free Rent バストイレ別、エアコン、温水洗浄便座、駐輪場、即入居可、照明付、フリーレント |
Property name 物件名 | | Rental housing of Takamatsu, Kagawa Prefecture Maedanishi cho Nishimaeda Station [Rental apartment ・ Apartment] information Property Details 香川県高松市前田西町 西前田駅の賃貸住宅[賃貸マンション・アパート]情報 物件詳細 | Transportation facilities 交通機関 | | Takamatsu Kotohira Electric Railway Nagaosen / Nishimaeda walk 17 minutes Takamatsu Kotohira Electric Railway Nagaosen / Ayumi Mizuta 21 minutes 高松琴平電鉄長尾線/西前田 歩17分 高松琴平電鉄長尾線/水田 歩21分
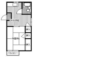
| Floor plan details 間取り詳細 | | Sum 6 DK7.5 和6 DK7.5 | Construction 構造 | | Steel frame 鉄骨 | Story 階建 | | 1st floor / 2-story 1階/2階建 | Built years 築年月 | | March 1993 1993年3月 | Nonlife insurance 損保 | | 20,000 yen two years 2万円2年 | Parking lot 駐車場 | | On-site 2000 yen 敷地内2000円 | Move-in 入居 | | Immediately 即 | Trade aspect 取引態様 | | Mediation 仲介 | Conditions 条件 | | Free rent for one month to be checked フリーレント1ヶ月 要確認 | Intermediate fee 仲介手数料 | | 1.05 months 1.05ヶ月 | Guarantor agency 保証人代行 | | Zenhoren use 必 80 percent of the total rent 全保連利用必 総賃料の80% | Remarks 備考 | | (Dog) deposit 3 months, Shikibiki three months (Cat) deposit 3 months, Shikibiki 3 months (犬)敷金3ヶ月、敷引き3ヶ月 (猫)敷金3ヶ月、敷引き3ヶ | Area information 周辺情報 | | Shopping center Marunaka paddy store 1271m until the (shopping center) until 1081m Marunaka paddy store (supermarket) to 1092m MINISTOP Kume Ikemise (convenience store) up to 1154m Matsumotokiyoshi drugstore Frespo Takamatsu store (drugstore) to 1725m Takamatsu Maeda post office (post office) ショッピングセンターマルナカ水田店(ショッピングセンター)まで1081mマルナカ水田店(スーパー)まで1092mミニストップ久米池店(コンビニ)まで1154mマツモトキヨシドラッグストアフレスポ高松店(ドラッグストア)まで1725m高松前田郵便局(郵便局)まで1271m香川銀行水田支店(銀行)まで1159m |
Building appearance建物外観 
Kitchenキッチン 

Location
|