1989March
25,000 yen, One-room, 1st floor / Three-story, 27 sq m
Rentals » Shikoku » Kagawa Prefecture » Takamatsu
 
| Railroad-station 沿線・駅 | | JR Yosan Line / Kozai JR予讃線/香西 | Address 住所 | | Takamatsu, Kagawa Prefecture Gohigashi cho 香川県高松市郷東町 | Walk 徒歩 | | 8 minutes 8分 | Rent 賃料 | | 25,000 yen 2.5万円 | Management expenses 管理費・共益費 | | 3000 yen 3000円 | Security deposit 敷金 | | 50,000 yen 5万円 | Floor plan 間取り | | One-room ワンルーム | Occupied area 専有面積 | | 27 sq m 27m2 | Type 種別 | | Mansion マンション | Year Built 築年 | | Built 26 years 築26年 | | Paz Shoei パズ昌栄 |
| Takamatsu western studio rooms! ! 高松市西部のワンルームのお部屋!! |
| Excellent RC structures in sound insulation! ! Walk up to Kōzai Station about 10 minutes! ! 遮音性に優れたRC造!!香西駅まで徒歩約10分!! |
| balcony, Air conditioning, CATV バルコニー、エアコン、CATV |
Property name 物件名 | | Rental housing of Takamatsu, Kagawa Prefecture Gohigashi-cho, Kasai Station [Rental apartment ・ Apartment] information Property Details 香川県高松市郷東町 香西駅の賃貸住宅[賃貸マンション・アパート]情報 物件詳細 | Transportation facilities 交通機関 | | JR Yosan Line / Ayumi Kozai 8 minutes JR予讃線/香西 歩8分
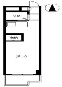
| Floor plan details 間取り詳細 | | Hiroshi 10 洋10 | Construction 構造 | | Rebar Con 鉄筋コン | Story 階建 | | 1st floor / Three-story 1階/3階建 | Built years 築年月 | | March 1989 1989年3月 | Nonlife insurance 損保 | | 10,000 yen per year 1万円1年 | Parking lot 駐車場 | | On-site 4,000 yen 敷地内4000円 | Move-in 入居 | | Consultation 相談 | Trade aspect 取引態様 | | Mediation 仲介 | Intermediate fee 仲介手数料 | | 1.05 months 1.05ヶ月 | Guarantor agency 保証人代行 | | Guarantee company use 必 80 percent of the total rent 保証会社利用必 総賃料の80% | Area information 周辺情報 | | Marunaka Gohigashi shop 583m until the (super) up to 207m Lawson Gohigashi shrine before store (convenience store) up to 534m roast five en Takamatsu Miracle shop (restaurant) マルナカ郷東店(スーパー)まで207mローソン郷東神社前店(コンビニ)まで534m焼肉五苑高松ミラクル店(飲食店)まで583m |
Building appearance建物外観 
Living and room居室・リビング 
 Compact studio
コンパクトなワンルーム
Location
|