2002January
41,000 yen, 1K, 1st floor / 2-story, 23.18 sq m
Rentals » Shikoku » Kagawa Prefecture » Takamatsu
 
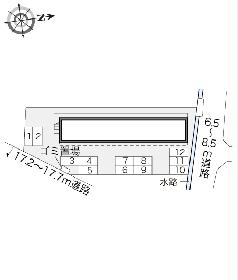
| Railroad-station 沿線・駅 | | JR Yosan Line / Kinashi JR予讃線/鬼無 | Address 住所 | | Takamatsu, Kagawa Prefecture Kinashichofujii 香川県高松市鬼無町藤井 | Walk 徒歩 | | 15 minutes 15分 | Rent 賃料 | | 41,000 yen 4.1万円 | Management expenses 管理費・共益費 | | 3000 yen 3000円 | Key money 礼金 | | 41,000 yen 4.1万円 | Floor plan 間取り | | 1K 1K | Occupied area 専有面積 | | 23.18 sq m 23.18m2 | Type 種別 | | Apartment アパート | Year Built 築年 | | Built 13 years 築13年 | | Leo Palace Eclair Kinashi レオパレスエクレール鬼無 |
| Unnecessary brokerage fees 仲介手数料不要 |
| Basic cleaning fee (at the time of leaving) 1K27540 yen (furniture ・ Consumer electronics with room 3240 yen added) ※ tax included 基本清掃料(退室時)1K27540円(家具・家電付の部屋は3240円追加)※税込 |
| Bus toilet by, Air conditioning, Indoor laundry location, Optical fiber, Immediate Available, Electric stove, Unnecessary brokerage fees, With consumer electronics, Furnished バストイレ別、エアコン、室内洗濯置、光ファイバー、即入居可、電気コンロ、仲介手数料不要、家電付、家具付 |
Property name 物件名 | | Rental housing of Takamatsu, Kagawa Prefecture Kinashichofujii Kinashi Station [Rental apartment ・ Apartment] information Property Details 香川県高松市鬼無町藤井 鬼無駅の賃貸住宅[賃貸マンション・アパート]情報 物件詳細 | Transportation facilities 交通機関 | | JR Yosan Line / Kinashi walk 15 minutes JR Yosan Line / Ayumi Kozai 26 minutes JR Kōtoku Line / Showacho step 50 minutes JR予讃線/鬼無 歩15分 JR予讃線/香西 歩26分 JR高徳線/昭和町 歩50分
| Construction 構造 | | Light-gauge steel 軽量鉄骨 | Story 階建 | | 1st floor / 2-story 1階/2階建 | Built years 築年月 | | January 2002 2002年1月 | Nonlife insurance 損保 | | The main 要 | Parking lot 駐車場 | | On-site 4752 yen 敷地内4752円 | Move-in 入居 | | Immediately 即 | Trade aspect 取引態様 | | Lender 貸主 | Property code 取り扱い店舗物件コード | | 16621-107 16621-107 | Total units 総戸数 | | 20 units 20戸 | Intermediate fee 仲介手数料 | | Unnecessary 不要 | Guarantor agency 保証人代行 | | Guarantee company use 必 guarantee fee: 100 by 53,390 yen (contract ~ Fluctuations have at 120%) ※ The amounts in the case of 120% 保証会社利用必 保証料:53390円(契約内容により100 ~ 120%で変動有)※記載金額は120%の場合 | In addition ほか初期費用 | | Total 27,900 yen (Breakdown: The key exchange costs 10260 yen, Antibacterial construction (Optional) ¥ 17712 (tax included)) 合計2.79万円(内訳:鍵交換費10260円、抗菌施工(任意)17712円(税込)) | Other expenses ほか諸費用 | | Environmental maintenance costs 540 yen / Month, Renewal fees 16200 yen / 2 years (tax included) 環境維持費540円/月、更新手数料16200円/2年(税込) |
Building appearance建物外観 
Living and room居室・リビング 


Kitchenキッチン 

Bathバス 
Toiletトイレ 
Otherその他 



Location
|