1989March
60,000 yen, 3DK, 5th floor / 6-story, 58.6 sq m
Rentals » Shikoku » Kagawa Prefecture » Takamatsu
 
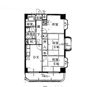
| Railroad-station 沿線・駅 | | Takamatsu Kotohira Electric Railway Kotohirasen / Ritsurin Park 高松琴平電鉄琴平線/栗林公園 | Address 住所 | | Takamatsu, Kagawa Prefecture Kuribayashi cho 2 香川県高松市栗林町2 | Walk 徒歩 | | 3 minutes 3分 | Rent 賃料 | | 60,000 yen 6万円 | Management expenses 管理費・共益費 | | 6000 yen 6000円 | Security deposit 敷金 | | 180,000 yen 18万円 | Floor plan 間取り | | 3DK 3DK | Occupied area 専有面積 | | 58.6 sq m 58.6m2 | Direction 向き | | South 南 | Type 種別 | | Mansion マンション | Year Built 築年 | | Built 26 years 築26年 | | Facing south, Immediate Available, Within a 5-minute walk stationese-style room 南向き、即入居可、駅徒歩5分以内、和室 |
Property name 物件名 | | Rental housing of Takamatsu, Kagawa Prefecture Kuribayashi cho 2 Ritsurin Park Station [Rental apartment ・ Apartment] information Property Details 香川県高松市栗林町2 栗林公園駅の賃貸住宅[賃貸マンション・アパート]情報 物件詳細 | Transportation facilities 交通機関 | | Takamatsu Kotohira Electric Railway Kotohirasen / Ritsurin Park step 3 minutes 高松琴平電鉄琴平線/栗林公園 歩3分
| Floor plan details 間取り詳細 | | Sum 6 sum 6 Hiroshi 7 DK7.5 和6 和6 洋7 DK7.5 | Construction 構造 | | Rebar Con 鉄筋コン | Story 階建 | | 5th floor / 6-story 5階/6階建 | Built years 築年月 | | March 1989 1989年3月 | Nonlife insurance 損保 | | The main 要 | Parking lot 駐車場 | | Neighborhood 20m10000 yen 近隣20m10000円 | Move-in 入居 | | Immediately 即 | Trade aspect 取引態様 | | Mediation 仲介 | Property code 取り扱い店舗物件コード | | 1126050 1126050 | Total units 総戸数 | | 19 units 19戸 | Intermediate fee 仲介手数料 | | 64,800 yen 6.48万円 |
Building appearance建物外観 

Location
|