1995December
160,000 yen, 4LDK, 2-story, 99.36 sq m
Rentals » Kanto » Kanagawa Prefecture » Yokohama Izumi-ku
 
| Railroad-station 沿線・駅 | | Blue Line / Nakata ブルーライン/中田 | Address 住所 | | Yokohama-shi, Kanagawa-ku, Izumi Nakatahigashi 2 神奈川県横浜市泉区中田東2 | Walk 徒歩 | | 10 minutes 10分 | Rent 賃料 | | 160,000 yen 16万円 | Key money 礼金 | | 160,000 yen 16万円 | Security deposit 敷金 | | 320,000 yen 32万円 | Floor plan 間取り | | 4LDK 4LDK | Occupied area 専有面積 | | 99.36 sq m 99.36m2 | Type 種別 | | Residential home 一戸建て | Year Built 築年 | | Built 19 years 築19年 | | Minegishi rental 嶺岸貸家 |
| Bus toilet by, balcony, Yang per good, Shoe box, System kitchen, Corner dwelling unit, Seperate, A quiet residential area, bay window, All living room flooring, Parking two free, Toilet 2 places, Closet 3 places, Second floor living room, 2 Station Available, Southwestward, All rooms southwestward, LDK12 tatami mats or more, Kitchen feet Yutakakazeki, Ventilation good バストイレ別、バルコニー、陽当り良好、シューズボックス、システムキッチン、角住戸、洗面所独立、閑静な住宅地、出窓、全居室フローリング、駐車場2台無料、トイレ2ヶ所、クロゼット3ヶ所、2階リビング、2駅利用可、南西向き、全室南西向き、LDK12畳以上、キッチン足元温風器、通風良好 |
Property name 物件名 | | Rental housing of Yokohama-shi, Kanagawa-ku, Izumi Nakatahigashi 2 Nakata Station [Rental apartment ・ Apartment] information Property Details 神奈川県横浜市泉区中田東2 中田駅の賃貸住宅[賃貸マンション・アパート]情報 物件詳細 | Transportation facilities 交通機関 | | Blue Line / Ayumi Nakata 10 minutes Sagami Railway Izumino Line / Yayoidai walk 27 minutes ブルーライン/中田 歩10分 相鉄いずみ野線/弥生台 歩27分
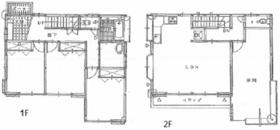
| Floor plan details 間取り詳細 | | Hiroshi 9.5 Hiroshi 5.3 Hiroshi 5.3 Hiroshi 5.3 洋9.5 洋5.3 洋5.3 洋5.3 | Construction 構造 | | Wooden 木造 | Story 階建 | | 2-story 2階建 | Built years 築年月 | | December 1995 1995年12月 | Nonlife insurance 損保 | | 20,000 yen two years 2万円2年 | Parking lot 駐車場 | | Free with 付無料 | Move-in 入居 | | Consultation 相談 | Trade aspect 取引態様 | | Mediation 仲介 | Total units 総戸数 | | 1 units 1戸 | Intermediate fee 仲介手数料 | | 1.05 months 1.05ヶ月 | Guarantor agency 保証人代行 | | Guarantee company use 必 Monthly Rent 100% 保証会社利用必 月額賃料100% | Area information 周辺情報 | | Fashion Center Shimamura Nakata shop (shopping center) to 888m Sotetsu Rosen Yamatedai store (supermarket) to 1020m hack drag Nakata shop (drugstore) to 776m Yokohama Municipal Nakata junior high school 1063m to (junior high school) Yokohama Tatsuhigashi Nakata elementary school (elementary school) ファッションセンターしまむら中田店(ショッピングセンター)まで888mそうてつローゼン山手台店(スーパー)まで1020mハックドラッグ中田店(ドラッグストア)まで776m横浜市立中田中学校(中学校)まで1063m横浜市立東中田小学校(小学校)まで618m社会福祉法人親善福祉協会国際親善総合病院(病院)まで1361m |
Building appearance建物外観 

Location
|