|
Railroad-station 沿線・駅 | | Blue Line / Nakata ブルーライン/中田 |
Address 住所 | | Yokohama-shi, Kanagawa-ku, Izumi Nakatahigashi 4 神奈川県横浜市泉区中田東4 |
Walk 徒歩 | | 7 minutes 7分 |
Rent 賃料 | | 59,000 yen 5.9万円 |
Key money 礼金 | | 59,000 yen 5.9万円 |
Security deposit 敷金 | | 59,000 yen 5.9万円 |
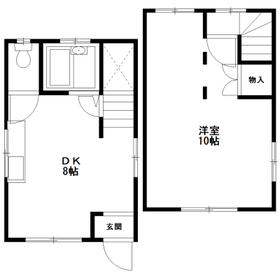
Floor plan 間取り | | 1DK 1DK |
Occupied area 専有面積 | | 39.74 sq m 39.74m2 |
Direction 向き | | Southwest 南西 |
Type 種別 | | Residential home 一戸建て |
Year Built 築年 | | Built 45 years 築45年 |
|
Nakatahigashi 4-chome Detached
中田東4丁目戸建
|
|
New renovation completed ・ Pets considered ・ Station near, Convenient shopping
新規リフォーム済・ペット相談可・駅近、買物便利
|
|
Pet In the case of breeding, Key money 0.5 months, Deposit 1-month increase ・ Fingerprint lock registration 3,150 yen
ペット 飼育の場合、礼金0.5ヶ月、敷金1ヶ月増・指紋認証錠登録3,150円
|
|
Bus toilet by, Air conditioning, Gas stove correspondence, closet, TV interphone, Indoor laundry location, Add-fired function bathroom, Warm water washing toilet seat, Immediate Available, A quiet residential area, Pets Negotiable, Interior and exterior renovation completed, Deposit 1 month, Vinyl flooring, Flat to the station, The window in the bathroom, garden, Within a 10-minute walk station, Southwestward, Key money one month, Guarantee company Available
バストイレ別、エアコン、ガスコンロ対応、クロゼット、TVインターホン、室内洗濯置、追焚機能浴室、温水洗浄便座、即入居可、閑静な住宅地、ペット相談、内外装リフォーム済、敷金1ヶ月、クッションフロア、駅まで平坦、浴室に窓、庭、駅徒歩10分以内、南西向き、礼金1ヶ月、保証会社利用可
|
Property name 物件名 | | Rental housing of Yokohama-shi, Kanagawa-ku, Izumi Nakatahigashi 4 Nakata Station [Rental apartment ・ Apartment] information Property Details 神奈川県横浜市泉区中田東4 中田駅の賃貸住宅[賃貸マンション・アパート]情報 物件詳細 |
Transportation facilities 交通機関 | | Blue Line / Ayumi Nakata 7 minutes Blue Line / Landing walk 18 minutes Blue Line / Stand walk 19 minutes ブルーライン/中田 歩7分 ブルーライン/踊場 歩18分 ブルーライン/立場 歩19分
|
Floor plan details 間取り詳細 | | Hiroshi 10 DK8.0 洋10 DK8.0 |
Construction 構造 | | Wooden 木造 |
Story 階建 | | 2-story 2階建 |
Built years 築年月 | | March 1970 1970年3月 |
Nonlife insurance 損保 | | The main 要 |
Move-in 入居 | | Immediately 即 |
Trade aspect 取引態様 | | Mediation 仲介 |
Conditions 条件 | | Single person Allowed / Two people Available / Children Allowed / Pets Negotiable / Room share not 単身者可/二人入居可/子供可/ペット相談/ルームシェア不可 |
Intermediate fee 仲介手数料 | | 1.08 months 1.08ヶ月 |
Other expenses ほか諸費用 | | Fingerprint lock registration fee 3,150 yen 指紋認証錠登録料3,150円 |
Remarks 備考 | | Renovation: June 2013 Kitchen ・ floor ・ wall ・ Bathtub ・ Hiroshi from 2 Kaiwa リフォーム:2013年6月キッチン・床・壁・浴槽・2階和から洋 |
Area information 周辺情報 | | Coop Kanagawa Nakata shop (super) to 207mA Coop Nakata shop (super) up to 718m Three Eight white lily store (convenience store) up to 340m Lawson Nakata Station store (convenience store) up to 564m hack drag Nakata shop (drugstore) to 604m origin lunch Nakata shop ( コープかながわ中田店(スーパー)まで207mAコープ中田店(スーパー)まで718mスリーエイト白百合店(コンビニ)まで340mローソン中田駅前店(コンビニ)まで564mハックドラッグ中田店(ドラッグストア)まで604mオリジン弁当中田店(飲食店)まで522m |