Rentals » Kansai » Kyoto » Fushimi-ku
 
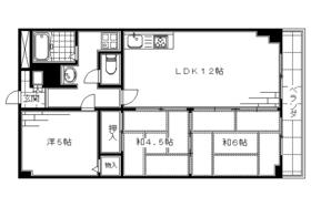
| Railroad-station 沿線・駅 | | Keihan / Tanbabashi 京阪本線/丹波橋 | Address 住所 | | Kyoto, Kyoto Prefecture Fushimi-ku Shimizu-cho 京都府京都市伏見区清水町 | Walk 徒歩 | | 9 minutes 9分 | Rent 賃料 | | 88,000 yen 8.8万円 | Management expenses 管理費・共益費 | | 5000 Yen 5000円 | Key money 礼金 | | ¥ 100,000 10万円 | Security deposit 敷金 | | ¥ 100,000 10万円 | Floor plan 間取り | | 3LDK 3LDK | Occupied area 専有面積 | | 60 sq m 60m2 | Direction 向き | | South 南 | Type 種別 | | Mansion マンション | Year Built 築年 | | Built 25 years 築25年 | | Comfort Shimizu コンフォート清水 |
| Likely uninhabitable and laid the waist 腰をすえて住めそう |
| There is also a quiet residential area, It is recommended for family-like. 閑静な住宅街もあり、ファミリー様にはオススメです。 |
| Bus toilet by, balcony, Air conditioning, Gas stove correspondence, Flooring, Washbasin with shower, auto lock, Indoor laundry location, Yang per good, System kitchen, Facing south, Seperate, Bicycle-parking space, closet, Immediate Available, 3-neck over stove, Sorting, Two tenants consultation, 3 station more accessible, Within a 10-minute walk station, LDK12 tatami mats or moreese-style room, City gas バストイレ別、バルコニー、エアコン、ガスコンロ対応、フローリング、シャワー付洗面台、オートロック、室内洗濯置、陽当り良好、システムキッチン、南向き、洗面所独立、駐輪場、押入、即入居可、3口以上コンロ、振分、二人入居相談、3駅以上利用可、駅徒歩10分以内、LDK12畳以上、和室、都市ガス |
Property name 物件名 | | Rental housing of Kyoto, Kyoto Prefecture Fushimi-ku Shimizu-cho Tambabashi Station [Rental apartment ・ Apartment] information Property Details 京都府京都市伏見区清水町 丹波橋駅の賃貸住宅[賃貸マンション・アパート]情報 物件詳細 | Transportation facilities 交通機関 | | Keihan / Tanbabashi walk 9 minutes Kintetsu Kyoto Line / Ayumi Fushimi 8 minutes Kintetsu Kyoto Line / Kintetsu Tanbabashi walk 12 minutes 京阪本線/丹波橋 歩9分 近鉄京都線/伏見 歩8分 近鉄京都線/近鉄丹波橋 歩12分
| Floor plan details 間取り詳細 | | Sum 6 sum 4.5 Hiroshi 5 LDK12 和6 和4.5 洋5 LDK12 | Construction 構造 | | Rebar Con 鉄筋コン | Story 階建 | | Second floor / Three-story 2階/3階建 | Built years 築年月 | | March 1990 1990年3月 | Nonlife insurance 損保 | | 28,000 yen two years 2.8万円2年 | Move-in 入居 | | Immediately 即 | Trade aspect 取引態様 | | Mediation 仲介 | Conditions 条件 | | Two people Available / Children Allowed 二人入居可/子供可 | Property code 取り扱い店舗物件コード | | K12684-202 K12684-202 | Total units 総戸数 | | 15 units 15戸 | Guarantor agency 保証人代行 | | Zenhoren use 必 first 74,400 yen 全保連利用必 初回7.44万円 | Remarks 備考 | | Keihan Fushimi-Momoyama Station walk 17 minutes 京阪本線伏見桃山駅徒歩17分 | Area information 周辺情報 | | Fresco Tanbabashi store (supermarket) up to 169m Happy Terada Fushimi store (other) up to 187m Kyoto Chuo Shinkin Bank Fushimi Branch (Bank) up to 290m Circle K Fushimi stage town store (convenience store) up to 318m Seven-Eleven Kyoto Tanbabashi Station Nishiten (Other) ・ 2130m up to junior college) フレスコ 丹波橋店(スーパー)まで169mハッピーテラダ 伏見店(その他)まで187m京都中央信用金庫 伏見支店(銀行)まで290mサークルK伏見舞台町店(コンビニ)まで318mセブンイレブン京都丹波橋駅西店(その他)まで420m京都教育大学(大学・短大)まで2130m |
Building appearance建物外観 
Living and room居室・リビング 
 Wide living room is characterized by.
広いリビングが特徴です。
 Japanese-style room and living room are connected.
和室とリビングは繋がっています。
 Living 12 Pledge.
リビング12帖。
 Followed by a long corridor.
長い廊下が続きます。
 Large living.
広いリビング。
 Western-style housing.
洋室の収納。
Kitchenキッチン  Gas stove 3-neck of the system Kitchen.
ガスコンロ3口のシステムキッチン。
Bathバス  bath.
お風呂。
Toiletトイレ  toilet.
トイレ。
Washroom洗面所  Wide independent wash basin of the sink.
流しの広い独立洗面台。
 Undressing space.
脱衣スペース。
Supermarketスーパー  Fresco Tanbabashi store up to (super) 169m
フレスコ 丹波橋店(スーパー)まで169m
Convenience storeコンビニ  Circle K Fushimi stage town store up to (convenience store) 318m
サークルK伏見舞台町店(コンビニ)まで318m
Bank銀行  Kyoto Chuo Shinkin Bank Fushimi 290m to the branch (Bank)
京都中央信用金庫 伏見支店(銀行)まで290m
University ・ Junior college大学・短大  Kyoto University of Education (University of ・ 2130m up to junior college)
京都教育大学(大学・短大)まで2130m
Otherその他  Happy Terada Fushimi store up to (other) 187m
ハッピーテラダ 伏見店(その他)まで187m
 Seven-Eleven Kyoto Tambabashi Station Nishiten (other) up to 420m
セブンイレブン京都丹波橋駅西店(その他)まで420m
Location
|