Rentals » Kansai » Kyoto » Fushimi-ku
 
| Railroad-station 沿線・駅 | | Keihan / Toba Road 京阪本線/鳥羽街道 | Address 住所 | | Kyoto Fushimi-ku, Kyoto Fukakusakurumazaka cho 京都府京都市伏見区深草車阪町 | Walk 徒歩 | | 13 minutes 13分 | Rent 賃料 | | 144,000 yen 14.4万円 | Key money 礼金 | | 288,000 yen 28.8万円 | Security deposit 敷金 | | 144,000 yen 14.4万円 | Floor plan 間取り | | 5LDK 5LDK | Occupied area 専有面積 | | 124.94 sq m 124.94m2 | Direction 向き | | South 南 | Type 種別 | | terrace ・ Townhouse テラス・タウンハウス | Year Built 築年 | | Built 27 years 築27年 | | Kurumazaka mansion Building A 車坂屋敷A棟 |
| Breadth of living! リビングの広さ! |
| System kitchen, etc.. システムキッチンなど。 |
| Bus toilet by, balcony, Gas stove correspondence, Flooring, Indoor laundry location, System kitchen, Facing south, Seperate, Bicycle-parking space, closet, CATV, Immediate Available, 3-neck over stove, Sale rent, Sorting, Two tenants consultation, Musical Instruments consultation, 3 station more accessible, The area occupied 30 square meters or moreese-style roomese-style room 8 tatami mats or more, All room 6 tatami mats or more, City gas バストイレ別、バルコニー、ガスコンロ対応、フローリング、室内洗濯置、システムキッチン、南向き、洗面所独立、駐輪場、押入、CATV、即入居可、3口以上コンロ、分譲賃貸、振分、二人入居相談、楽器相談、3駅以上利用可、専有面積30坪以上、和室、和室8畳以上、全居室6畳以上、都市ガス |
Property name 物件名 | | Rental housing of Kyoto, Kyoto Prefecture Fushimi-ku, Fukakusakurumazaka-cho, Toba Road Station [Rental apartment ・ Apartment] information Property Details 京都府京都市伏見区深草車阪町 鳥羽街道駅の賃貸住宅[賃貸マンション・アパート]情報 物件詳細 | Transportation facilities 交通機関 | | Keihan / Toba Road walk 13 minutes Keihan / Tofukuji walk 18 minutes Keihan / Fushimi-Inari walk 21 minutes 京阪本線/鳥羽街道 歩13分 京阪本線/東福寺 歩18分 京阪本線/伏見稲荷 歩21分
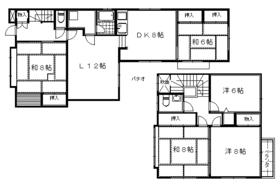
| Floor plan details 間取り詳細 | | Sum 8 sum 8 sum 6 Hiroshi 8 Hiroshi 6 L12DK8 和8 和8 和6 洋8 洋6 L12DK8 | Construction 構造 | | Wooden 木造 | Story 階建 | | 1st floor / 2-story 1階/2階建 | Built years 築年月 | | April 1988 1988年4月 | Nonlife insurance 損保 | | The main 要 | Parking lot 駐車場 | | On-site 5000 yen 敷地内5000円 | Move-in 入居 | | Immediately 即 | Trade aspect 取引態様 | | Mediation 仲介 | Conditions 条件 | | Two people Available / Children Allowed / Musical Instruments consultation 二人入居可/子供可/楽器相談 | Property code 取り扱い店舗物件コード | | K47651-102 K47651-102 | Total units 総戸数 | | 1 units 1戸 | Remarks 備考 | | JR Nara line Inari Station walk 21 minutes JR奈良線稲荷駅徒歩21分 | Area information 周辺情報 | | Toba Road station (other) up to 1000m Tofukuji Station (other) up to 1371m Fushimi Inari Station (other) up to 1670m Inari Station (other) up to 1670m Tofukuji nursery school (kindergarten ・ Nursery school) until 590m Smile Honcho store up to (super) 687m 鳥羽街道駅(その他)まで1000m東福寺駅(その他)まで1371m伏見稲荷駅(その他)まで1670m稲荷駅(その他)まで1670m東福寺保育園(幼稚園・保育園)まで590mスマイル 本町店(スーパー)まで687m |
Building appearance建物外観 
Living and room居室・リビング 
 Bright Japanese-style room
明るい和室
 The north side of the Japanese-style room
北側の和室
 The north side of the Japanese-style room From a different angle
北側の和室 別角度から
 Living is also wide!
リビングも広いですよ!
Kitchenキッチン  It is L-shaped kitchen
L字キッチンですよ
 3-burner stove with
3口コンロつき
Bathバス  Wide over Io bath
広ーいお風呂
Toiletトイレ  Toilet under the stairs
階段下のトイレ
Receipt収納  There is of course also housed
もちろん収納も有ります
Washroom洗面所  Washbasin large
大きい洗面台
 Laundry storage will hide in the door
洗濯置き場は扉で隠せます
Otherその他  1000m to Toba Road station (Other)
鳥羽街道駅(その他)まで1000m
 1371m to Tofukuji Station (Other)
東福寺駅(その他)まで1371m
 1670m to Fushimi Inari Station (Other)
伏見稲荷駅(その他)まで1670m
 1670m to Inari Station (Other)
稲荷駅(その他)まで1670m
Location
|