Rentals » Kansai » Kyoto » Fushimi-ku


Corporate nuts
South-facing 2DK.
Surrounding facilities enhancement.
balcony, Gas stove correspondence, Facing south, Bicycle-parking space, closet, CATV, Immediate Available, CATV Internet, Bike shelter, 3 station more accessible, Within a 5-minute walk stationese-style room, City gas, High speed Internet correspondence
Railroad-station
Kintetsu Kyoto Line / Takeda
Address
Kyoto Fushimi-ku, Kyoto Takedauchihata cho
Walk
3 minutes
Rent
51,000 yen
Management expenses
3000 yen
Key money
50,000 yen
Security deposit
150,000 yen
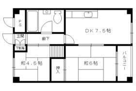
Floor plan
2DK
Occupied area
40.45 sq m
Direction
South
Type
Mansion
Year Built
Built 41 years
Property name
Rental housing of Kyoto, Kyoto Prefecture Fushimi-ku, Takedauchihata cho Takeda Station [Rental apartment ・ Apartment] information Property Details
Transportation facilities
Kintetsu Kyoto Line / Ayumi Takeda 3 minutes
Subway Karasuma / Kuina Bridge walk 14 minutes
Kintetsu Kyoto Line / Ayumi Fushimi 14 minutes
Floor plan details
Sum 6 sum 4.5 DK7.5
Construction
Rebar Con
Story
Second floor / 4-story
Built years
October 1973
Nonlife insurance
20,000 yen two years
Move-in
Immediately
Trade aspect
Mediation
Property code
K02908-201
Total units
20 units
Remarks
Keihan Fujimori Station walk 17 minutes
Area information
311m to Kyoto Takeda post office (post office) to 96m Takeda elementary school (elementary school) up to 170m FamilyMart Okamoto Takeda Station store (convenience store) up to 184m Circle K Takedananasegawa store (convenience store) up to 205m Kyoto Chuo Shinkin Bank Takeda South Branch (Bank) ・ 1500m up to junior college)


Building appearance

Building appearance

Living and room

Living and room
Living and room. It is a beautiful Japanese-style room
It is a beautiful Japanese-style room

Living and room. Bright living
Bright living

Living and room. Easy-to-use floor plan
Easy-to-use floor plan

Living and room. Living is
Living is

Kitchen

Kitchen. Two-burner stove installation Allowed, Storage is often
Two-burner stove installation Allowed, Storage is often

Bath

Bath. There is a separate type and unit type by room
There is a separate type and unit type by room

Toilet

Toilet. There are separate type and unit type by room
There are separate type and unit type by room

Other room space

Other room space. Corridor
Corridor

Balcony

Balcony. It is a veranda
It is a veranda

Other Equipment

Other Equipment. Shoes is a box
Shoes is a box

Entrance

Entrance. It is entrance
It is entrance

Convenience store

Convenience store. FamilyMart Okamoto Takeda Station store up (convenience store) 184m
FamilyMart Okamoto Takeda Station store up (convenience store) 184m

Convenience store. 205m to Circle K Takedananasegawa store (convenience store)
205m to Circle K Takedananasegawa store (convenience store)

Primary school

Primary school. Takeda to elementary school (elementary school) 170m
Takeda to elementary school (elementary school) 170m

Post office

post office. 96m to Kyoto Takeda post office (post office)
96m to Kyoto Takeda post office (post office)

Bank

Bank. 311m up to Kyoto Chuo Shinkin Bank Takeda South Branch (Bank)
311m up to Kyoto Chuo Shinkin Bank Takeda South Branch (Bank)

University ・ Junior college

University ・ Junior college. Ryukoku University (Fukakusa) (University of ・ 1500m up to junior college)
Ryukoku University (Fukakusa) (University of ・ 1500m up to junior college)



Location