Rentals » Kansai » Kyoto » Fushimi-ku
 
| Railroad-station 沿線・駅 | | Keihan / Sumizome 京阪本線/墨染 | Address 住所 | | Kyoto Fushimi-ku, Kyoto Sumizome cho 京都府京都市伏見区墨染町 | Walk 徒歩 | | 1 minute 1分 | Rent 賃料 | | 90,000 yen 9万円 | Management expenses 管理費・共益費 | | 8000 yen 8000円 | Key money 礼金 | | 270,000 yen 27万円 | Security deposit 敷金 | | 90,000 yen 9万円 | Floor plan 間取り | | 1LDK 1LDK | Occupied area 専有面積 | | 41.16 sq m 41.16m2 | Direction 向き | | South 南 | Type 種別 | | Mansion マンション | Year Built 築年 | | Built six years 築6年 | | KITOIYASU KITOIYASU |
| Designer's Mansion. デザイナーズマンション。 |
| Keihan not only, Kintetsu ・ JR also accessible! 京阪のみでなく、近鉄・JRもアクセス可能! |
| Bus toilet by, balcony, Air conditioning, Gas stove correspondence, Flooring, Washbasin with shower, TV interphone, auto lock, Indoor laundry location, System kitchen, Facing south, Corner dwelling unit, Warm water washing toilet seat, Elevator, Seperate, Bicycle-parking space, closet, Optical fiber, Immediate Available, 3-neck over stove, All room Western-style, Walk-in closet, Deposit 1 month, Two tenants consultation, Bike shelter, Design, Office consultation, 3 station more accessible, Within a 5-minute walk station, LDK12 tatami mats or more, City gas, BS バストイレ別、バルコニー、エアコン、ガスコンロ対応、フローリング、シャワー付洗面台、TVインターホン、オートロック、室内洗濯置、システムキッチン、南向き、角住戸、温水洗浄便座、エレベーター、洗面所独立、駐輪場、押入、光ファイバー、即入居可、3口以上コンロ、全居室洋室、ウォークインクロゼット、敷金1ヶ月、二人入居相談、バイク置場、デザイナーズ、事務所相談、3駅以上利用可、駅徒歩5分以内、LDK12畳以上、都市ガス、BS |
Property name 物件名 | | Rental housing of Kyoto, Kyoto Prefecture Fushimi-ku, Sumizome cho Sumizome Station [Rental apartment ・ Apartment] information Property Details 京都府京都市伏見区墨染町 墨染駅の賃貸住宅[賃貸マンション・アパート]情報 物件詳細 | Transportation facilities 交通機関 | | Keihan / Sumizome walk 1 minute Kintetsu Kyoto Line / Ayumi Fushimi 12 minutes Keihan / Tanbabashi walk 15 minutes 京阪本線/墨染 歩1分 近鉄京都線/伏見 歩12分 京阪本線/丹波橋 歩15分
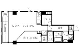
| Floor plan details 間取り詳細 | | Hiroshi 4.28 LDK12.53 洋4.28 LDK12.53 | Construction 構造 | | Rebar Con 鉄筋コン | Story 階建 | | Second floor / 5-story 2階/5階建 | Built years 築年月 | | April 2009 2009年4月 | Nonlife insurance 損保 | | 20,000 yen two years 2万円2年 | Parking lot 駐車場 | | Site 13000 yen 敷地内13000円 | Move-in 入居 | | Immediately 即 | Trade aspect 取引態様 | | Mediation 仲介 | Conditions 条件 | | Two people Available / Office use consultation 二人入居可/事務所利用相談 | Property code 取り扱い店舗物件コード | | K46257-2A K46257-2A | Total units 総戸数 | | 14 units 14戸 | Balcony area バルコニー面積 | | 5.06 sq m 5.06m2 | Remarks 備考 | | Keihan Fujimori Station walk 16 minutes 京阪本線藤森駅徒歩16分 | Area information 周辺情報 | | Daily Yamazaki Fushimi Sumizome store (convenience store) up to 24m Fushimi Sumizome post office (post office) to 51m Circle K Fushimi Sumizome store (other) up to 133m Kyoto University of Education (University of ・ Junior college) to 637m Seibojogakuintankidaigaku Kyoto (University ・ Junior college) until 1393m Ryukoku University (Fukakusa) (University of ・ 2040m up to junior college) デイリーヤマザキ伏見墨染店(コンビニ)まで24m伏見墨染郵便局(郵便局)まで51mサークルK伏見墨染店(その他)まで133m京都教育大学(大学・短大)まで637m京都聖母女学院短期大学(大学・短大)まで1393m龍谷大学(深草)(大学・短大)まで2040m |
Building appearance建物外観 
Living and room居室・リビング 
 Package and bright white rooms.
パッと明るい真っ白なお部屋。
 Bedrooms also form also is fashionable.
ベットルームも形もオシャレです。
 Welcomes the entrance of concrete driving range.
コンクリート打ちっぱなしの玄関がお出迎え。
 A view of the balcony, Produce a unique atmosphere.
バルコニーの景色が、独特の雰囲気を演出。
 Stylish room.
オシャレなお部屋です。
Kitchenキッチン  In nice kitchen with a three-necked grill, Fun every day of the dishes ...
3口グリル付きのステキなキッチンで、毎日のお料理が楽し...
Bathバス  It is comfortable and relaxing bath.
ゆったりくつろげるお風呂です。
Toiletトイレ  With Washlet.
ウォシュレット付き。
Receipt収納  Walk-in closet, You can do anything storage.
ウォークインクローゼット、何でも収納できます。
 There is also a closet in the room.
お部屋にもクローゼットあります。
Washroom洗面所  Large washbasin.
大きな洗面台。
Convenience storeコンビニ  Daily Yamazaki Fushimi Sumizome store up (convenience store) 24m
デイリーヤマザキ伏見墨染店(コンビニ)まで24m
Post office郵便局  Fushimi Sumizome 51m until the post office (post office)
伏見墨染郵便局(郵便局)まで51m
University ・ Junior college大学・短大  Kyoto University of Education (University of ・ 637m up to junior college)
京都教育大学(大学・短大)まで637m
 Seibo Jogakuin Junior College (University of ・ 1393m up to junior college)
京都聖母女学院短期大学(大学・短大)まで1393m
 Ryukoku University (Fukakusa) (University of ・ 2040m up to junior college)
龍谷大学(深草)(大学・短大)まで2040m
Otherその他  Circle K Fushimi Sumizome store up to (other) 133m
サークルK伏見墨染店(その他)まで133m
Location
|