1976February
43,000 yen, 2K, Second floor / 2-story, 37 sq m
Rentals » Kansai » Kyoto » Fushimi-ku
 
| Railroad-station 沿線・駅 | | Subway Tozai Line / Daigo 地下鉄東西線/醍醐 | Address 住所 | | Kyoto Fushimi-ku, Kyoto Daigonishioji cho 京都府京都市伏見区醍醐西大路町 | Walk 徒歩 | | 9 minutes 9分 | Rent 賃料 | | 43,000 yen 4.3万円 | Key money 礼金 | | 70,000 yen 7万円 | Security deposit 敷金 | | ¥ 100,000 10万円 | Floor plan 間取り | | 2K 2K | Occupied area 専有面積 | | 37 sq m 37m2 | Direction 向き | | South 南 | Type 種別 | | Apartment アパート | Year Built 築年 | | Built 39 years 築39年 | | Kotobuki Mansion 寿マンション |
| Bus toilet by, Facing south, Seperate, Bicycle-parking space, closet, Immediate Available, top floor, 3 station more accessible, Within a 10-minute walk station, No upper floorese-style room バストイレ別、南向き、洗面所独立、駐輪場、押入、即入居可、最上階、3駅以上利用可、駅徒歩10分以内、上階無し、和室 |
Property name 物件名 | | Rental housing of Kyoto, Kyoto Prefecture Fushimi-ku, Daigonishioji-cho, Daigo Station [Rental apartment ・ Apartment] information Property Details 京都府京都市伏見区醍醐西大路町 醍醐駅の賃貸住宅[賃貸マンション・アパート]情報 物件詳細 | Transportation facilities 交通機関 | | Subway Tozai Line / Ayumi Daigo 9 minutes Subway Tozai Line / Ayumi Ishida 18 minutes Subway Tozai Line / Ayumi Ono 19 minutes 地下鉄東西線/醍醐 歩9分 地下鉄東西線/石田 歩18分 地下鉄東西線/小野 歩19分
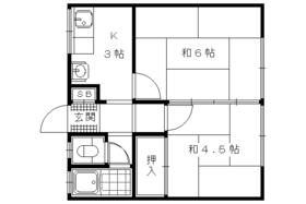
| Floor plan details 間取り詳細 | | Sum 6 sum 4.5 K3 和6 和4.5 K3 | Construction 構造 | | Wooden 木造 | Story 階建 | | Second floor / 2-story 2階/2階建 | Built years 築年月 | | February 1976 1976年2月 | Nonlife insurance 損保 | | The main 要 | Move-in 入居 | | Immediately 即 | Trade aspect 取引態様 | | Mediation 仲介 | Property code 取り扱い店舗物件コード | | K16700-202 K16700-202 | Total units 総戸数 | | 6 units 6戸 | Remarks 備考 | | Subway Tozai Line Rokujizo Station walk 34 minutes 地下鉄東西線六地蔵駅徒歩34分 | Area information 周辺情報 | | Kyoto Tachibana University (University ・ Junior college) until 1900m Daigo Station (194m to the other) to 687m Ishida Station (other) up to 1400m Ono Station (other) up to 1500m Rokujizo Station (other) up to 2667m Fushimi Daigo post office (post office) 京都橘大学(大学・短大)まで1900m醍醐駅(その他)まで687m石田駅(その他)まで1400m小野駅(その他)まで1500m六地蔵駅(その他)まで2667m伏見醍醐郵便局(郵便局)まで194m |
Building appearance建物外観 
Living and room居室・リビング 







Kitchenキッチン 


Bathバス 
University ・ Junior college大学・短大  Kyoto Tachibana University (University ・ 1900m up to junior college)
京都橘大学(大学・短大)まで1900m
Otherその他  687m until Daigo Station (Other)
醍醐駅(その他)まで687m
 1400m until Ishida Station (Other)
石田駅(その他)まで1400m
 1500m to Ono Station (Other)
小野駅(その他)まで1500m
 2667m to Rokujizo Station (Other)
六地蔵駅(その他)まで2667m
Location
|